- >>
- eladó ingatlanok
- >>
- eladó ház
- >>
- eladó ház Nyíregyháza
- >>
Eladó új építésű ház - Nyíregyháza
| | |||
| Kedvencnek jelölöm | Elküldöm emailben | Megosztás | Szavazás |
| FIX 3% lakáshitelre megvehető | |||
| 75 900 000 HUF | |||
Ingatlan adatai
- Eladó vagy kiadó:Eladó
- Település:Nyíregyháza
- Kategória:Ház
- Alkategória:Ikerház
- Alapterület:128 m2
- Telekterület:1000 m2
- Csere is:Nem
- Hirdető:Cég
- Élő videón megtekinthető:Nem
- Építés éve:2026
- Szobaszám:3
- Állapot:Új építésű
- Hány szintes az ingatlan:Földszintes
- Tetőtér:nincs megadva
- Komfortosság:nincs megadva
- Parkolási lehetőség:Garázsban
- Fűtés:Gáz (cirko)
- Bútorozottság:nincs megadva
- Fényviszony:Napfényes
- Tájolás:D
- Kilátás:nincs megadva
- Internet:nincs megadva
- Klíma:Van
- Akadálymentesített:nincs megadva
- Energiatanúsítvány:A++
- Villany:Van
- Víz:Van
- Gáz:Van
- Csatorna:Van
- Üzenetküldés
- Hívás

Referencia szám: HK

Hitel ajánlat
Ingatlan hirdetés leírása
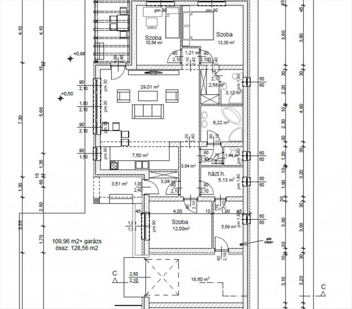
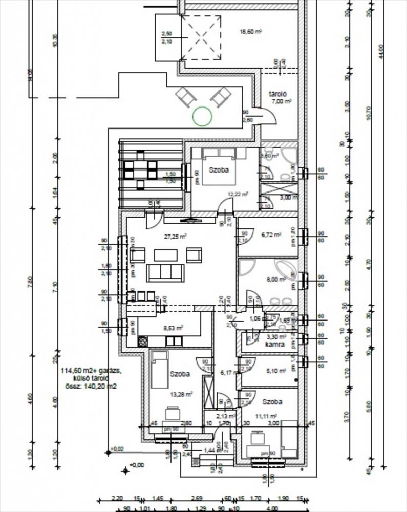
Kizárólag garázsnál érintkező nappali + 3 szobás ikerház eladó
Új otthon, új kezdet – Kistelekiszőlőben!Képzeld el, hogy minden reggel madárcsicsergésre ébredsz egy nyugodt, biztonságos utcában, mégis pár perc alatt elérhető a belváros pezsgése.
Nyíregyháza egyik csendes kertvárosi részén, 1000 m²-es telken épülnek modern ikerházak, melyek kialakításuknak köszönhetően tökéletes választás fiatal pároknak és családoknak.
Miért különleges?
Családbarát környezet, ahol a gyerekek biztonságban nőhetnek fel
nagy telek, ahol mindig jut hely közös játékra, kertészkedésre vagy egy nyári grillpartira
modern otthon, melyben minden részlet a kényelmet és a harmóniát szolgálja
igényes lakópark közvetlen közelében, nyugodt és rendezett szomszédságban
Műszaki tartalom:
30 cm vastag, korszerű falazat + 15 cm nikecell hőszigetelés
3 rétegű, hőszigetelt műanyag nyílászárók
padlófűtés hőszivattyús rendszerrel
modern, energiatakarékos hőszivattyú
2 db hűtő-fűtő klíma
15 cm-es lépésálló szigetelés a födémen
térkövezett kocsibeálló és járda
garázs elektromos kapu előkészítéssel
riasztó és okosotthon rendszer kiépíthető előkészítéssel
az ingatlanok alapterülete: „a” lakás (utcafronti) br. 140 Nm, „b” lakás (hátsó ikerház nagyobb telekkel) 128 nm.
Tervezett átadás: 2026 tavasz
Ez nem csak egy ház – ez az a hely, ahol a közös jövőtöket építitek.
Már most foglalható, ne maradjatok le róla!
Ha Ön is szeretne egy modern, kényelmes otthont, ne habozzon, keressen minket, és tekintse meg ezt a remek lehetőséget! Vevőink számára minden szolgáltatásunk ingyenes és teljeskörű ügyintézést biztosítunk. Szakmailag kiválóan felkészült kollégákkal állunk Ügyfeleink rendelkezésére hogy gördülékeny legyen az ingatlanvásárlás!
Elek Ágnes- ingatlanszakértő, irodavezető +36202785838
Referencia szám: hk-5091843-ml FIX 3% lakáshitelre megvehető

