Eladó új építésű ház - Nyíregyháza
- INGYENES HIRDETÉS FELADÁS
Ingatlan adatai
- Eladó vagy kiadó:Eladó
- Település:Nyíregyháza
- Kategória:Ház
- Alkategória:Ikerház
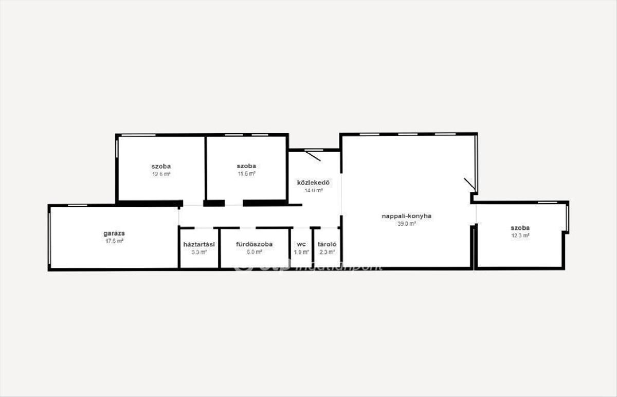
- Alapterület:133 m2
- Telekterület:525 m2
- Csere is:Nem
- Hirdető:Cég
- Élő videón megtekinthető:Nem
- Építés éve:2025
- Szobaszám:3
- Állapot:Új építésű
- Hány szintes az ingatlan:Földszintes
- Tetőtér:nincs megadva
- Komfortosság:nincs megadva
- Pince:nincs megadva
- Parkolási lehetőség:Teremgarázsban
- Fűtés:Hőszivattyús
- Bútorozottság:nincs megadva
- Fényviszony:Napfényes
- Tájolás:nincs megadva
- Kilátás:nincs megadva
- Internet:nincs megadva
- Klíma:nincs megadva
- Akadálymentesített:nincs megadva
- Energiatanúsítvány:nincs megadva
- Villany:Telken belül
- Víz:Telken belül
- Gáz:Telken belül
- Csatorna:nincs megadva
- Kapcsolatfelvétel

Tóth Zoltán
+36-(20)-390-3546
Mondd meg a hirdetőnek, hogy a megveszLAK-on találtad a hirdetést.
Referencia szám: M300745
Hitel ajánlatok
Ingatlan hirdetés leírása
Eladó Ház, Nyíregyháza
Nyíregyháza-Oros, családok által legkedveltebb lokalizációjában, ikerházak kerülnek értékesítésre. 133m2 alapterületű, 30 as porotherm téglából készült, 15 cm szigeteléssel, a padláson hanggátló téglát használtak, a hangszigetelést szem előtt tartva. Fűtés vegyesen hőszivattyú és padlófűtés. Napelemek elhelyezésére a nyeregtetőn van lehetőség. Az ingatlant képzi, 3 hálószoba, amerikai konyha, terasz, kamra, wc, fürdőszoba, mosókonyha, garázs, elektromos kapuval. a letisztultságot és a környezetet szem előtt tartva, antracit tetővel, fehér nyílászárókkal, és fehér falakkal kerül átadásra. Jelenleg 70% os a készültség, kb 3 hónap a szerződéskötéstől az átadás. Ekkor megtörténik a belső burkolatok kiválasztása, illetve az utca aszfaltozása. Lakberendezőnk által készített belső képek illusztráció, igényeinek megfelelően kerül a belső tér kialakításra. Tervdokumentációt, és a bővebb műszaki leírás irodánkban megtekinthető. Az ingatlan egyeztetett időpontban megtekinthető! Bővebb információért vagy megtekintésért hívjon bizalommal! OTP Banki hátterünknek köszönhetően finanszírozási igényekben (pl. Babaváró, Falusi csok, CSOK Plusz, Lakáshitel, Személyi kölcsön stb. ), Illetve biztosítások tekintetében is díjmentesen, soron kívüli ügyintézéssel segítem ügyfeleim! Referenciaszám: m300745 FIX 3% lakáshitelre megvehető

