Eladó új építésű ház Őrbottyán
| Kedvencbe | Megosztás | Árfigyelő |
| FIX 3% lakáshitelre megvehető | ||
| 84 900 000 HUF | ||
Ingatlan adatai
- Eladó vagy kiadó:Eladó
- Település:Őrbottyán
- Kategória:Ház
- Alkategória:Ikerház
- Alapterület:116 m2
- Telekterület:380 m2
- Csere is:Nem
- Hirdető:Cég
- Élő videón megtekinthető:Nem
- Építés éve:2026
- Szobaszám:4
- Állapot:Új építésű
- Hány szintes az ingatlan:nincs megadva
- Tetőtér:nincs megadva
- Komfortosság:nincs megadva
- Pince:Nincs
- Parkolási lehetőség:nincs megadva
- Fűtés:nincs megadva
- Bútorozottság:Bútorozatlan
- Fényviszony:nincs megadva
- Tájolás:nincs megadva
- Kilátás:nincs megadva
- Internet:nincs megadva
- Akadálymentesített:nincs megadva
- Energiatanúsítvány:nincs megadva
- Villany:Van
- Víz:Van
- Gáz:nincs megadva
- Csatorna:Van
- Üzenetküldés
- Hívás


Hitel ajánlat
Ingatlan hirdetés leírása
4652: Új építésű, dupla-komfortos ikerházi lakások eladók Őrbo...
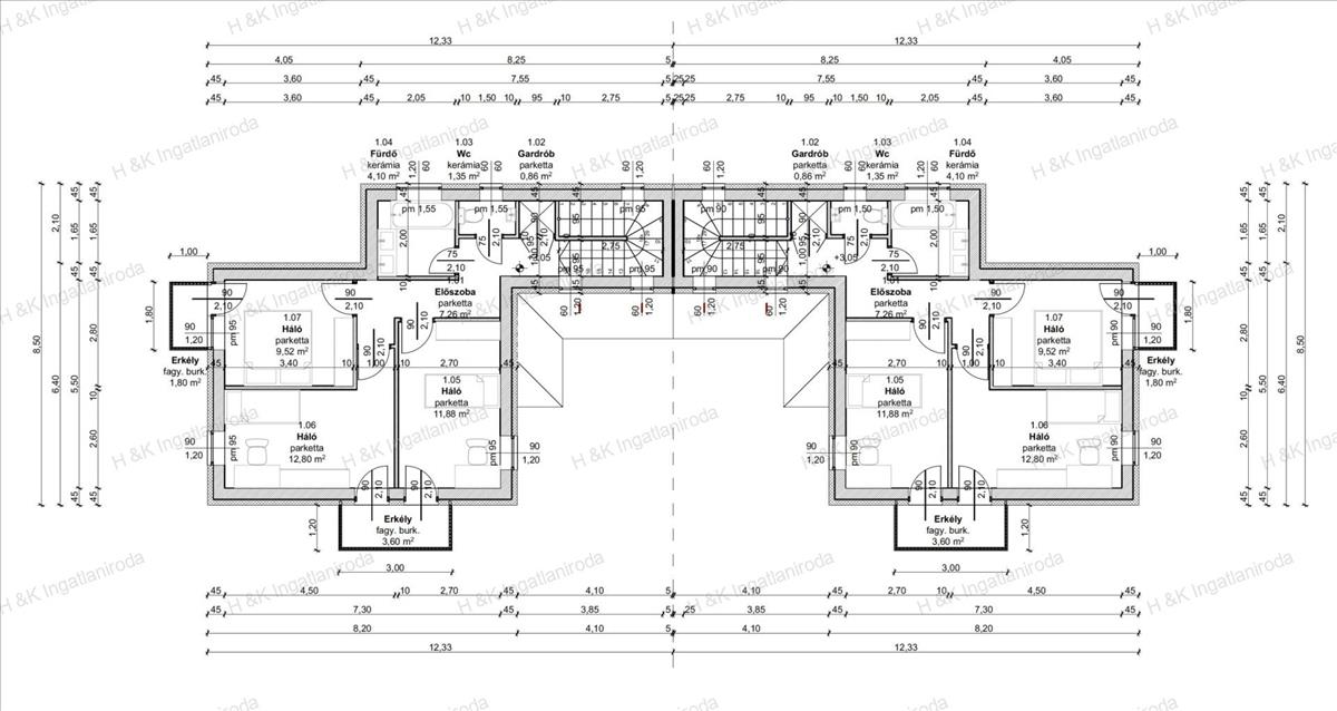
Új építésű, dupla-komfortos ikerházi lakások eladók Őrbottyánban a tó közelében!A két lakás csak a belső lépcsőházakkal érintkezik!
A lakások bruttó területe 116 nm, nettó lakótér 105 nm + terasz + 2 erkély, amerikai konyhás nappali + 3 szobás elrendezésűek, dupla-komfortosak, lakásonként kb. 380 Nm-es saját telekrésszel.
CÉGES építkezés, a 2024-től aktuális állami támogatások valamint kedvezményes, kamattámogatott hitelek felvehetőek – akár a 3%-os otthon start hitel, CSOK plus, babaváró is igényelhető, az ügyintézésben díjmentesen segítünk!
Az építő munkájára jellemző a megbízhatóság és igényesség, leinformálható, referencia házai megtekinthetők.
Rövid műszaki tartalom:
Az ikerház 30-as Porotherm téglából, 15 cm-es külső homlokzati hőszigeteléssel épül.
A tetőre betoncserép fedés kerül.
Az ablakok fehér színű, műanyag szerkezetű, háromrétegű, hőszigetelő üvegezéssel ellátottak.
A fűtés modern, hőszivattyús fűtésrendszerrel kerül kialakításra, a hőleadás, padlófűtéssel fog történni a teljes lakótérben.
A szobákba laminált parketta, a vizes helyiségekben kerámia burkolat kerül, a belső műszaki tartalomban vállalt árakig.
Parkolás udvari beállón kerül kialakításra.
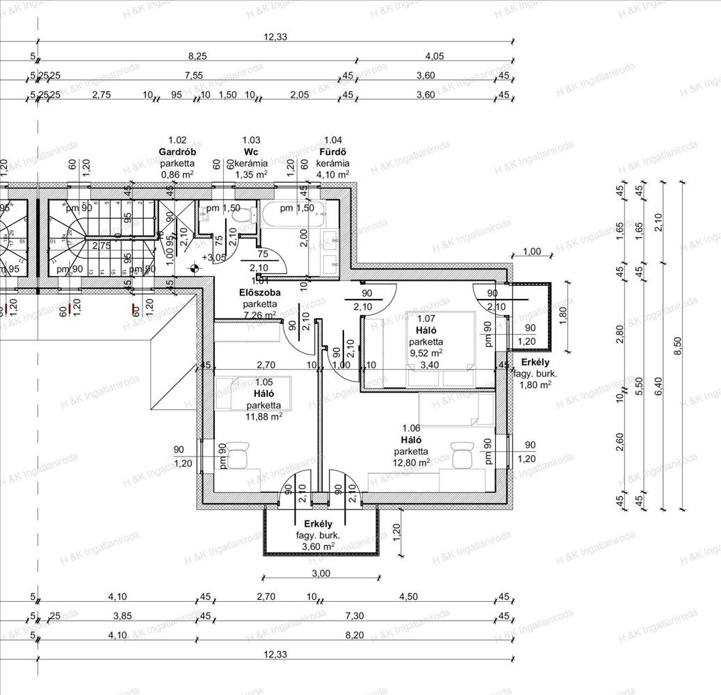
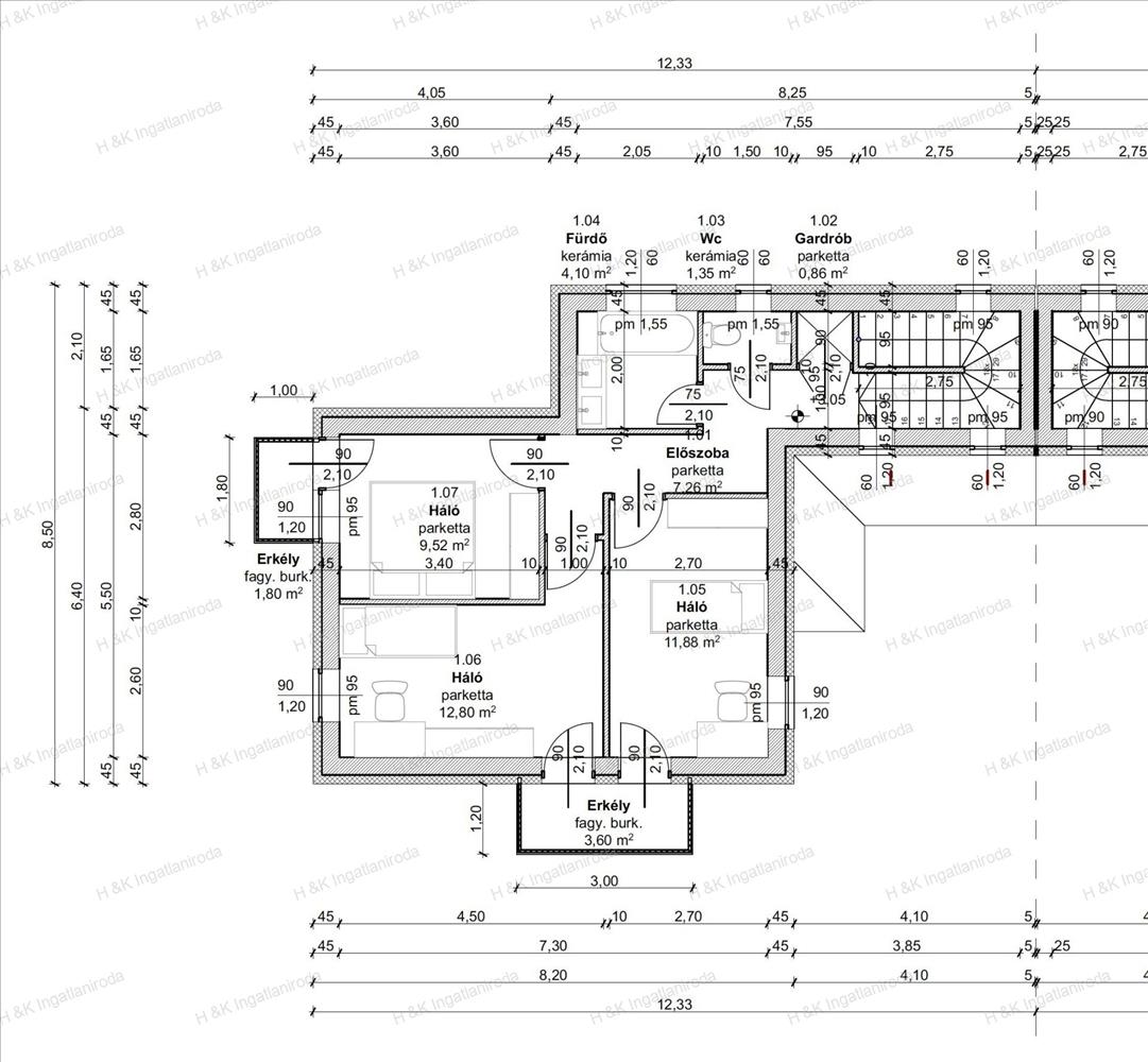
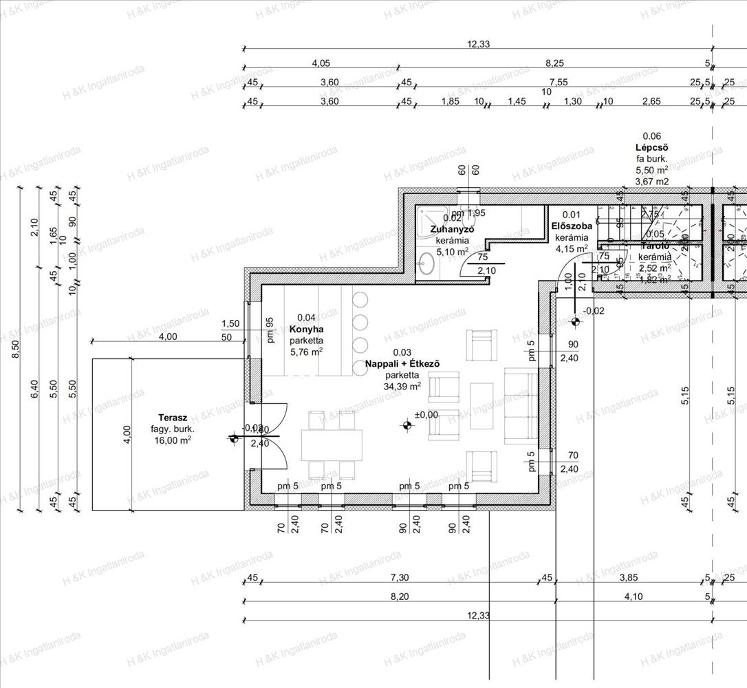
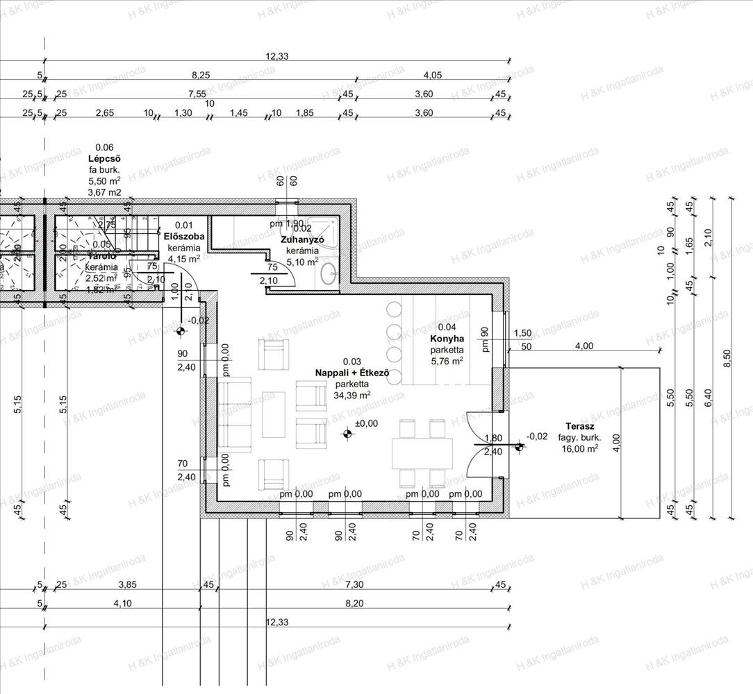
Helyiségek:
Földszint: amerikai konyhás nappali 40, 15 nm, kapcsolódó terasz 16 nm, előszoba 4, 15 nm, zuhanyzó 5, 1 nm, tároló 2, 52 nm, lépcső 5, 5 nm.
Emelet: 3 szoba 12, 8 – 11, 88 és 9, 52 nm, fürdőszoba 4, 1 nm, gardrób 0, 86 nm, közlekedő 7, 26 nm, külön wc 1, 35 nm, 2 erkély 3, 6 nm és 1, 8 nm.
A lakások kulcsrakész állapotban kerülnek átadásra, konyhabútor nélkül.
Burkolatok, szaniterek választhatók, a belső műszaki tartalomban vállalt árig a vételár részét képezve.
A látványképek berendezési ötletet mutatnak.
Ár: 84. 900. 000. - Ft/lakás
Azonosító: 4652 FIX 3% lakáshitelre megvehető

