Eladó új építésű ház Őrbottyán
| Kedvencbe | Megosztás | Árfigyelő |
| FIX 3% lakáshitelre megvehető | ||
| 110 000 000 HUF | ||
Ingatlan adatai
- Eladó vagy kiadó:Eladó
- Település:Őrbottyán
- Kategória:Ház
- Alkategória:Ikerház
- Alapterület:123 m2
- Telekterület:540 m2
- Csere is:Nem
- Hirdető:Cég
- Élő videón megtekinthető:Nem
- Építés éve:2026
- Szobaszám:5
- Állapot:Új építésű
- Hány szintes az ingatlan:nincs megadva
- Tetőtér:nincs megadva
- Komfortosság:nincs megadva
- Pince:Nincs
- Parkolási lehetőség:Garázsban
- Fűtés:nincs megadva
- Bútorozottság:Bútorozatlan
- Fényviszony:nincs megadva
- Tájolás:nincs megadva
- Kilátás:nincs megadva
- Internet:nincs megadva
- Akadálymentesített:nincs megadva
- Energiatanúsítvány:nincs megadva
- Villany:Van
- Víz:Van
- Gáz:nincs megadva
- Csatorna:Van
- Üzenetküldés
- Hívás


Hitel ajánlat
Ingatlan hirdetés leírása
4635: CSAK A GARÁZSOKKAL kapcsolódó, ikerház mindkét fele eladó!!
Csak a garázsokkal kapcsolódó, ikerház mindkét fele eladó! !CÉGES építkezés, a 2024-től aktuális állami támogatások valamint kedvezményes, kamattámogatott hitelek felvehetőek – akár a 3%-os otthon start hitel, CSOK plus, babaváró is igényelhető, az ügyintézésben díjmentesen segítünk!
Az építő munkájára jellemző a megbízhatóság és igényesség, leinformálható, referencia házai megtekinthetők.
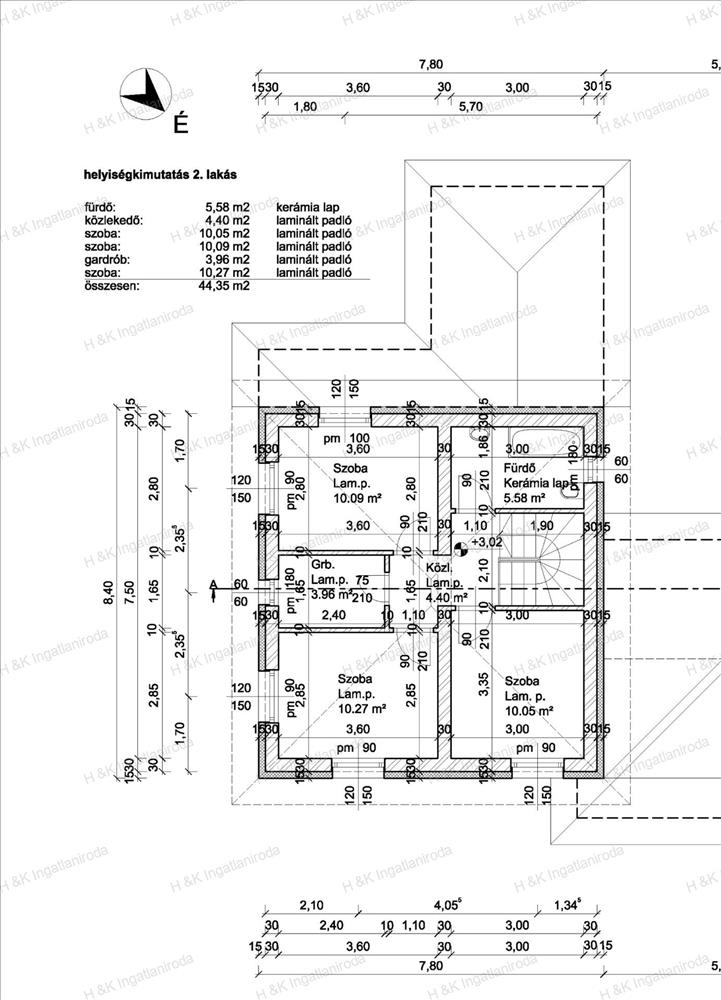
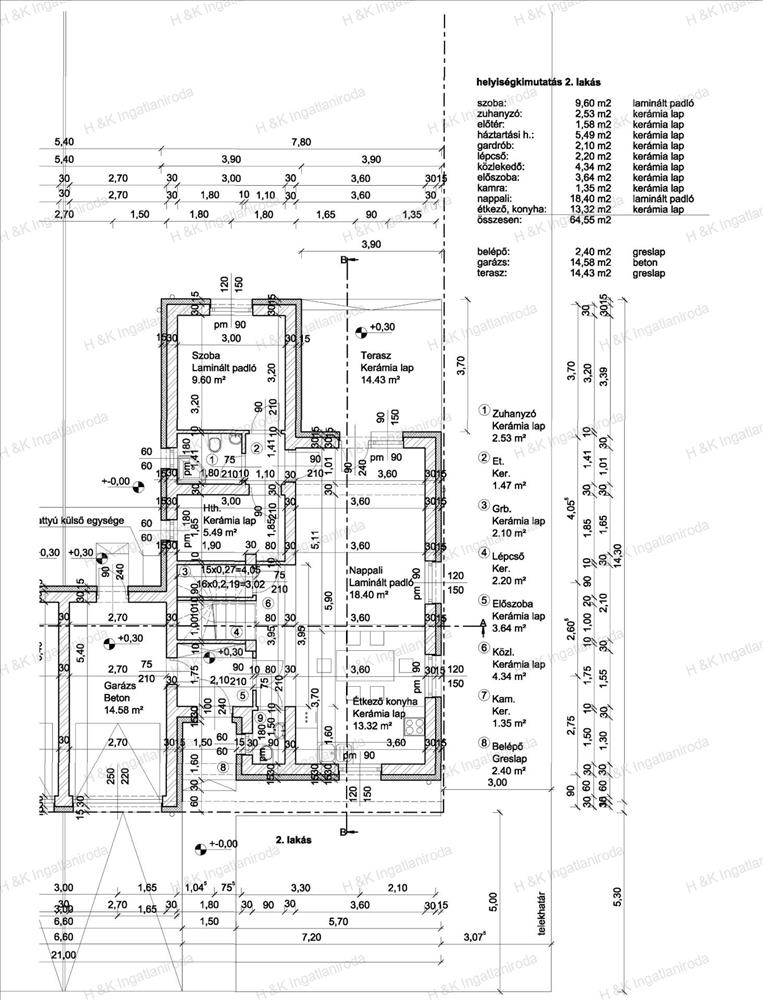
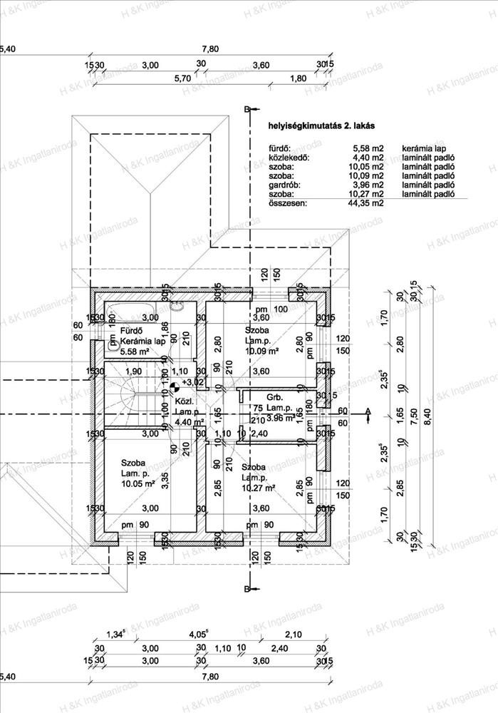
Őrbottyán csendes, mégis központ közeli utcájában eladó egy belső kétszintes, amerikai konyhás nappali + 4 szobás, garázsos ikerház mindkét lakása, melyek a lakótere 109 nm + garázs + teraszok, 540 nm-es telekrészekkel.
A ház belső elrendezése kiváló:
A földszinten tágas, amerikai konyhás nappali, kapcsolódó nagy terasszal, szoba, zuhanyzó, előszoba, kamra - gardrób, háztartási helyiség, külön wc, valamint a lakáskapcsolatos garázs kerül kialakításra
Az emeleten 3 szoba, fürdőszoba, gardrób, közlekedő található.
Rövid műszaki tartalom:
- Porotherm 30 külső falazat, 15 cm dryvit szigeteléssel
- fehér színű, műanyag szerkezetű ablakok, 3 rétegű hőszigetelt üvegezéssel
- vasbetonfödém mindkét szinten, födémen 25 cm ásványgyapot szigetelés, betoncserép fedés a tetőn
- hőszivattyús fűtésrendszer, a hő leadás padlófűtéssel történik, a fürdőszobában törölközőszárító radiátorral
+ Extrák:
- színes alumínium ereszcsatorna, színes bejárati ajtó és garázsajtó
- elektromosan nyitható garázsajtó
- klímakiállások mindkét szinten
- kamera valamint riasztórendszer csövezése
- fűthető garázs
- H tarifás mérőóra rendszer kiépítése
- utcafronti kerítés zsalukővel, színezéssel, deszkázattal felépítve
- térkövezett járda és gépkocsi beálló
Burkolatok, szaniterek választhatók, a belső műszaki tartalomban vállalt árig a vételár részét képezve.
Infrastruktúra: a ház remek helyen található, néhány percen belül gyalogosan elérhető óvoda, iskola, boltok, vasútállomás.
Ára: 110. 000. 000. - Ft/lakás
Azonosító: 4635 FIX 3% lakáshitelre megvehető

