Eladó új építésű ház - Őrbottyán
- INGYENES HIRDETÉS FELADÁS
Ingatlan adatai
- Eladó vagy kiadó:Eladó
- Település:Őrbottyán
- Kategória:Ház
- Alkategória:Ikerház
- Alapterület:71 m2
- Telekterület:850 m2
- Csere is:Nem
- Hirdető:Cég
- Élő videón megtekinthető:Nem
- Építés éve:2026
- Szobaszám:4
- Állapot:Új építésű
- Hány szintes az ingatlan:nincs megadva
- Tetőtér:nincs megadva
- Komfortosság:nincs megadva
- Pince:Nincs
- Parkolási lehetőség:Beállóban
- Fűtés:nincs megadva
- Bútorozottság:nincs megadva
- Fényviszony:nincs megadva
- Tájolás:nincs megadva
- Kilátás:nincs megadva
- Internet:nincs megadva
- Klíma:nincs megadva
- Akadálymentesített:nincs megadva
- Energiatanúsítvány:nincs megadva
- Villany:Van
- Víz:Van
- Gáz:nincs megadva
- Csatorna:Van
- Kapcsolatfelvétel

Czirják Mihály
+36-(20)-220-9995
Mondd meg a hirdetőnek, hogy a megveszLAK-on találtad a hirdetést.
Hitel ajánlatok
Ingatlan hirdetés leírása
Őrbottyán új parcellázású területén megbízható kivitelezőtől Ú...
Őrbottyán új parcellázású területén megbízható kivitelezőtől új építésű ikerház ELADÓ.
Az építkezés most fog elkezdődni, a képeken referencia ház látható!
Az ingatlan főbb jellemzői:
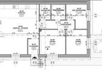
A földszintes házban kialakításra kerül egy amerikai konyhás nappali, három szoba, előszoba, fürdőszoba, háztartási helyiség.
Műszaki tartalom:
-30-as Porotherm tégla+15 cm dryvit szigeteléssel (homlokzati+födém),
-Kiváló minőségben. 3 Rétegű műanyag nyílászárók.
-A fűtésről hőszivattyú gondoskodik padlófűtéssel az egész beltérben, illetve falfűtés is kialakításra kerül.
-Ezen felül egy darab inverteres hőszivattyús klíma is az ár részét képezi.
Referenciával rendelkező, megbízható kivitelezőtől.
Az ingatlanra zöld hitel a CSOK és egyéb illetékkedvezmények igénybe vehetők!
Megtekinthető telefonos időpont-egyeztetés alapján: Czirják Mihály
Tekintse meg további ingatlan-kínálatunkat logónkra kattintva. FIX 3% lakáshitelre megvehető
Tetszett ez az eladó Őrbottyáni új építésű 4 szobás ikerház? Hívd fel a hirdetőt most, és tudj meg mindent erről az eladó ikerházról! Ha gondolod nézelődj tovább az eladó ház Őrbottyán oldal hirdetései között. Ennek az eladó háznak az ára 85000000 Ft és mivel az alapterülete 71 négyzetméter, ezért az átlagos négyzetméterára 1197183 HUF/m2.
Az eladó házak menüpontban további hirdetések között is böngészhetsz. Ha van kedved, akkor böngészhetsz a Czirják Mihály összes hirdetése között, vagy akár a/az Dunakeszi Ingatlanközpont összes hirdetése között is.

