Eladó befejezetlen ház Pécel
| Kedvencbe | Megosztás | Árfigyelő |
| FIX 3% lakáshitelre megvehető | ||
| 98 000 000 HUF | ||
Ingatlan adatai
- Eladó vagy kiadó:Eladó
- Település:Pécel
- Kategória:Ház
- Alkategória:Ikerház
- Alapterület:101 m2
- Telekterület:508 m2
- Csere is:Nem
- Hirdető:Cég
- Élő videón megtekinthető:Nem
- Építés éve:2026
- Szobaszám:3 + 1 fél
- Állapot:Befejezetlen
- Hány szintes az ingatlan:2 szintes
- Tetőtér:nincs megadva
- Komfortosság:nincs megadva
- Parkolási lehetőség:Beállóban
- Fűtés:Gáz (cirko)
- Bútorozottság:nincs megadva
- Fényviszony:nincs megadva
- Tájolás:nincs megadva
- Kilátás:nincs megadva
- Internet:nincs megadva
- Akadálymentesített:nincs megadva
- Energiatanúsítvány:nincs megadva
- Villany:Van
- Víz:Van
- Gáz:Van
- Csatorna:Van
- Üzenetküldés
- Hívás
Fenyvesi Marianna
Mondd meg a hirdetőnek, hogy a megveszLAK-on találtad a hirdetést.

Hitel ajánlat
Ingatlan hirdetés leírása
CSAK NÁLUNK!
Pécel, kedvelt Levendulás lakóparkjában, eladó e...
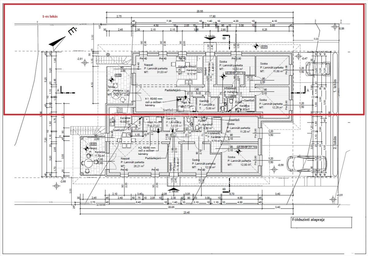
Csak NÁLUNK! Pécel, kedvelt Levendulás lakóparkjában, eladó egy nettó 101, 46 m², bruttó 110, 56 m² alapterületű, 2 lakásos lakóépület 1-es lakása.
A lakásokat, aszfaltos úton lehet megközelíteni.
Az építkezés, várhatóan 2026 március végén kezdődik.
A 101, 46 m²-es lakótérben 3 szoba + nappali szoba biztosít kényelmes életteret a jövőbeli lakóknak. a házhoz tartozik egy ~508 m²-es saját kert, ami tökéletes helyszín családi és baráti összejövetelekhez. a 11, 28 m²-es teraszról ( alatta 9, 1 m²-es tároló) gyönyörű kilátás nyílik a környező tájra.
A lakások szimmetrikus belső elrendezéssel kerültek megtervezésre, földszintes kialakítással, illetve részleges szuterén beépítéssel. a lakások az oldalkerti homlokzatok közepén lévő bejáratokon közelíthetők meg.
Rövid műszaki tartalom:
- Az épület földszinti és emeleti külső határoló falai 30 cm vastag Porotherm 30 X-Therm falazó blokkból, úgynevezett klíma téglából készülnek.
- a külső körítő falak külső oldalai 15 cm grafitos eps (h 80) hab hőszigetelő vakolatot kapnak.
- a tetőtér hőszigetelése, fújt hőszigetelő hab, kb. 45 Cm vastag kőzetgyapotnak fele meg.
- a válaszfalak 10 n+f Porotherm válaszfal lapokból falazott 10 cm vastag falszerkezetek.
- a külső nyílászárók, fehér színben gyártott műanyag 3 rétegű, hőszigetelő üvegezéssel ellátottak (u= 0, 9 W/m2K) ablakok lesznek.
- a meleg víz ellátást és a fűtést gáz kondenzációs kazán biztosítja majd, padlófűtés hűleadással.
Az alternatív fűtésről és hűtésről, klíma fog gondoskodni.
A tervezet áram kapacitás 3 x16 a lesz.
Felár ellenében H-tarifás óra kérhető!
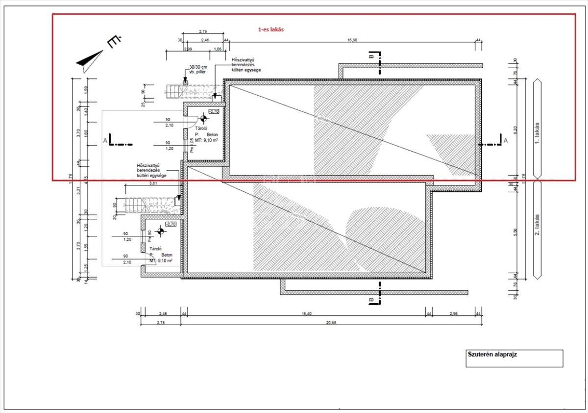
Helységlista:
-Földszint:
- 4, 48 m² belépő,
- 7, 59 m² közlekedő,
-12, 12 m² szoba I. ,
-11, 68 M² szoba II. ,
-12, 25 M² szoba iii. ,
- 4, 80 M² fürdő,
- 1, 44 m² WC,
- 3, 68 m² gardrób,
- 3, 27 m² háztartási helység,
-31, 03 m² nappali,
- 9, 12 m² konyha étkező
------------------
101, 46 m²
Nyitott terasz 11, 28 m²
A terasz alatt szuterén tároló 9, 10 m² lesz.
A kert durva tereprendezéssel lesz átadva.
Műszaki tartalom:
-Hideg burkolat 6. 000 Ft/m²
-Meleg burkolat 5. 000 Ft/m²
-Szaniterek 200. 000 Ft-ig
-Beltéri ajtók 60. 000 Ft, kilinccsel együtt /db
Magasabb árú építőanyag választás esetén a különbözetet a Vevő finanszírozza.
Az ár tartalmazza még:
- H-tarifa óra előkészítését, az órát és a dobozt nem.
- Kapumozgató elektronika előkészítését,
- Riasztó előkészítését.
A berendezések kiépítése opcionálisan, plusz pénzért megrendelhetők.
A belső válaszfalak, még MÓDOSÍTHATÓK!
A Kivitelező a műszaki tartalom változtatás jogát fenntartja, az előírt energetikai előírások figyelembe vételével.
A Cég számos referenciával rendelkezik. Komoly érdeklődés esetén szívesen mutatunk referenciát!
Ne hagyja ki ezt a lehetőséget, legyen Ön az új ikerház tulajdonosa Pécelen!
Finanszírozás 40 - 50 % önerő.
Várható átadás: 2027 III. -Iv. Negyedév.
JÖJJÖN el, nézze meg, szeressen bele!
A gv HitelCentrum, kötelezettség mentesen és díjmentesen, versenyezteti Önért a bankok hitelajánlatait. Ismerje meg a vissza nem térítendő állami támogatásokat!
* Egyedi, bankfiókban nem elérhető kamat- és díjkedvezmények.
* Ingyenes Hitelképesség vizsgálat.
* Idő, energia és pénz megtakarítás.
* Teljes hivatali ügyintézés.
* Babaváró.
* CSOK+
* Hitel.
* Megtakarítás,
* és egyéb banki tranzakcióban segítségére lehetünk!
• Igény esetén, ügyvédi segítséget nyújtunk, megfizethető áron!
Ha az ingatlannal kapcsolatban bővebb felvilágosításra lenne szüksége, hívjon bizalommal, állok rendelkezésére!
F. M. FIX 3% lakáshitelre megvehető

