Eladó új építésű ház - Pilis
- INGYENES HIRDETÉS FELADÁS
Ingatlan adatai
- Eladó vagy kiadó:Eladó
- Település:Pilis
- Kategória:Ház
- Alkategória:Ikerház
- Alapterület:102 m2
- Telekterület:900 m2
- Csere is:Nem
- Hirdető:Cég
- Élő videón megtekinthető:Nem
- Építés éve:2023
- Szobaszám:3
- Állapot:Új építésű
- Hány szintes az ingatlan:Földszintes
- Tetőtér:nincs megadva
- Komfortosság:nincs megadva
- Pince:nincs megadva
- Parkolási lehetőség:nincs megadva
- Fűtés:Gáz (cirko)
- Bútorozottság:nincs megadva
- Fényviszony:Napfényes
- Tájolás:DNY
- Kilátás:nincs megadva
- Internet:nincs megadva
- Klíma:nincs megadva
- Akadálymentesített:nincs megadva
- Energiatanúsítvány:nincs megadva
- Villany:Van
- Víz:Van
- Gáz:Utcában
- Csatorna:Van
- Kapcsolatfelvétel

Rizmayer Mária
+36-(20)-211-4504
Mondd meg a hirdetőnek, hogy a megveszLAK-on találtad a hirdetést.
Referencia szám: HZ099750
Hitel ajánlatok
Ingatlan hirdetés leírása
Eladó ház, Pilis, Eladó új építésű ház - Pilis
Eladó új építésű ikerház Pilis frekventált részén, vasútállomás KÖZELÉBEN!
AZ Ingatlan 102 m2 alapterületű egy 900 m2-es telken helyezkedik el. További terasz mérete 20m2. Kiváló lakóközösség zárt Lakóparkban helyezkedik el, új építésű, pár éves ingatlanok szomszédságában.
CSOK, 5%-os áfa, illetékmentesség igénybe vehető.
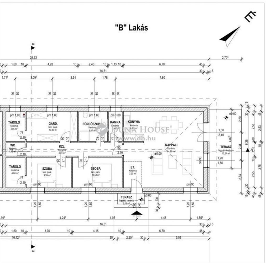
Kialakítása: 2 szoba, tágas 40 m2-es amerikai nappali konyha, kamra, fürdő+wc, külön wc, gardrób, 2 tároló.
Fűtést gázcirkó biztosítja, mindenhol padlófűtés. Nappaliban 3, 5 kw-os inverteres klíma.
EXTRA: viacolor beálló, redőny, Geberit márkájú wc a falba süllyesztve.
Választható hideg és meleg burkolatok 900. 000 Ft-ig telje réteg rendben. Dekor fóliás ajtók 60. 000 Ft-ig választhatók.
Szigetelés 15 cm, tető szigetelés 30 cm. Sok referencia munkát tudok mutatni, nézzük meg együtt a helyszínt és a kész lakóingatlanokat.
Homlokzat: antracit lábazat, fehér falak, antracit tető.
Közelben: pár perc gyalogosan Vasútállomás, Gyógyszertár. . . Bevásárlási lehetőségek, Iskola, Óvoda.
Budapest autóval M4-es autópálya 25 perc, vonattal Budapest Nyugati Pályaudvarig 50 perc.
Átadás: 2024. Augusztus Megbízható kivitelező, több éve a piacon.
Amennyiben felkeltettem érdeklődését, várom megtisztelő hívását a hét bármely napján.
Érd. : Rizmayer Mária +36202114504 email: rizmayer. Maria@dh. Hu
Referencia szám: hz099750 FIX 3% lakáshitelre megvehető
Tetszett ez az eladó Pilisi új építésű 3 szobás ikerház? Hívd fel a hirdetőt most, és tudj meg mindent erről az eladó ikerházról! Ha gondolod nézelődj tovább az eladó ház Pilis oldal hirdetései között. Ennek az eladó háznak az ára 66625000 Ft és mivel az alapterülete 102 négyzetméter, ezért az átlagos négyzetméterára 653186 HUF/m2.
Az eladó házak menüpontban további hirdetések között is böngészhetsz. Ha van kedved, akkor böngészhetsz a Rizmayer Mária összes hirdetése között, vagy akár a/az Duna House Villa Gyömrő összes hirdetése között is.

