Eladó új építésű ház - Pilisborosjenő
- INGYENES HIRDETÉS FELADÁS
Ingatlan adatai
- Eladó vagy kiadó:Eladó
- Település:Pilisborosjenő
- Kategória:Ház
- Alkategória:Ikerház
- Alapterület:123 m2
- Telekterület:405 m2
- Csere is:Nem
- Hirdető:Cég
- Élő videón megtekinthető:Nem
- Építés éve:2026
- Szobaszám:4
- Állapot:Új építésű
- Hány szintes az ingatlan:2 szintes
- Tetőtér:nincs megadva
- Komfortosság:nincs megadva
- Pince:Nincs
- Parkolási lehetőség:Garázsban
- Fűtés:nincs megadva
- Bútorozottság:nincs megadva
- Fényviszony:nincs megadva
- Tájolás:DNY
- Kilátás:nincs megadva
- Internet:nincs megadva
- Klíma:Van
- Akadálymentesített:nincs megadva
- Energiatanúsítvány:nincs megadva
- Villany:nincs megadva
- Víz:nincs megadva
- Gáz:nincs megadva
- Csatorna:nincs megadva
- Kapcsolatfelvétel

Witek Krisztina
+36-(20)-412-7014
Mondd meg a hirdetőnek, hogy a megveszLAK-on találtad a hirdetést.
Hitel ajánlatok
Ingatlan hirdetés leírása
Pilisborosjenőn, PANORÁMÁS Új építésű Ikerház ELADÓ
3%-Os Hitel
CSOK felvehető rá!
PILISBOROSJENŐ legszebb részén Lazaréten, PANORÁMÁS Új építésű IKERHÁZ épül
Hatalmas terasszal, saját intim KERTTEL gyönyörű, kertvárosi környezetben.
Átadás 2027
Kitűnő lokációval rendelkezik:
sétatávolságra buszmegálló, iskola, óvoda, gyógyszertár és bevásárlási lehetőség.
ELRENDEZÉS SZERINT:
/nappali + 3 háló + 1 fürdő + wc + garázs/ + 400nm saját kert
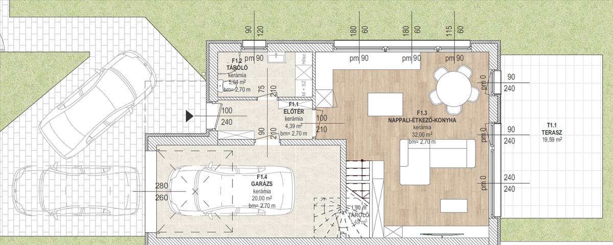
Földszint:
- Nappali amerikai konyhával + Étkező (32nm )
- Terasz (19, 6nm )
- Wc
- Tároló
- Garázs
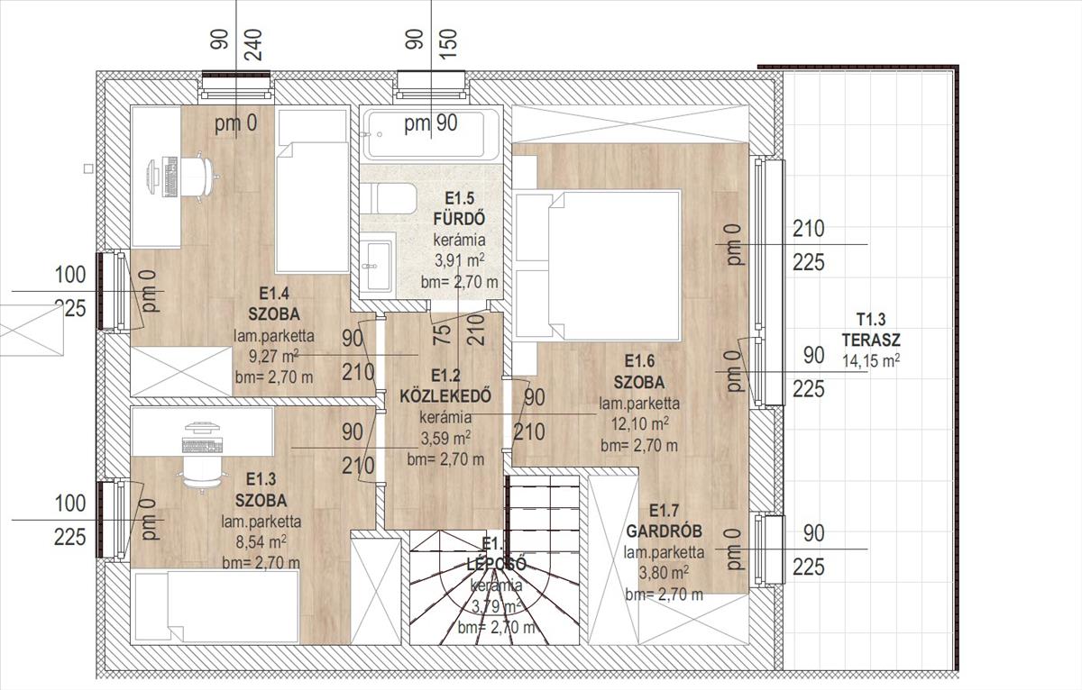
Emelet:
- Hálószoba 3 db
- Fürdőszoba + wc
MŰSZAKI TARTALOM:
- Az épületek egymás mellett álló teljesen független szerkezetűek
- Az alapozás, falazat, födém és a tető is külön szerkezetként épül!
- Mindkét épület bejárata teljesen különálló.
- 30-As porotherm téglából épül
- 15 cm dryvit szigeteléssel
- Vasbeton födémmel
- Cseréptető 22cm szigeteléssel
- Fűtés Hőszivattyúval(Panasonic) és padlófűtéssel
- Hideg és Meleg burkolatok választhatóak
- Műanyag ablakok 3 rétegű 5 légkamrás, redőny előkészítéssel
- Saját garázs és térkövezett autóbeálló
A feltüntetett ár alap műszaki tartalomat foglal magában.
Amennyiben felkeltettem érdeklődését, várom hívását! FIX 3% lakáshitelre megvehető
Tetszett ez az eladó Pilisborosjenői új építésű 4 szobás ikerház? Hívd fel a hirdetőt most, és tudj meg mindent erről az eladó ikerházról! Ha gondolod nézelődj tovább az eladó ház Pilisborosjenő oldal hirdetései között. Ennek az eladó háznak az ára 149900000 Ft és mivel az alapterülete 123 négyzetméter, ezért az átlagos négyzetméterára 1218699 HUF/m2.
Az eladó házak menüpontban további hirdetések között is böngészhetsz. Ha van kedved, akkor böngészhetsz a Witek Krisztina összes hirdetése között, vagy akár a/az Be My Home összes hirdetése között is.

