Eladó új építésű ház - Pilisborosjenő
- INGYENES HIRDETÉS FELADÁS
Ingatlan adatai
- Feladva:5 hónapja a megveszLAK-on
- Eladó vagy kiadó:Eladó
- Település:Pilisborosjenő
- Kategória:Ház
- Alkategória:Ikerház
- Alapterület:140 m2
- Telekterület:404 m2
- Csere is:Nem
- Hirdető:Cég
- Élő videón megtekinthető:Nem
- Építés éve:2026
- Szobaszám:4
- Állapot:Új építésű
- Hány szintes az ingatlan:nincs megadva
- Tetőtér:nincs megadva
- Komfortosság:nincs megadva
- Pince:nincs megadva
- Parkolási lehetőség:nincs megadva
- Fűtés:nincs megadva
- Bútorozottság:nincs megadva
- Fényviszony:nincs megadva
- Tájolás:D
- Kilátás:nincs megadva
- Internet:nincs megadva
- Klíma:nincs megadva
- Akadálymentesített:nincs megadva
- Energiatanúsítvány:nincs megadva
- Villany:Van
- Víz:Van
- Gáz:Nincs
- Csatorna:Van
- Kapcsolatfelvétel

Oláh Tímea
+36-(70)-716-8826
Mondd meg a hirdetőnek, hogy a megveszLAK-on találtad a hirdetést.
Hitel ajánlatok
Ingatlan hirdetés leírása
Képzelje el, hogy egy új, modern otthonra talál, amely minden ...
Képzelje el, hogy egy új, modern otthonra talál, amely minden igényét kielégíti, és mindezt egy csendes, hegyvidéki környezetben!
Pilisborosjenő szívében, Pest vármegyében, egy igazán különleges ingatlant kínálunk megvételre, amely tökéletes választás lehet családosok számára.
Az ingatlan:
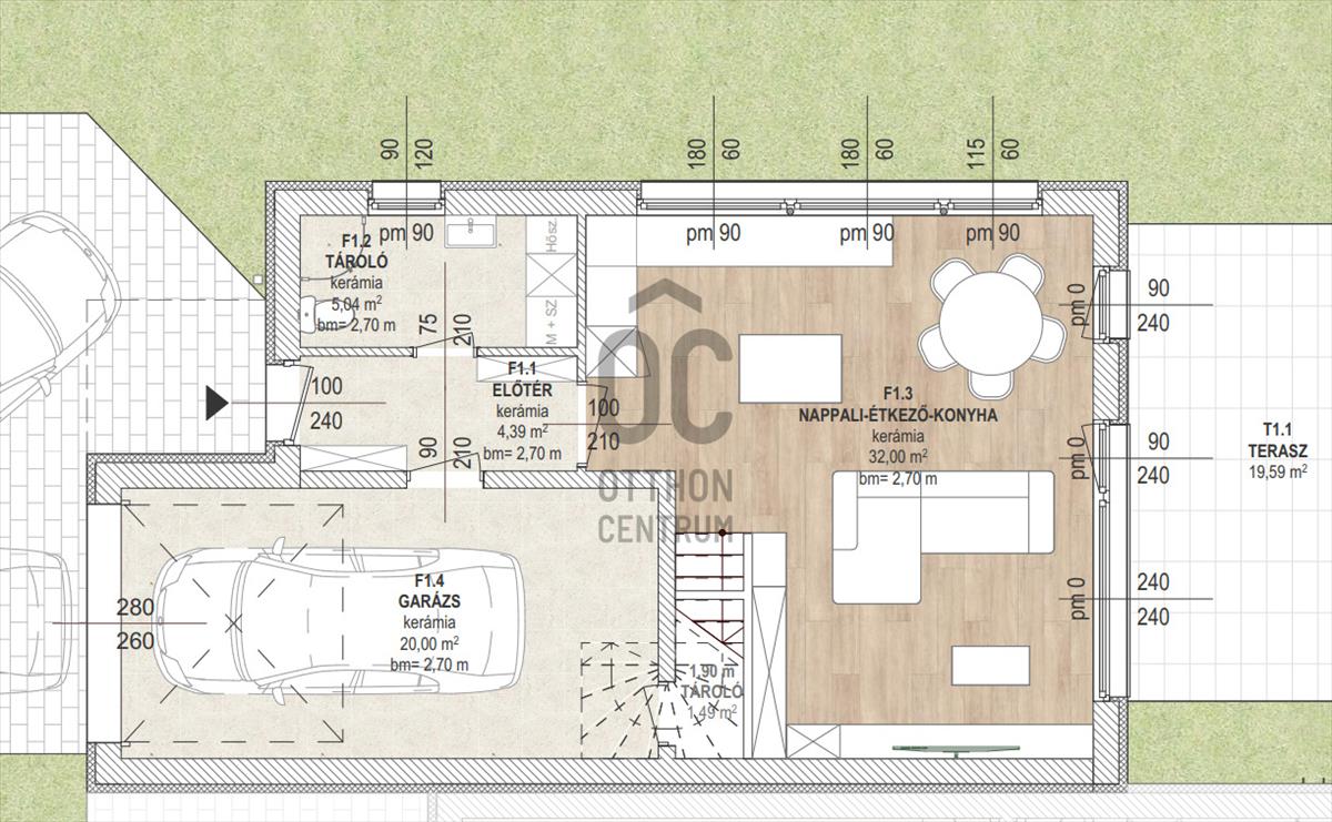
- nettó alapterülete 106, 43 négyzetméter teraszokkal és garázzsal 123 nm
- 404 négyzetméteres telek
-nappali + 3 háló
- 14 és 15 négyzetméteres terasz és erkély
- 2 fürdőszoba
- gardrób
- 2 felszini beálló
- hőszivattyús fűtés
- Split klima hűtés
- napelemes előkészités
-3 rétegű üvegszerkezetes nyilászárók
Fontos infó még: a kivitelező továbbiakban az elkészített, kert, beálló kerítés, külső burkolatokra + 30 milliót kér a befejezéshez.
Ez a világos, tágas ház négy szobával és két fürdőszobával rendelkezik, így elegendő helyet biztosít a család minden tagja számára.
- Amerikai konyha és a nappali egy légtérben található
- a hőszivattyús fűtés korszerű megoldást kínál, amely nemcsak a környezetbarát megoldások híveinek kedvez, hanem a rezsiköltségeket is kedvezően befolyásolja.
- Csendes környék biztonságot és nyugalmat nyújt, miközben a közlekedési lehetőségek is könnyen elérhetők. a város központja mindössze néhány percnyi autóútra található, ahonnan a helyi buszjáratokkal gyorsan és kényelmesen elérheti a közeli településeket, valamint a fővárost is.
Pilisborosjenő egy barátságos település, amely számos lehetőséget kínál a szabadidő eltöltésére. a környéken található sétautak, kerékpárutak és zöld területek ideálisak a családi kirándulásokhoz, míg a közeli boltok, iskolák és óvodák biztosítják a mindennapi élet kényelmét.
Ez az ingatlan nemcsak otthon, hanem egy befektetési lehetőség is, hiszen a hegyvidéki ingatlanok iránti kereslet folyamatosan növekszik. Ha Ön is szeretne egy olyan ingatlant, amely minden szempontból megfelel az elvárásainak, ne habozzon, keressen bizalommal kérdéseivel!
Ez a lehetőség nem tart sokáig, és lehet, hogy éppen Ön lesz az, aki beléphet ebbe a csodálatos otthonba! Hitel.hu - Hasonlítsa össze a bankok lakáshitel ajánlatait
Tetszett ez az eladó Pilisborosjenői új építésű 4 szobás ikerház? Hívd fel a hirdetőt most, és tudj meg mindent erről az eladó ikerházról! Ha gondolod nézelődj tovább az eladó ház Pilisborosjenő oldal hirdetései között. Ennek az eladó háznak az ára 169900000 Ft és mivel az alapterülete 140 négyzetméter, ezért az átlagos négyzetméterára 1213571 HUF/m2.
Az eladó házak menüpontban további hirdetések között is böngészhetsz. Ha van kedved, akkor böngészhetsz a Oláh Tímea összes hirdetése között, vagy akár a/az Otthon Centrum III. kerület - Csillaghegy összes hirdetése között is.

