Eladó új építésű ház - Pilisborosjenő
- INGYENES HIRDETÉS FELADÁS
Ingatlan adatai
- Eladó vagy kiadó:Eladó
- Település:Pilisborosjenő
- Kategória:Ház
- Alkategória:Ikerház
- Alapterület:120 m2
- Telekterület:318 m2
- Csere is:Nem
- Hirdető:Cég
- Élő videón megtekinthető:Nem
- Építés éve:2025
- Szobaszám:3 + 2 fél
- Állapot:Új építésű
- Hány szintes az ingatlan:nincs megadva
- Tetőtér:nincs megadva
- Komfortosság:nincs megadva
- Pince:nincs megadva
- Parkolási lehetőség:Beállóban
- Fűtés:nincs megadva
- Bútorozottság:nincs megadva
- Fényviszony:nincs megadva
- Tájolás:nincs megadva
- Kilátás:Panorámás
- Internet:nincs megadva
- Klíma:Van
- Akadálymentesített:nincs megadva
- Energiatanúsítvány:nincs megadva
- Villany:Van
- Víz:Van
- Gáz:Van
- Csatorna:Van
- Kapcsolatfelvétel

Metykó András
+36-(20)-272-9735
Mondd meg a hirdetőnek, hogy a megveszLAK-on találtad a hirdetést.
Hitel ajánlatok
Ingatlan hirdetés leírása
5 szobás, hőszivattyús új építésű ikerház
Új építésű lakópark az erdő ölelésében Pilisborosjenőn-3×2 lakásos projekt a Nagy-Kevély lábánál.
6 Új építésű, hőszivattyús ikerházat kínálunk megvételre Pilisborosjenőn a Nagy-Kevély lábánál, Budapesttől néhány percre! Mindegyik épület külön kerttel, autóbeállóval vagy garázzsal rendelkezik.
A beruházó cég 35+ éves tapasztalattal rendelkezik az ország számos régiójában. a házak magas műszaki tartalommal, energiahatékony megoldásokkal és prémium minőségű anyagokkal kerülnek kialakításra az épület szerkezetétől egészen a látható és tapintható anyagokig.
Az ingatlan:
•Alapterület: 120 nm
•Nappali + 4 hálószoba két szinten
•Duplakomfort
•Tájolása dél-nyugati
•Fedett autóbeálló
•Telekméret 318 nm
•Saját kert 257 nm
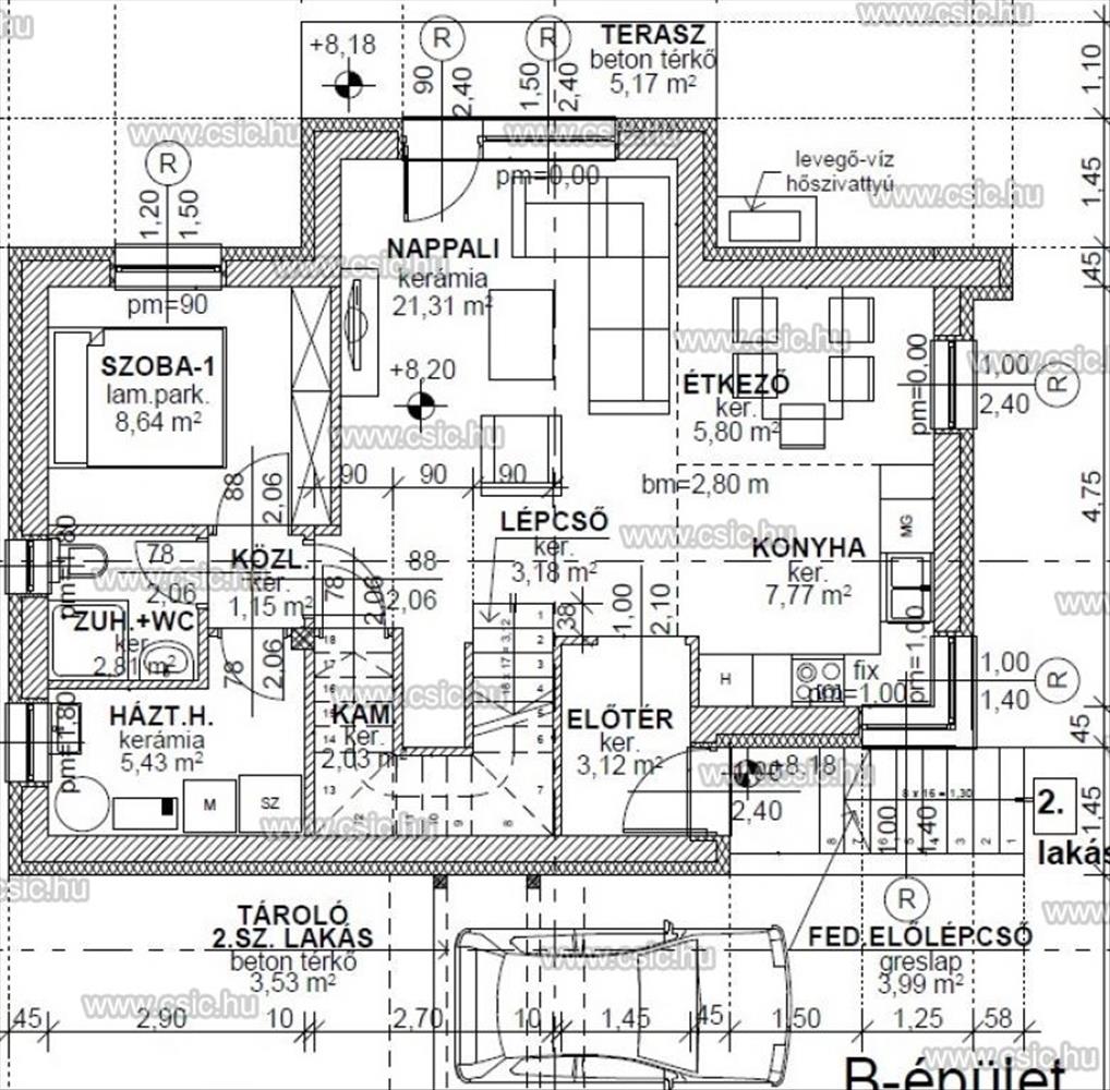
•Földszint:
-Nappali
- Konyha + étkező
- Hálószoba
-Kamra
- Háztartási helyiség
-fürdő + wc egyben
- terasz
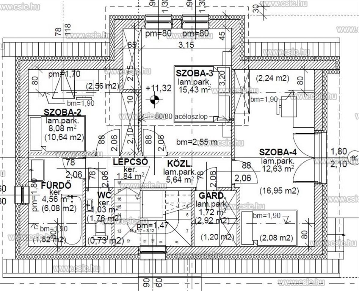
•Emelet
- 3 hálószoba
- gardrób
- fürdő
- wc
Főbb műszaki jellemzők:
•Prémium levegő-víz hőszivattyú – H-tarifa
•A energetikai besorolás
•Porotherm 30 n+f Rapid Dryfix tégla, monolit födém
•3 rétegű üvegezés, 6 kamrás hőszigetelt nyílászárok
•Elektromos redőny, rejtett tokos kialakítással
•Padlófűtés helyiségenként szabályozva
•2 db hűtő-fűtő klíma (fsz és emelet)
•Riasztó és napelem előkészítés
•Elektromos autótöltési lehetőség
•Házanként 1*32a és 3*16A
•Kerti csap, térburkolatok, támfalak
•Egyedi kertrendezés az önálló kertekben
•Magas minőségű szaniterek, burkolatok (8000 Ft/nm), cpl fóliás beltéri ajtók.
A Budapesttől mindössze 13 kilométerre, északnyugatra elhelyezkedő település egy csendes zsákfaluban található, amely autóval könnyen elérhető a 10-es úton keresztül, akár Óbudán, akár Csillaghegy irányából. a közösségi közlekedés is jól kiépített: autóbuszokkal, valamint a közeli Üröm vasútállomásán keresztül, amely a Nyugati pályaudvart köti össze Esztergommal.
A környék ideális választás mindazok számára, akik nyugodt, természetközeli életre vágynak, mégis szeretnék megtartani a főváros közelségét. a településen modern óvoda, bölcsőde és egy korszerű tornateremmel ellátott általános iskola is működik, emellett orvosi rendelők és különböző szociális szolgáltatások is rendelkezésre állnak.
Várom hívását a hét minden napján! Hitel.hu - Hasonlítsa össze a bankok lakáshitel ajánlatait

