Eladó jó állapotú ház - Piliscsaba
- INGYENES HIRDETÉS FELADÁS
Ingatlan adatai
- Eladó vagy kiadó:Eladó
- Település:Piliscsaba
- Kategória:Ház
- Alkategória:Ikerház
- Alapterület:194 m2
- Telekterület:522 m2
- Csere is:Nem
- Hirdető:Cég
- Élő videón megtekinthető:Nem
- Építés éve:2003
- Szobaszám:4
- Állapot:Jó állapotú
- Hány szintes az ingatlan:Földszintes
- Tetőtér:nincs megadva
- Komfortosság:nincs megadva
- Pince:nincs megadva
- Parkolási lehetőség:Teremgarázsban
- Fűtés:Gáz (cirko)
- Bútorozottság:nincs megadva
- Fényviszony:Napfényes
- Tájolás:DK
- Kilátás:nincs megadva
- Internet:nincs megadva
- Klíma:Van
- Akadálymentesített:nincs megadva
- Energiatanúsítvány:nincs megadva
- Villany:nincs megadva
- Víz:nincs megadva
- Gáz:nincs megadva
- Csatorna:nincs megadva
- Kapcsolatfelvétel

Kéki Mónika
+36-(70)-518-5463
Mondd meg a hirdetőnek, hogy a megveszLAK-on találtad a hirdetést.
Referencia szám: M320362
Hitel ajánlatok
Ingatlan hirdetés leírása
Eladó Ház, Piliscsaba
Piliscsaba egyik legkedveltebb részén, csabagyöngyén, a természetvédelmi övezet közvetlen határán kínálunk megvételre egy napfényes, körpanorámás, 2003-ban épült ikerház egyik FELÉT.
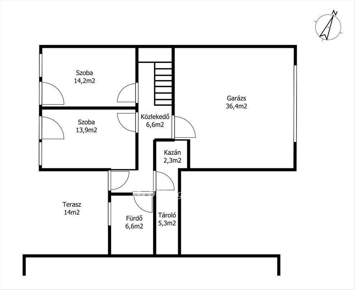
Az ingatlan nappali + 3 szobás kialakítású, mediterrán stílusban épült, egy 566 m? -Es telken helyezkedik el.
A ház lakóterülete 133 m? , Ehhez tartozik egy 36 m? -Es, kétállásos fűthető garázs, valamint összesen 38 m? Terasz.
A bejárati szinten előszoba, tágas nappali, konyha? Étkező, egy hálószoba, fürdőszoba és külön wc található. a nappaliból és a hálószobából nyíló teraszról, valamint a konyhából is lenyűgöző kilátás nyílik a pilisi tájra.
Az alsó szinten két hálószoba, kádas fürdőszoba, háztartási helyiség, valamint a két autó befogadására alkalmas, fűthető garázs kapott helyet. Erről a szintről közvetlen kijárat nyílik a nagy fedett teraszra és a szépen parkosított kertbe.
A ház fűtését és melegvíz-ellátását cirkó kazán biztosítja, a nappaliban klíma gondoskodik a komfortérzetről.
A gondos tulajdonosnak köszönhetően az ingatlan újszerű állapotú, a konyhabútort és a beépített gépeket néhány éve cserélték.
További információért és megtekintés egyeztetéséhez várom hívását? Akár hétvégén is!
Az OTP Bankcsoport teljes körű ügyintézéssel áll az eladók és a vevők rendelkezésére! a kínálatunkból választott ingatlan finanszírozásához kedvezményes hitelkonstrukciókat kínálunk. FIX 3% lakáshitelre megvehető
Tetszett ez az eladó Piliscsabai jó állapotú 4 szobás ikerház? Hívd fel a hirdetőt most, és tudj meg mindent erről az eladó ikerházról! Ha gondolod nézelődj tovább az eladó ház Piliscsaba oldal hirdetései között. Ennek az eladó háznak az ára 135000000 Ft és mivel az alapterülete 194 négyzetméter, ezért az átlagos négyzetméterára 695876 HUF/m2.
Az eladó házak menüpontban további hirdetések között is böngészhetsz. Ha van kedved, akkor böngészhetsz a Kéki Mónika összes hirdetése között, vagy akár a/az OTPip Budapest IX. kerület Üllői út 21 - OTP Ingatlanpont Iroda összes hirdetése között is.

