Eladó befejezetlen ház - Pomáz (83488563)
ELADÓ INGATLANOK
KIADÓ INGATLANOK
CSERE INGATLANOK
KÜLFÖLDI INGATLANOK
RÉSZLETES KERESÉS
INGATLAN HÍREK
HIRDETÉS FELADÁS
BELÉPÉS
REGISZTRÁCIÓ

Ingatlan adatai

  • Eladó vagy kiadó:Eladó
  • Település:Pomáz
  • Kategória:Ház
  • Alkategória:Ikerház
  • Alapterület:115 m2
  • Telekterület:340 m2
  • Csere is:Nem
  • Hirdető:Cég
  • Élő videón megtekinthető:Nem
  • Építés éve:2025
  • Szobaszám:5
  • Állapot:Befejezetlen
  • Hány szintes az ingatlan:Földszintes
  • Tetőtér:nincs megadva
  • Komfortosság:nincs megadva
  • Pince:Nincs
  • Parkolási lehetőség:Udvaron
  • Fűtés:nincs megadva
  • Bútorozottság:nincs megadva
  • Fényviszony:nincs megadva
  • Tájolás:nincs megadva
  • Kilátás:nincs megadva
  • Internet:nincs megadva
  • Klíma:Van
  • Akadálymentesített:nincs megadva
  • Energiatanúsítvány:nincs megadva
  • Villany:Van
  • Víz:Van
  • Gáz:Nincs
  • Csatorna:Van
  • Kapcsolatfelvétel
02. Tóth Helga - Hirde...
02. Tóth Helga - Hirde...
+36-(30)-255-5500
Mondd meg a hirdetőnek, hogy a megveszLAK-on találtad a hirdetést.
Érdekel kedvezményes lakáshitel ajánlat is
Az ASZF-et és az Adatkezelési tájékoztatót elfogadom

Hitel ajánlatok

 

Ingatlan hirdetés leírása

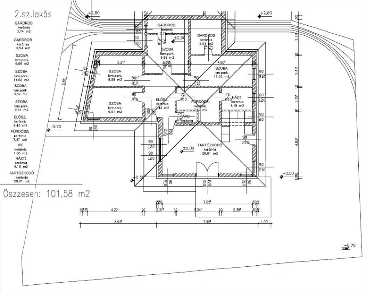
Pomázon a Meselia déli oldalában egy szintes, nappali + 4 háló...


Pomázon a Meselia déli oldalában, csendes környezetben 340 nm-es saját, kizárólagos használatú kerttel rendelkező, egy szintes, nappali + 4 hálószobás ikerház-fél eladó.

Az építéssel kapcsolatos paraméterek:
- Tervezett átadás: szerződés kötéstől számított egy éven belül
- hőszivattyús fűtés, padlófűtéssel, radiátorokkal
- magas minőségű hőszigetelés, zöld hitelnek megfelelő energetikai besorolás
- több rétegű, műanyag nyílászárók
- választható belső burkolatok, szaniterek
- riasztó rendszer előkészítés
- 30 nm-es, az amerikai konyhás nappalihoz kapcsolódó terasz
- durva tereprendezés
- kulcsrakész átadás
Finanszírozási lehetőség:
- Zöld hitel kompatibilitás
- CSOK (10+15m) hitel, illeték mentesség, Áfa visszatérítés igényelhető.
- Az alaprajz igény szerint még módosítható.

A beruházó a környék elismert építési vállalkozója, rengeteg referenciamunkával rendelkezik. FIX 3% lakáshitelre megvehető
 
 

Hasonló ingatlan hirdetések

 
 
© megveszLAK.hu - Az egyszerűen jó ingatlan hirdetési oldal