Eladó újszerű állapotú ház - Siófok
- INGYENES HIRDETÉS FELADÁS
Ingatlan adatai
- Eladó vagy kiadó:Eladó
- Település:Siófok
- Kategória:Ház
- Alkategória:Ikerház
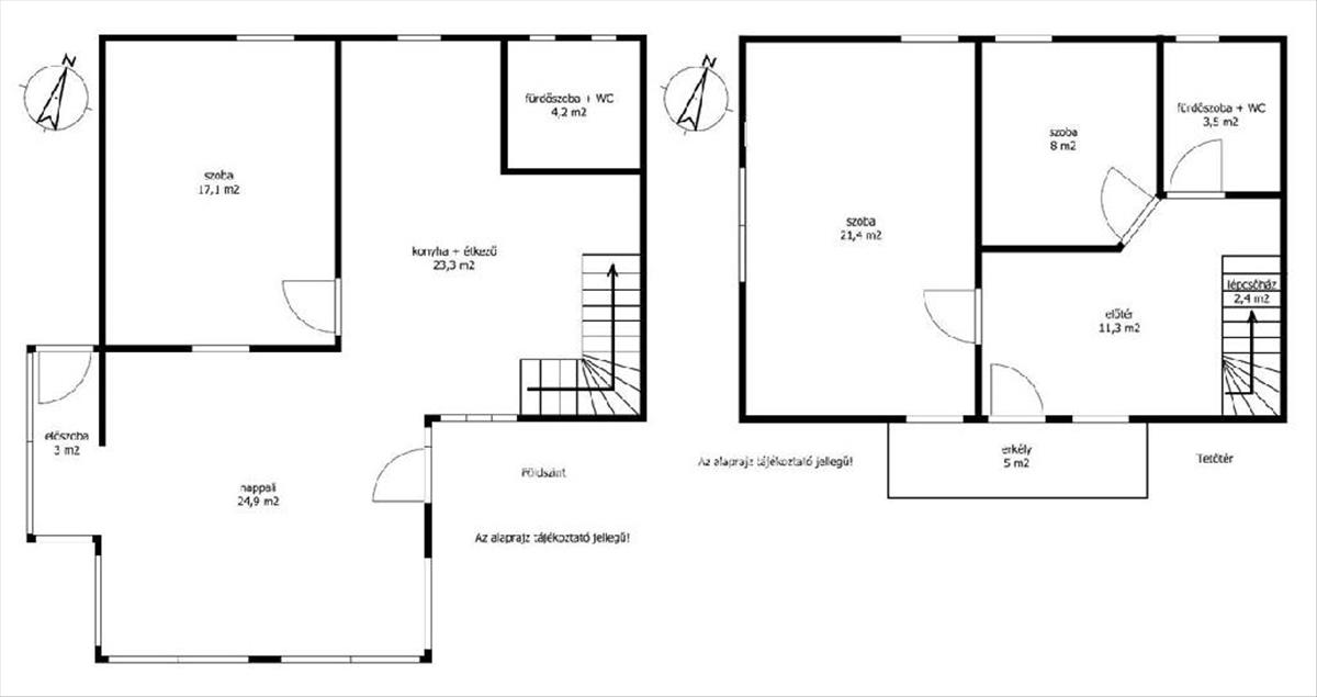
- Alapterület:121 m2
- Telekterület:380 m2
- Csere is:Nem
- Hirdető:Cég
- Élő videón megtekinthető:Nem
- Építés éve:1995
- Szobaszám:4
- Állapot:Újszerű, kitűnő
- Hány szintes az ingatlan:2 szintes
- Tetőtér:nincs megadva
- Komfortosság:nincs megadva
- Pince:nincs megadva
- Parkolási lehetőség:Garázsban
- Fűtés:nincs megadva
- Bútorozottság:nincs megadva
- Fényviszony:nincs megadva
- Tájolás:nincs megadva
- Kilátás:nincs megadva
- Internet:nincs megadva
- Klíma:nincs megadva
- Akadálymentesített:nincs megadva
- Energiatanúsítvány:nincs megadva
- Villany:nincs megadva
- Víz:nincs megadva
- Gáz:nincs megadva
- Csatorna:nincs megadva
- Kapcsolatfelvétel

Hitel ajánlatok
Ingatlan hirdetés leírása
Balaton Déli part, Siófok, Balatonszéplak 122 m2 ikerház, 380 ...
Balaton Déli part, Siófok, Balatonszéplak 122 m2 ikerház, 380 m2 telek eladó. a kivett lakóházként nyilvántartott ingatlan az Ezüstparton, a szabadstrandtól 400 méterre, 5 perc sétára található. a szigetelt, 3 rétegű nyílászárókkal ellátott, 2025-ben teljeskörűen felújított ház áramellátását napelem biztosítja. a ház fűtéséről az egész lakóteret melegen tartó cserépkályha gondoskodik, amit elektromos fűtőpanelek és egy tetőtéri klíma egészít ki szükség szerint. Az ingatlan értékét tovább növeli a hangulatos, parkosított kert jakuzzival, kerti sütögetővel, valamint egy fedett, 50 m2-es térkövezett terület, ami jelenleg dupla kocsibeállóként funkcionál, de teraszként, szabadidős tevékenységre, pihenésre is kiválóan alkalmas. További extrák: 11 kW-os elektromos autótöltő, 3x32 amper fázis, elektromos kapu, szúnyogháló, redőny. Az ingatlan elhelyezkedésének és kialakításának köszönhetően tökéletesen alkalmas családoknak állandó lakhatásra vagy nyaralásra, de befektetésként is kiváló, ritka lehetőség. Tömegközlekedés, bevásárlási lehetőség, vendéglátóhelyek a közelben. Bővebb információért keressen telefonon! M320769 Hitel.hu - Hasonlítsa össze a bankok lakáshitel ajánlatait
Tetszett ez az eladó Siófoki újszerű állapotú 4 szobás ikerház? Hívd fel a hirdetőt most, és tudj meg mindent erről az eladó ikerházról! Ha gondolod nézelődj tovább az eladó ház Siófok oldal hirdetései között. Ennek az eladó háznak az ára 199000000 Ft és mivel az alapterülete 121 négyzetméter, ezért az átlagos négyzetméterára 1644628 HUF/m2.
Az eladó házak menüpontban további hirdetések között is böngészhetsz. Ha van kedved, akkor böngészhetsz a Zsitnyányi Ágnes összes hirdetése között, vagy akár a/az Siófok Fő utca 83 - OTP Ingatlanpont Iroda összes hirdetése között is.
További hirdetéseket találsz az eladó Balaton déli parti nyaralók között. Ha a teljes régió kínálata érdekel, nézd meg az eladó Balatoni nyaralók oldalt.

