Eladó újszerű állapotú ház - Siófok
- INGYENES HIRDETÉS FELADÁS
Ingatlan adatai
- Eladó vagy kiadó:Eladó
- Település:Siófok
- Kategória:Ház
- Alkategória:Ikerház
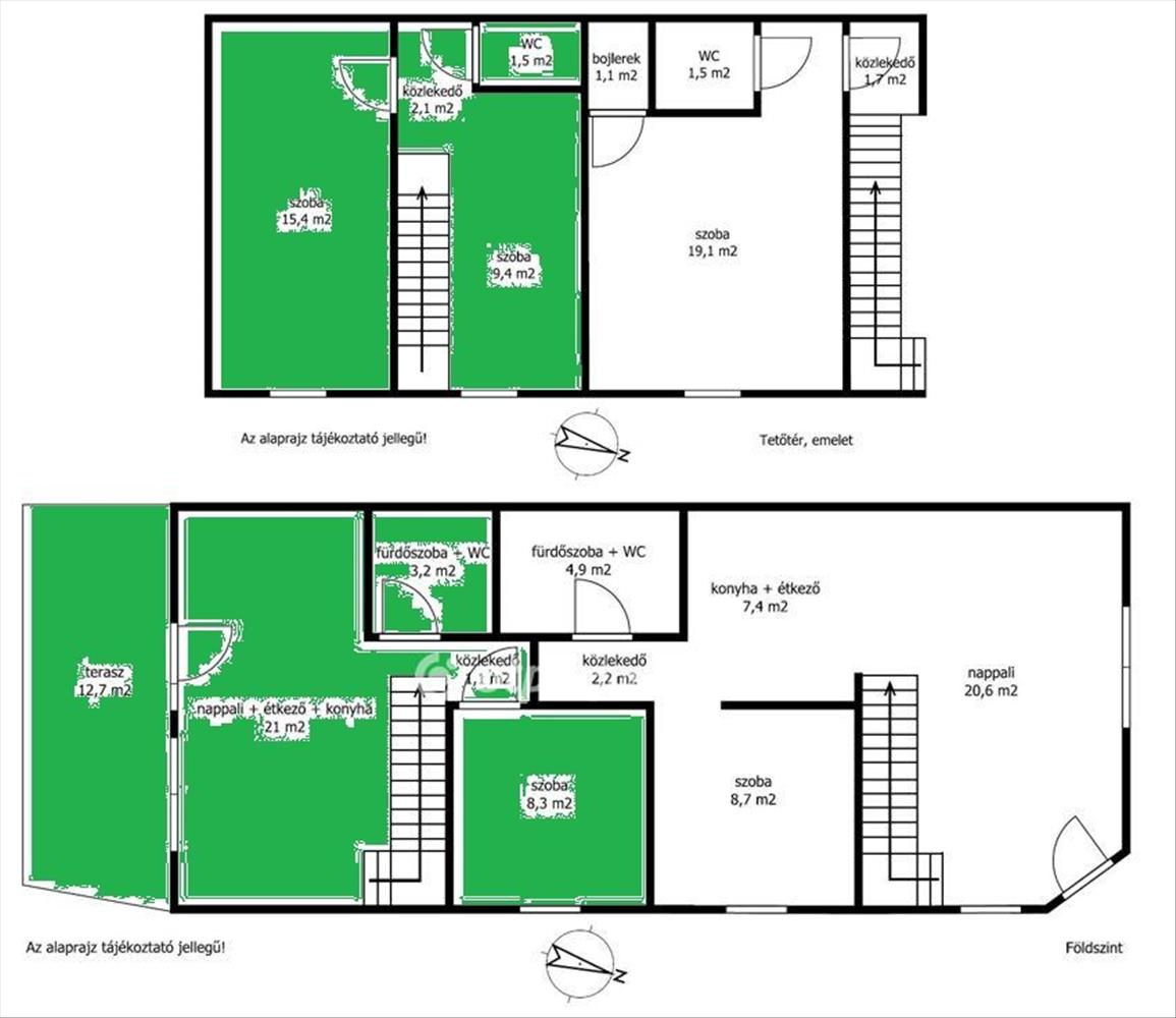
- Alapterület:68 m2
- Telekterület:375 m2
- Csere is:Nem
- Hirdető:Cég
- Élő videón megtekinthető:Nem
- Építés éve:1969
- Szobaszám:3 + 1 fél
- Állapot:Újszerű, kitűnő
- Hány szintes az ingatlan:2 szintes
- Tetőtér:nincs megadva
- Komfortosság:nincs megadva
- Pince:nincs megadva
- Parkolási lehetőség:Garázsban
- Fűtés:Elektromos
- Bútorozottság:nincs megadva
- Fényviszony:nincs megadva
- Tájolás:nincs megadva
- Kilátás:nincs megadva
- Internet:nincs megadva
- Klíma:nincs megadva
- Akadálymentesített:nincs megadva
- Energiatanúsítvány:nincs megadva
- Villany:nincs megadva
- Víz:nincs megadva
- Gáz:nincs megadva
- Csatorna:nincs megadva
- Kapcsolatfelvétel

Hitel ajánlatok
Ingatlan hirdetés leírása
Balaton Déli part, Siófok, 68 m2 ikerházrész eladó. Az önálló ...
Balaton Déli part, Siófok, 68 m2 ikerházrész eladó. Az önálló helyrajzi számú ingatlanban két apartman került kialakításra. a 4 éve teljeskörűen felújított, 62 m2-es, utcafronti lakóteret növeli egy hangulatos, 13 m2-es terasz, a jól megtervezett udvaron pedig füves, virágos kert, 50 m2-es térkövezett terület, valamint garázs és egyéb melléképület is helyet kapott, így minden biztosított a mindennapi élet teendőihez vagy a pihentető, feltöltő nyaraláshoz. Az ingatlan fűtéséről és hűtéséről távolról irányítható klímák gondoskodnak, továbbá minden szobában megoldott az elektromos fűtőpanel működtetése, a telekre bevezetett gáz pedig a hagyományos fűtési rendszer kialakítását is lehetővé teszi. a két szintes apartmanok igény szerint összenyithatók, így akár egy nagy család részére is ideális lehetőség. Az ingatlan elhelyezkedésének és kialakításának köszönhetően alkalmas akár többgenerációs családoknak is állandó lakhatásra vagy nyaralásra, de befektetésként, részben vagy egészben kiadásra is kiváló, ritka lehetőség. Óvoda, iskola, tömegközlekedés, bevásárlási lehetőség, egészségügyi intézmény, a Belváros, a Kikötő könnyen elérhető, a Szabadstrand pedig csak pár perc séta. Bővebb információért keressen telefonon! FIX 3% lakáshitelre megvehető
Tetszett ez az eladó Siófoki újszerű állapotú 3 egész és 1 fél szobás ikerház? Hívd fel a hirdetőt most, és tudj meg mindent erről az eladó ikerházról! Ha gondolod nézelődj tovább az eladó ház Siófok oldal hirdetései között. Ennek az eladó háznak az ára 85000000 Ft és mivel az alapterülete 68 négyzetméter, ezért az átlagos négyzetméterára 1250000 HUF/m2.
Az eladó házak menüpontban további hirdetések között is böngészhetsz. Ha van kedved, akkor böngészhetsz a Zsitnyányi Ágnes összes hirdetése között, vagy akár a/az Siófok Fő utca 83 - OTP Ingatlanpont Iroda összes hirdetése között is.
További hirdetéseket találsz az eladó Balaton déli parti nyaralók között. Ha a teljes régió kínálata érdekel, nézd meg az eladó Balatoni nyaralók oldalt.

