Eladó újszerű állapotú ház Siófok
| Kedvencbe | Megosztás | Árfigyelő |
| Kedvezményes lakáshitel ajánlatok | ||
| 207 000 000 HUF | ||
Ingatlan adatai
- Eladó vagy kiadó:Eladó
- Település:Siófok
- Kategória:Ház
- Alkategória:Ikerház
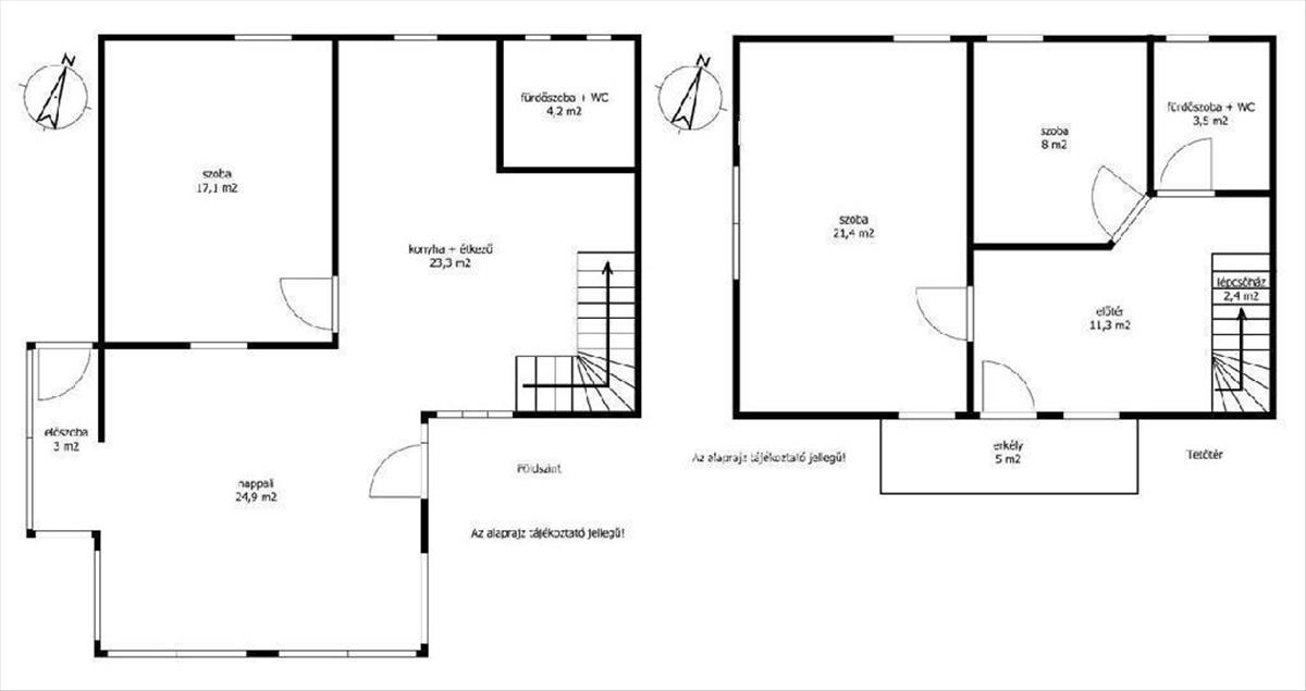
- Alapterület:121 m2
- Telekterület:380 m2
- Csere is:Nem
- Hirdető:Cég
- Élő videón megtekinthető:Nem
- Építés éve:1995
- Szobaszám:4
- Állapot:Újszerű, kitűnő
- Hány szintes az ingatlan:2 szintes
- Tetőtér:nincs megadva
- Komfortosság:nincs megadva
- Parkolási lehetőség:Udvaron
- Fűtés:Elektromos
- Bútorozottság:nincs megadva
- Fényviszony:Napfényes
- Tájolás:nincs megadva
- Kilátás:nincs megadva
- Internet:nincs megadva
- Akadálymentesített:nincs megadva
- Energiatanúsítvány:A++
- Villany:nincs megadva
- Víz:nincs megadva
- Gáz:nincs megadva
- Csatorna:nincs megadva
- Üzenetküldés
- Hívás

Vincze László György
Mondd meg a hirdetőnek, hogy a megveszLAK-on találtad a hirdetést.
Referencia szám: M320769

Hitel ajánlat
Ingatlan hirdetés leírása
Eladó Ház, Siófok, Eladó újszerű állapotú ház - Siófok
Balaton Déli part, Siófok, Balatonszéplak 122 m2 ikerház, 380 m2 telek eladó. a kivett lakóházként nyilvántartott ingatlan az Ezüstparton, a szabadstrandtól 400 méterre, 5 perc sétára található. a szigetelt, 3 rétegű nyílászárókkal ellátott, 2025-ben teljeskörűen felújított ház áramellátását napelem biztosítja. a ház fűtéséről az egész lakóteret melegen tartó cserépkályha gondoskodik, amit elektromos fűtőpanelek és egy tetőtéri klíma egészít ki szükség szerint. Az ingatlan értékét tovább növeli a hangulatos, parkosított kert jakuzzival, kerti sütögetővel, valamint egy fedett, 50 m2-es térkövezett terület, ami jelenleg dupla kocsibeállóként funkcionál, de teraszként, szabadidős tevékenységre, pihenésre is kiválóan alkalmas. További extrák: 11 kW-os elektromos autótöltő, 3x32 amper fázis, elektromos kapu, szúnyogháló, redőny. Az ingatlan elhelyezkedésének és kialakításának köszönhetően tökéletesen alkalmas családoknak állandó lakhatásra vagy nyaralásra, de befektetésként is kiváló, ritka lehetőség. Tömegközlekedés, bevásárlási lehetőség, vendéglátóhelyek a közelben. Bővebb információért keressen telefonon! M320769207000000 Ft
Referencia szám: m320769 Hitel.hu - Hasonlítsa össze a bankok lakáshitel ajánlatait

