- >>
- eladó ingatlanok
- >>
- eladó ház
- >>
- eladó ház Százhalombatta
- >>
Eladó befejezetlen ház - Százhalombatta
| | |||
| Kedvencnek jelölöm | Elküldöm emailben | Megosztás | Szavazás |
| FIX 3% lakáshitelre megvehető | |||
| 80 000 000 HUF | |||
Ingatlan adatai
- Eladó vagy kiadó:Eladó
- Település:Százhalombatta
- Kategória:Ház
- Alkategória:Ikerház
- Alapterület:91 m2
- Telekterület:400 m2
- Csere is:Nem
- Hirdető:Cég
- Élő videón megtekinthető:Nem
- Építés éve:2025
- Szobaszám:1 + 2 fél
- Állapot:Befejezetlen
- Hány szintes az ingatlan:Földszintes
- Tetőtér:nincs megadva
- Komfortosság:nincs megadva
- Parkolási lehetőség:Beállóban
- Fűtés:nincs megadva
- Bútorozottság:nincs megadva
- Fényviszony:nincs megadva
- Tájolás:nincs megadva
- Kilátás:nincs megadva
- Internet:nincs megadva
- Akadálymentesített:nincs megadva
- Energiatanúsítvány:nincs megadva
- Villany:Van
- Víz:Van
- Gáz:nincs megadva
- Csatorna:Van
- Üzenetküldés
- Hívás


Hitel ajánlat
Ingatlan hirdetés leírása
Százhalombatta családi házas övezetében, az Óvárosban kínálunk...
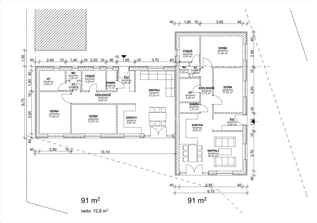
Százhalombatta családi házas övezetében, az Óvárosban kínálunk megvételre két lakóegységből álló ikerházat.A kivitelező cég számos százhalombattai referenciamunkával rendelkezik, aki több éve megbízhatóan, pontos határidőkkel végzi a kivitelezést ügyfelei legnagyobb megelégedésére.
Az építkezés folyamatosan halad, várható befejezés 2026 ősz.
Az ikerházi lakások társasházi alapító okirattal, külön helyrajzi számmal (albetétesítve) és külön mérőórákkal, saját kertrésszel, megosztással kerülnek átadásra a leendő tulajdonosok részére.
1. Lakás: bruttó 91 nm, nettó 72, 8 nm + 6 nm terasz
telekterület: 400 nm
szobaszám: 1+2
KÜLÖNÁLLÓ, saját garázs a telekrészen belül!
2. Lakás: elkelt! Bruttó 91 nm, nettó 72, 8 nm + 6 nm terasz
telekterület: 400 nm
szobaszám: 1+2
Az ár a befejezett, kulcsrakész állapotra vonatkozik!
Főbb műszaki paraméterek:
- alap: vasalt, szigetelt beton sávalap
- tartófalazat: 30-as Porotherm XTherm okostégla
- válaszfalak: 10-es Ytong
- szigetelés: homlokzat 15 cm dryvit, lábazat 10-cm xps
- födém: a szerkezetű, 25 cm fújt cellulóz szigeteléssel
- fűtés: Panasonic hőszivattyú (5kW), padlófűtés hőleadással
- melegvíz: hőszivattyúra kötött 200 literes hmv tartály
- nyílászárók: fehér, három rétegű hő-és hangszigetelt, beépített redőnytokkal
A belső ajtók 50. 000 Ft/db, a hideg-és meleg burkolatok 4. 000 Ft/nm áron a vevő által szabadon választhatóak.
Az érdeklődők részére teljes műszaki és fotódokumentáció rendelkezésre áll, valamint már elkészült referencia házak is megtekinthetőek.
OtthonSart, CSOK Plusz és piaci hitel igénybe vehető, melyben ingatlanirodánk bankfüggetlen hitelcentruma, díjmentesen áll érdeklődőink rendelkezésére.
- Egyedi, bankfiókban nem elérhető kamat- és díjkedvezmények
- Hitelképesség vizsgálat
- Idő, energia és pénz megtakarítás
- Teljes hivatali ügyintézés
Ne maradjon le róla!
További információkért és megtekintéssel kapcsolatban várom jelentkezését a hét minden napján.
A hirdetésben szereplő adatok tájékoztató jellegűek, nem minősülnek ajánlattételnek. FIX 3% lakáshitelre megvehető

