Eladó jó állapotú ház - Szikszó
- INGYENES HIRDETÉS FELADÁS
Ingatlan adatai
- Feladva:61 napja a megveszLAK-on
- Eladó vagy kiadó:Eladó
- Település:Szikszó
- Kategória:Ház
- Alkategória:Ikerház
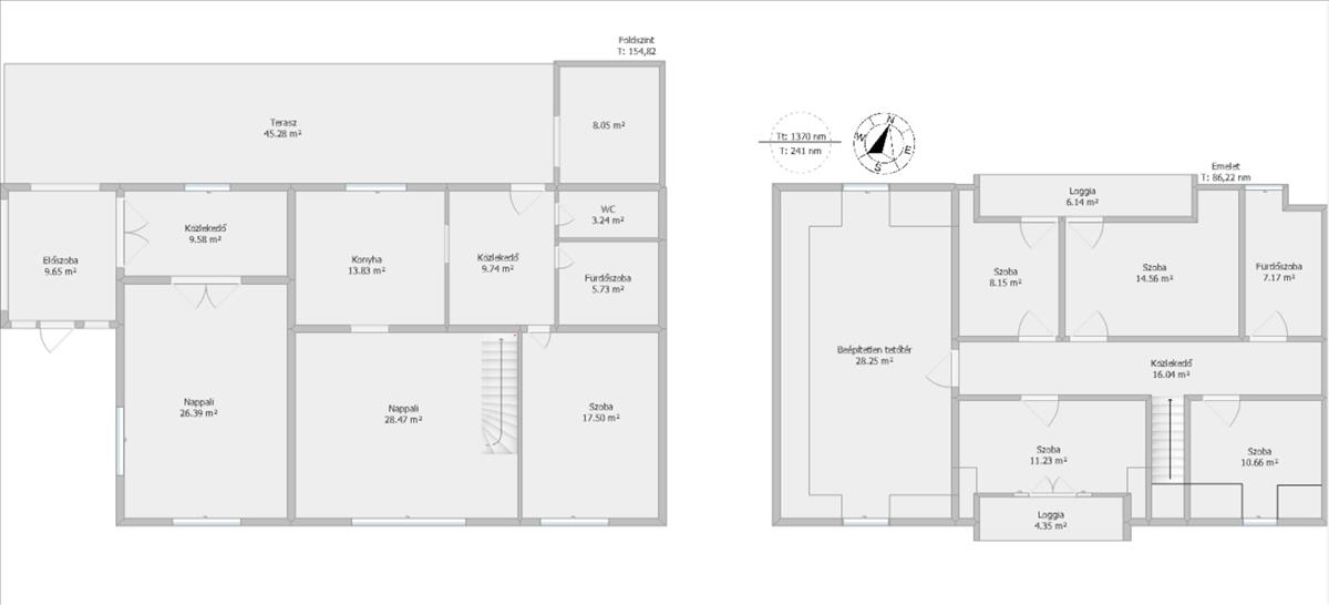
- Alapterület:240 m2
- Telekterület:1370 m2
- Csere is:Nem
- Hirdető:Cég
- Élő videón megtekinthető:Nem
- Építés éve:1975
- Szobaszám:4 + 1 fél
- Állapot:Jó állapotú
- Hány szintes az ingatlan:2 szintes
- Tetőtér:nincs megadva
- Komfortosság:Összkomfortos
- Pince:nincs megadva
- Parkolási lehetőség:Udvaron
- Fűtés:Gáz + alternatív
- Bútorozottság:nincs megadva
- Fényviszony:nincs megadva
- Tájolás:nincs megadva
- Kilátás:nincs megadva
- Internet:nincs megadva
- Klíma:nincs megadva
- Akadálymentesített:nincs megadva
- Energiatanúsítvány:nincs megadva
- Villany:nincs megadva
- Víz:nincs megadva
- Gáz:nincs megadva
- Csatorna:nincs megadva
- Kapcsolatfelvétel
Haluska Szilveszter
+36-(70)-732-7461
Mondd meg a hirdetőnek, hogy a megveszLAK-on találtad a hirdetést.
Referencia szám: 1
Hitel ajánlatok
Ingatlan hirdetés leírása
Eladó ikerház Szikszó
Eladó Szikszón egy jó állapotú, 2 szintes, 240 nm -es, 5 szobás, családi ház. a tárgyi ingatlan réz villanyhálózattal szerelt, fűtését gázkazán biztosítja. Az alsó szint terméskőből, az emelet szilikátból épült. Az 1370-nm -es telken a tégla építésű, vízzel ellátott garázson és filagórián kívűl értékes gyümölcsfák is találhatóak. a környék biztonságos, jó közlekedési adottságokkal rendelkezik.
Helységlista:
5 szoba, 2 nappali, konyha, 2 fürdőszoba, terasz, közlekedő, garázs
Ajánlott:
családok részére, akik tágas, jól kialakított házat keresnek, nagy kerttel és nyugodt, központközeli környezetben.
Hitel, Babaváró ügyintézésében segítünk. FIX 3% lakáshitelre megvehető
Tetszett ez az eladó Szikszói jó állapotú 4 egész és 1 fél szobás ikerház? Hívd fel a hirdetőt most, és tudj meg mindent erről az eladó ikerházról! Ha gondolod nézelődj tovább az eladó ház Szikszó oldal hirdetései között. Ennek az eladó háznak az ára 46900000 Ft és mivel az alapterülete 240 négyzetméter, ezért az átlagos négyzetméterára 195417 HUF/m2.
Az eladó házak menüpontban további hirdetések között is böngészhetsz. Ha van kedved, akkor böngészhetsz a Haluska Szilveszter összes hirdetése között, vagy akár a/az TopLine Ingatlan összes hirdetése között is.

