Eladó átlagos állapotú ház - Tab
- INGYENES HIRDETÉS FELADÁS
Ingatlan adatai
- Eladó vagy kiadó:Eladó
- Település:Tab
- Kategória:Ház
- Alkategória:Ikerház
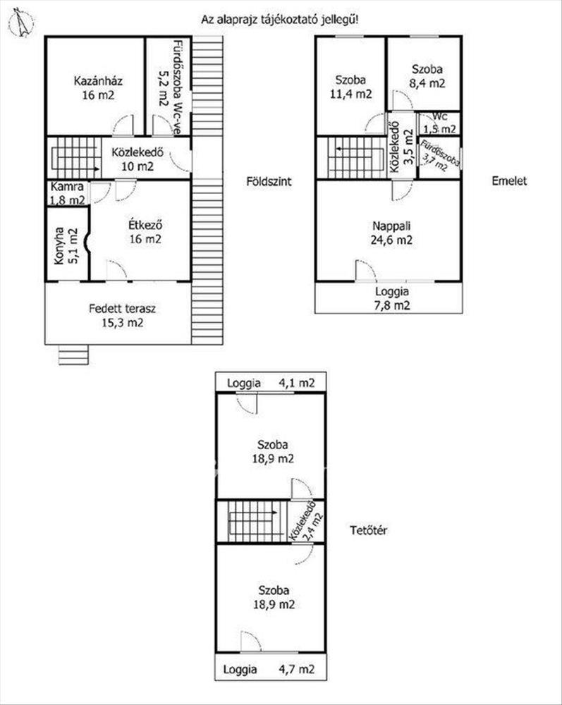
- Alapterület:163 m2
- Telekterület:783 m2
- Csere is:Nem
- Hirdető:Cég
- Élő videón megtekinthető:Nem
- Építés éve:1986
- Szobaszám:5
- Állapot:Átlagos állapotú
- Hány szintes az ingatlan:2 szintes
- Tetőtér:nincs megadva
- Komfortosság:nincs megadva
- Pince:nincs megadva
- Parkolási lehetőség:Teremgarázsban
- Fűtés:Gáz (cirko)
- Bútorozottság:nincs megadva
- Fényviszony:Jó
- Tájolás:nincs megadva
- Kilátás:nincs megadva
- Internet:nincs megadva
- Klíma:nincs megadva
- Akadálymentesített:nincs megadva
- Energiatanúsítvány:nincs megadva
- Villany:nincs megadva
- Víz:nincs megadva
- Gáz:nincs megadva
- Csatorna:nincs megadva
- Kapcsolatfelvétel

Németh Andrásné
+36-(30)-989-6383
Mondd meg a hirdetőnek, hogy a megveszLAK-on találtad a hirdetést.
Referencia szám: M325014
Hitel ajánlatok
Ingatlan hirdetés leírása
Eladó Ház, Tab, Eladó átlagos állapotú ház - Tab
Tab csendes, nyugodt részén eladó egy 163 m2-es, háromszintes ikerház fél, 783 m2-es telken, gyönyörű Hőlyeg-hegy panorámával. Ez az otthon tökéletes választás mindazoknak, akik tágas tereket, nyugodt környezetet és különleges kilátást keresnek. a ház főbb jellemzői: 3 szint, 5 szoba, tágas nappali, étkező, konyha, 2 fürdőszoba, minden szinten loggia. Fűtése jelenleg kondenzációs gázkazánról, de! Akár vegyestüzelésű kazánról is, radiátor hőleadókkal biztosított. Az részben térkövezett udvaron, és egy szgk. Számára fenntartott garázs is található. a loggiákról lenyűgöző panoráma tárul elénk, ahol esténként a gyönyörű naplemente teszi igazán különlegessé a mindennapokat. a földszinti fedett terasz ideális helyszíne lehet pihenésnek vagy családi sütögetős, főzős programokhoz. Kiváló választás nagycsaládosoknak, vagy akár több generáció számára! Ha egy nyugodt, természetközeli, mégis tágas otthont keres, ezt az ingatlant érdemes megnézni!
Irodánk az ingatlanközvetítés mellett pénzügyi finanszírozás és biztosítási igényekben is rendelkezésre áll. További információkért kérem keressen telefonon a hét bármely napján!
M325014 FIX 3% lakáshitelre megvehető
Tetszett ez az eladó Tabi átlagos állapotú 5 szobás ikerház? Hívd fel a hirdetőt most, és tudj meg mindent erről az eladó ikerházról! Ha gondolod nézelődj tovább az eladó ház Tab oldal hirdetései között. Ennek az eladó háznak az ára 69900000 Ft és mivel az alapterülete 163 négyzetméter, ezért az átlagos négyzetméterára 428834 HUF/m2.
Az eladó házak menüpontban további hirdetések között is böngészhetsz. Ha van kedved, akkor böngészhetsz a Németh Andrásné összes hirdetése között, vagy akár a/az OTPip Siófok Sió utca 10 - OTP Ingatlanpont Iroda összes hirdetése között is.

