- >>
- eladó ingatlanok
- >>
- eladó ház
- >>
- eladó ház Tahitótfalu
- >>
Eladó új építésű ház - Tahitótfalu
| | |||
| Kedvencnek jelölöm | Elküldöm emailben | Megosztás | Szavazás |
| FIX 3% lakáshitelre megvehető | |||
| 89 900 000 HUF | |||
Ingatlan adatai
- Eladó vagy kiadó:Eladó
- Település:Tahitótfalu
- Kategória:Ház
- Alkategória:Ikerház
- Alapterület:110 m2
- Telekterület:480 m2
- Csere is:Nem
- Hirdető:Cég
- Élő videón megtekinthető:Nem
- Építés éve:2024
- Szobaszám:3
- Állapot:Új építésű
- Hány szintes az ingatlan:nincs megadva
- Tetőtér:nincs megadva
- Komfortosság:nincs megadva
- Parkolási lehetőség:Beállóban
- Fűtés:Egyéb
- Bútorozottság:nincs megadva
- Fényviszony:nincs megadva
- Tájolás:nincs megadva
- Kilátás:Panorámás
- Internet:nincs megadva
- Klíma:Van
- Akadálymentesített:nincs megadva
- Energiatanúsítvány:nincs megadva
- Villany:Van
- Víz:Van
- Gáz:Van
- Csatorna:Van
- Üzenetküldés
- Hívás


Ingatlan hirdetés leírása
ELADÓ IKERHÁZ TAHITÓTFALU ÚJÉPÍTÉSŰ 1.
CSEND-BÉKE-NYUGALOM-TERMÉSZETMÁR költözhet is!
ELADÓ újépítésű ikerház TAHITÓTFALU
Az eladó újépítésű ikerház tahitótfalu, bruttó 110 m2, 480 m2-es saját, privát telek területtel, nappali+2 szoba (akár 3 szobássá is alakítható) duplakomfortos, 2 db felszíni kocsibeállóval, 25 m2-es intim terasszal épül, csendes, természetközeli helyen. Óvoda, bölcsőde, iskola, bevásárlási lehetőség a közelben.
Az eladó újépítésű ikerház Tahitótfalu alaprajzi elrendezése kiváló:
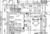
FÖLDSZINT: előtér, gardrób, amerikai konyhás nappali, vendég wc, tároló és háztartási helyiség
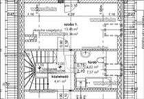
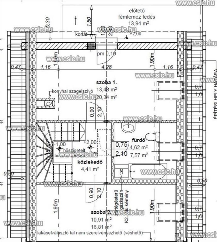
EMELET: 2 tágas szoba, kádas fürdőszoba, közlekedő
Az eladó újépítésű ikerház Tahitótfalu műszaki és egyéb jellemzői:
• belső kétszintes, napfényes, tágas
• 2 felszíni kocsibeálló
• 25 m2 saját, privát burkolt terasz, kertkapcsolattal, saját intim kerttel
• tégla építésű +15 cm grafitos hőszigetelés
• 7 kamrás, 3 rétegű új ablakok, bukó, nyíló, szellőztető funkcióval, biztonsági bejárati ajtó
• összközműves
• duplakomfortos
• gázcirkó fűtés, padlófűtéssel
• riasztó előkészítés
• minden szobában klíma előkészítés
MÁR költözhet IS!
Amennyiben felkeltette érdeklődését, várom hívását. . . .
Ha eladandó ingatlanja van, annak értékbecslésében ingyenes tanácsadást biztosítok, valamint ingyenes teljeskörű hitelügyintézéssel, kedvező ügyvédi munkadíjakkal állunk rendelkezésére.
Hasonló ingatlanokért látogasson el weboldalunkra! FIX 3% lakáshitelre megvehető


