Eladó új építésű ház Taksony
| Kedvencbe | Megosztás | Árfigyelő |
| FIX 3% lakáshitelre megvehető | ||
| 109 900 000 HUF | ||
Ingatlan adatai
- Eladó vagy kiadó:Eladó
- Település:Taksony
- Kategória:Ház
- Alkategória:Ikerház
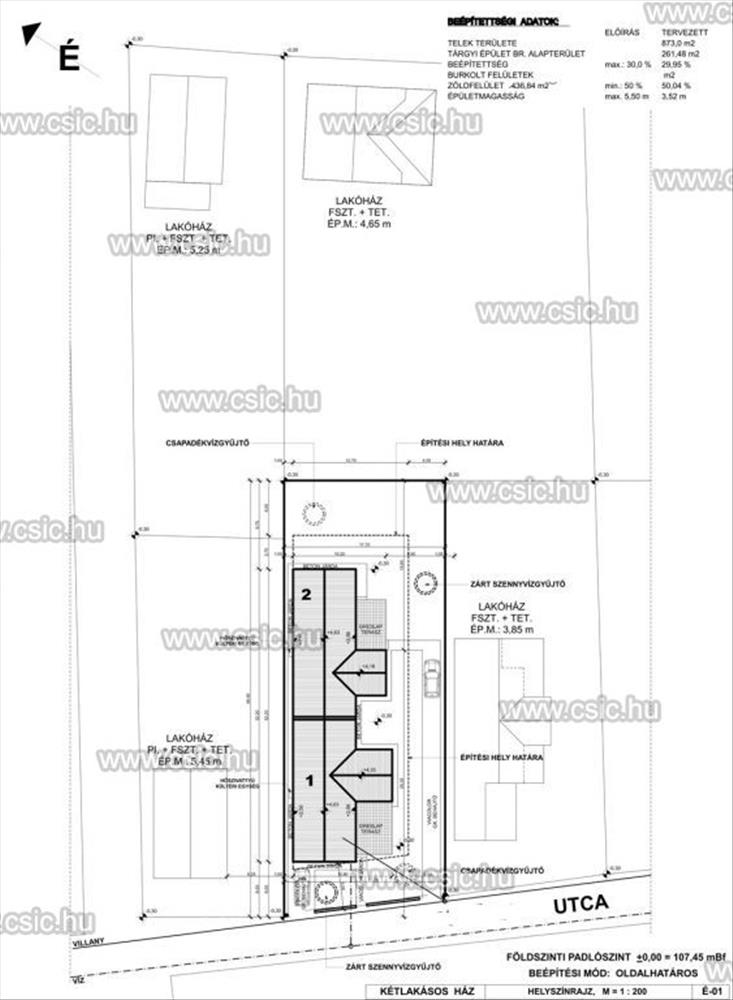
- Alapterület:102 m2
- Telekterület:320 m2
- Csere is:Nem
- Hirdető:Cég
- Élő videón megtekinthető:Nem
- Szobaszám:4
- Állapot:Új építésű
- Hány szintes az ingatlan:nincs megadva
- Tetőtér:nincs megadva
- Komfortosság:nincs megadva
- Parkolási lehetőség:Beállóban
- Fűtés:nincs megadva
- Bútorozottság:nincs megadva
- Fényviszony:nincs megadva
- Tájolás:nincs megadva
- Kilátás:nincs megadva
- Internet:nincs megadva
- Akadálymentesített:nincs megadva
- Energiatanúsítvány:nincs megadva
- Villany:Van
- Víz:Van
- Gáz:Van
- Csatorna:Van
- Üzenetküldés
- Hívás


Hitel ajánlat
Ingatlan hirdetés leírása
ÚJ ÉPÍTÉSŰ IKERHÁZ ELADÓ TAKSONYBAN 102 NM A
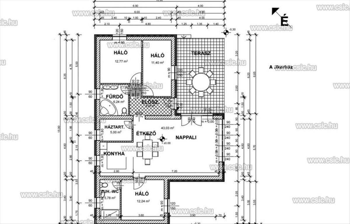
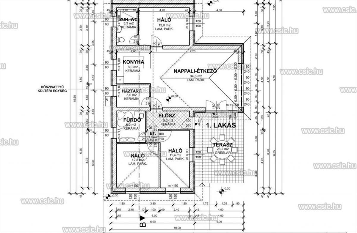
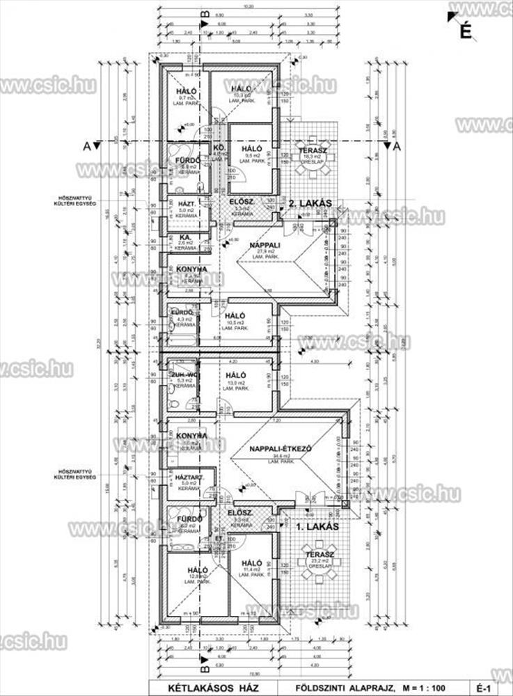
Új építésű ikerház eladó TAKSONYBANTaksony szívében, átmenő forgalommentes, mégis főútvonalhoz közel eső utcában megvételre kínáljuk ezt a 102 m2-es A. Ikerházat, amely egy 873 m2-es összközműves telken épül.
Az A. Ikerház nappali + 3 hálószobás és a saját, önálló kert része 320 m2.
Jellemzői:
- Alapozás : vasbeton sávalap
- Falszerkezet : porotherm n+f 30 cm vastag Porotherm, ill. Leier téglából, az ikerházak közötti dupla falazattal, 15 cm dryvit szigeteléssel
- Födém : fafödém épül a koszorúhoz rögzített fa gerendákkal.
- Tetőfedés : betoncseréppel készül 3, 0 x 5, 0 cm lécezésre, tetőfóliával.
- Tetőszerkezet : hagyományos fa fedélszerkezet szarufákkal, talpszelemenekkel, taréjszelemennel,
- Válaszfalak: 10 cm-es kerámia válaszfalak
- a beltéri helyiségek elrendezése alakítható
- emelet feletti födémben 25 cm-es Knauf Classic hőszigetelő anyag
- Bejárati ajtó : műanyag több ponton záródó, biztonsági ajtó
- Belső ajtók : Utólagosan felszerelendő fa belső ajtók.
- Ablakok, teraszajtók: műanyag nyílászárók háromrétegű hőszigetelő üvegezéssel (u=0, 7 W/m2K) - Fűtés és melegvíz ellátás: hőszivattyú, padlófűtéses hőleadással.
- Utca fronti kerítés megépítésre kerül.
- Új gk-bejáró kapu készül, elektromos motor nyitási előkészítéssel.
- Az utca a-2-es épületig Murvás út lesz kialakítva, 3-3, 5m
Építkezés kezdése: 2026. Eleje
Átadása: 2026. Nyár vége
A vállalkozó 25 éves szakmai tapasztalattal és sok referencia munkával rendelkezik.
Illetékkedvezmény valamint az államilag támogatott hitelek, köztük az Otthon Start Program is igénybevehetőek.
A környék csendes, jól megközelíthető, tömegközlekedés pár perc sétányira.
Amennyiben a családi ingatlan által ajánlott ikerház vagy bármely a kínálatunkban található családi ház és ikerház felkeltette érdeklődését, hívjon bizalommal. Hétvégén is dolgozom!
A családi ingatlan leendő ügyfeleinek, teljesen díjmentes hitel ügyintézést, valamint kedvező díjazású ügyvédi tanácsadást tud nyújtani partnerein keresztül FIX 3% lakáshitelre megvehető

