Eladó új építésű ház - Taksony
- INGYENES HIRDETÉS FELADÁS
![]() |
Ingatlan adatai
- Eladó vagy kiadó:Eladó
- Település:Taksony
- Kategória:Ház
- Alkategória:Ikerház
- Alapterület:125 m2
- Telekterület:269 m2
- Csere is:Nem
- Hirdető:Cég
- Élő videón megtekinthető:Nem
- Építés éve:2026
- Szobaszám:5
- Állapot:Új építésű
- Hány szintes az ingatlan:Földszintes
- Tetőtér:nincs megadva
- Komfortosság:nincs megadva
- Pince:Nincs
- Parkolási lehetőség:Garázsban
- Fűtés:nincs megadva
- Bútorozottság:nincs megadva
- Fényviszony:nincs megadva
- Tájolás:nincs megadva
- Kilátás:nincs megadva
- Internet:Optikai
- Klíma:Van
- Akadálymentesített:nincs megadva
- Energiatanúsítvány:nincs megadva
- Villany:Van
- Víz:Van
- Gáz:nincs megadva
- Csatorna:Van
- Kapcsolatfelvétel
Aranyosi Tamás
+36-(70)-409-4182
Mondd meg a hirdetőnek, hogy a megveszLAK-on találtad a hirdetést.
Hitel ajánlatok
Ingatlan hirdetés leírása
Taksony központjában garázs kapcsolatos ikerházak hőszivattyús...
Eladó új-építésű, garázson keresztül kapcsolódó ikerházak hőszivattyús fűtésrendszerrel Taksony központjában!
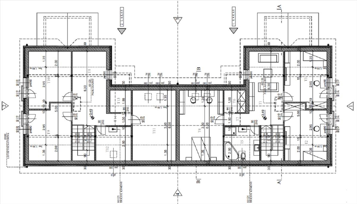
Mindegyik ingatlan 124, 5 m2-es (+ fedett terasz 10 m2), nappali + 4 hálós, 2db fürdőszobás, gardrób helyiség, garázs (+21 m2)
Földszint:
nappali 25, 2 m2
szoba 10, 8 m2
konyha 5, 76 m2
étkező 8, 64 m2
háztartási helyiség 8, 7 m2
WC 1, 8 m2
előtér 6, 42 m2
garázs 21 m2
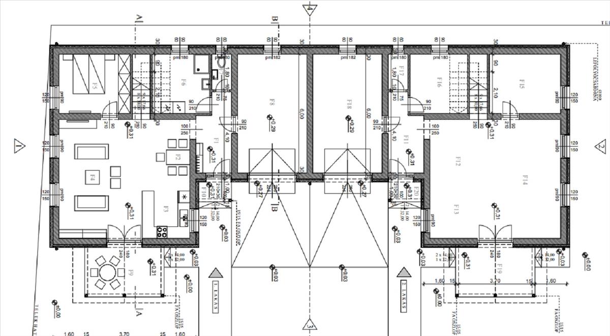
Emelet:
társalgó, előtér 14, 35 m2
szoba 11, 67 m2
szoba 11, 67 m2
szoba 12, 21 m2
fürdőszoba 4, 65 m2
gardrób
közlekedő 2, 1 m2
Műszaki tartalom:
körítő falazat 30-n+f Leier tégla, válaszfalak 10-es Porotherm tégla
homlokzati szigetelés 15cm eps hungarocell
hőszivattyúról működő padlófűtés (hűtésrendszer felár ellenében)
minden szobában klímakiállás
teljes közmű (víz, villany, csatorna)
öntött vasbeton monolit födém
betoncserép
épület körül járda, garázs előtt térkő
garázsajtó elektromos garázskapu
3-rétegű nyílászárók hő védőfóliával
50db elektromos kiállás
elektromos hálózat 3x32 Amper
meleg burkolat 5e Ft/m2, hideg burkolat 6e Ft/m2 (210cm magasságig a vizes helyiségekben)
szaniterek 450 000 Ft-ig (wc, csaptelepek, zuhanykabin, kád)
épített zuhany
rejtett redőnytok kialakítás (redőny felár ellenében)
riasztó előkészítés 7db kiállással Vevő igényei szerint elhelyezve
napelem alapszerelés felár ellenében
lehajtós padlásfeljáró
utcafronti kerítés betonalapon oszlopokkal, kovácsolt vas utánzat, telek elválasztó kerítés betonba ültetett zártszelvény, lemezkerítés beépítésre
kaputelefon alapszerelés
1db kerti csap
tereprendezés sitt és törmelék kitakarítása elegyengetve (kertépítés kérhető felár ellenében)
Telekhányadok telekmegosztási szerződéssel:
1-es lakás: 269 m2 telek, nettó lakótér 125 m2, nappali + 4 hálószoba, gardrób, terasz (+10 m2), garázs (+21 m2)
Ár: 114 900 000 Ft. (SZABAD)
2-es lakás: 493 m2 telek, nettó lakótér 125 m2, nappali + 4 hálószoba, gardrób, terasz (+10 m2), garázs (+21 m2)
Ár: 129 900 000 Ft. (SZABAD)
3-as lakás: 500 m2 telek, nettó lakótér 125 m2, nappali + 4 hálószoba, gardrób, terasz (+10 m2), garázs (+21 m2)
Ár: 129 900 000 Ft. (SZABAD)
4-es lakás: 555 m2 telek, nettó lakótér 125 m2, nappali + 4 hálószoba, gardrób, terasz (+10 m2), garázs (+21 m2)
Ár: 134 900 000 Ft. (SZABAD)
Az ingatlanok 10%-al foglalhatók, legalább 30% önerő szükséges!
Az ingatlanok várható átadása 2026 nyár vége!
Várom hívását, ne maradjon le róla! FIX 3% lakáshitelre megvehető
Tetszett ez az eladó Taksonyi új építésű 5 szobás ikerház? Hívd fel a hirdetőt most, és tudj meg mindent erről az eladó ikerházról! Ha gondolod nézelődj tovább az eladó ház Taksony oldal hirdetései között. Ennek az eladó háznak az ára 114900000 Ft és mivel az alapterülete 125 négyzetméter, ezért az átlagos négyzetméterára 919200 HUF/m2.
Az eladó házak menüpontban további hirdetések között is böngészhetsz. Ha van kedved, akkor böngészhetsz a Aranyosi Tamás összes hirdetése között, vagy akár a/az Ingatlancorner Kft. összes hirdetése között is.

