Eladó új építésű ház - Tápiószecső (44744134)
ELADÓ INGATLANOK
KIADÓ INGATLANOK
CSERE INGATLANOK
KÜLFÖLDI INGATLANOK
RÉSZLETES KERESÉS
INGATLAN HÍREK
HIRDETÉS FELADÁS
BELÉPÉS
REGISZTRÁCIÓ
hirdetés 1. fotó
hirdetés 2. fotóhirdetés 3. fotó
hirdetés 4. fotóhirdetés 5. fotó
hirdetés 6. fotó
+ 9 fotó
hirdetés 7. fotó
+ 6 fotó
hirdetés 7. fotóhirdetés 8. fotóhirdetés 9. fotóhirdetés 10. fotóhirdetés 11. fotóhirdetés 12. fotó

Ingatlan adatai

  • Eladó vagy kiadó:Eladó
  • Település:Tápiószecső
  • Kategória:Ház
  • Alkategória:Ikerház
  • Alapterület:95 m2
  • Telekterület:1900 m2
  • Csere is:Nem
  • Hirdető:Cég
  • Élő videón megtekinthető:Nem
  • Építés éve:2026
  • Szobaszám:4
  • Állapot:Új építésű
  • Hány szintes az ingatlan:Földszintes
  • Tetőtér:nincs megadva
  • Komfortosság:nincs megadva
  • Pince:nincs megadva
  • Parkolási lehetőség:nincs megadva
  • Fűtés:Hőszivattyús
  • Bútorozottság:nincs megadva
  • Fényviszony:Napfényes
  • Tájolás:DK
  • Kilátás:nincs megadva
  • Internet:nincs megadva
  • Klíma:nincs megadva
  • Akadálymentesített:nincs megadva
  • Energiatanúsítvány:nincs megadva
  • Villany:nincs megadva
  • Víz:nincs megadva
  • Gáz:nincs megadva
  • Csatorna:nincs megadva
  • Kapcsolatfelvétel
Aczél Adrienn
Aczél Adrienn
+36-(20)-488-1084
Mondd meg a hirdetőnek, hogy a megveszLAK-on találtad a hirdetést.
Referencia szám: HZ041560
Érdekel kedvezményes lakáshitel ajánlat is
Az ASZF-et és az Adatkezelési tájékoztatót elfogadom

Hitel ajánlatok

 

Ingatlan hirdetés leírása

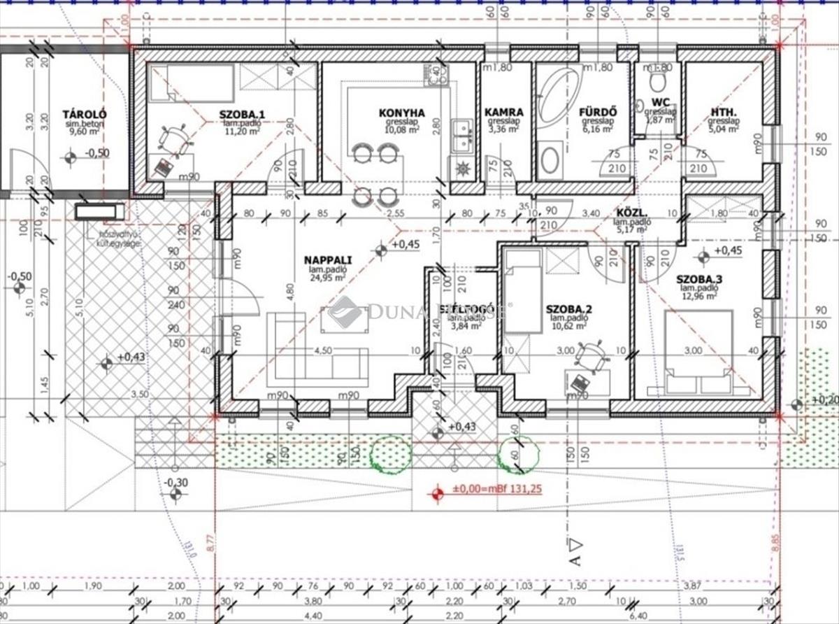
Eladó ház, Tápiószecső


Tápiószecsőn új építésű ikerház csak a tárolónál ér ÖSSZE!

VASÚTÁLLOMÁS közelében saját 640 m² TELEKKEL!

Tápiószecső központi részén, kiváló elhelyezkedéssel kínálok megvételre egy modern kialakítású, új építésű ikerházfelet, amely csak a tárolónál kapcsolódik, így szinte önálló családi ház érzetét nyújtja!

Utcafronti elhelyezkedés
Átgondolt alaprajz
Energiatakarékos műszaki tartalom
Ideális otthon családok számára

Főbb adatok

95, 25 m² hasznos fűthető alapterület

640 m² saját használatú telek

Világos, élhető terek

Praktikus elrendezés

Helyiségek

3 kényelmes méretű hálószoba

35 m²-es amerikai konyhás nappali a családi élet központja

Külön fürdőszoba és külön WC

Praktikus háztartási helyiség

Saját tároló

Nagy, jól használható kert

Modern, energiatakarékos műszaki tartalom

Hőszivattyús fűtési rendszer alacsony rezsiköltség

P30 n+f tégla falazat

10 cm homlokzati szigetelés

25 cm födémszigetelés

6 légkamrás, 3 rétegű thermo nyílászárók

Antracit tetőcserép

Elektromos kapu előkészítés

Személyre szabható belső kialakítás

A burkolatok és beltéri ajtók választhatók a műszaki tartalom részeként:

Hidegburkolat: 3. 000 Ft/m²

Melegburkolat: 3. 000 Ft/m²

Beltéri ajtók: 30. 000 Ft/db

Fürdőkád: 50. 000 Ft

Csaptelepek: 15. 000 Ft/db

Egyedi igények is megvalósíthatók a kivitelezővel történő egyeztetés alapján.

Extra bizalom

Referencia munka megtekinthető Sülysápon komoly érdeklődés esetén.

Hívjon bizalommal!
Teljes körű ügyintézés az első megtekintéstől a birtokbaadásig.
Bankfüggetlen hitelügyintéző partnerünk díjmentesen segít a finanszírozásban is.
Aczél Adrienn, Tel. : +36/20 488 1084 E-mail: aczel. Adrienn@dh. Hu

A Duna House teljes kínálatával kapcsolatban forduljon hozzám bizalommal.
Hitelügyintézés a legjobb feltételekkel és a leggyorsabban.
Eladás és vétel teljes körű ügyintézése, ingyenes tanácsadás, értékbecslés, megbízható ügyvédi háttér biztosítása.

Nézze meg facebook értékesítői oldalamat, ahol az új megbízásainkat láthatja és hasznos tippeket olvashat.
Https://www. Facebook. Com/misianadrienn

Referencia szám: hz041560 FIX 3% lakáshitelre megvehető
 
 

Hasonló ingatlan hirdetések

 
 
© megveszLAK.hu - Az egyszerűen jó ingatlan hirdetési oldal