- >>
- eladó ingatlanok
- >>
- eladó ház
- >>
- eladó ház Tápiószecső
- >>
Eladó új építésű ház - Tápiószecső
| | |||
| Kedvencnek jelölöm | Elküldöm emailben | Megosztás | Szavazás |
| FIX 3% lakáshitelre megvehető | |||
| 69 900 000 HUF | |||
Ingatlan adatai
- Eladó vagy kiadó:Eladó
- Település:Tápiószecső
- Kategória:Ház
- Alkategória:Ikerház
- Alapterület:95 m2
- Telekterület:1550000 m2
- Csere is:Nem
- Hirdető:Cég
- Élő videón megtekinthető:Nem
- Építés éve:2025
- Szobaszám:4
- Állapot:Új építésű
- Hány szintes az ingatlan:Földszintes
- Tetőtér:nincs megadva
- Komfortosság:nincs megadva
- Parkolási lehetőség:Beállóban
- Fűtés:nincs megadva
- Bútorozottság:nincs megadva
- Fényviszony:nincs megadva
- Tájolás:nincs megadva
- Kilátás:nincs megadva
- Internet:nincs megadva
- Akadálymentesített:nincs megadva
- Energiatanúsítvány:nincs megadva
- Villany:Telken belül
- Víz:Telken belül
- Gáz:Utcában
- Csatorna:Telken belül
- Üzenetküldés
- Hívás


Hitel ajánlat
Ingatlan hirdetés leírása
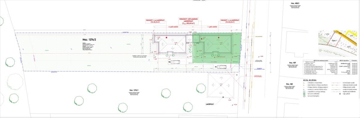
Új építésű ikerházak eladók Tápiószecsőn!
Tápiószecsőn, a Dóz...
Új építésű ikerházak eladók Tápiószecsőn! Tápiószecsőn, a Dózsa György út 49/a szám alatt, 1900 m²-es telken két külön bejáratú, új építésű ikerházfél kerül értékesítésre.
Utcafronti lakás: 350 m²-es telekkel – 59. 900. 000 Ft elkelt
Hátsó lakás: 1550 m²-es telekkel – 69. 900. 000 Ft
A tartószerkezeti falak Porotherm p30n+f téglából, betonkoszorúval, fa födémes tetőszerkezettel készülnek. a lábazat 10 cm polisztirol lépésálló, a homlokzatok 15cm-es eps, a vízszintes födém 25 cm ásványgyapot szigeteléssel lesz ellátva.
Három rétegű üvegekkel szerelt, hat légkamrás műanyag thermo nyílászárók kerülnek beépítésre.
A minimális energiaigényt a megfelelő szigetelésen kívül a megújuló energiát használó gépészet is biztosítja. a fűtést levegő-víz hőszivattyús rendszer fogja végezni.
Burkolatok és felszereltség (alapárban választható):
-Hidegburkolat: 3. 000 Ft/m²
-Melegburkolat: 3. 000 Ft/m²
-Beltéri ajtók: 30. 000 Ft/db
-Fürdőkád: 40. 000 Ft
-Csaptelepek: 15. 000 Ft/db
A megadott értékhatáron túli választás esetén a különbözet fizetendő.
Referenciák:
A kivitelező korábban Sülysápon is épített hasonló ingatlanokat, melyeket komoly érdeklődés esetén szívesen bemutatunk.
Tervezett átadás: 2026. Első negyedév
A közelben megtalálható:
-Élelmiszer bolt 500m
-Vasútállomás 600m
-Általános Iskola 800m
-Orvosi rendelő, gyógyszertár 1000m
Érdeklődő ügyfeleinknek a tervdokumetációt és a műszaki tartalmat készséggel rendelkezésre bocsájtjuk.
INGYENES hitel tanácsadás, CSOK Plusz ügyintézés!
BANKFÜGGETLEN hitelcentrumunk az összes elérhető bank és hitelintézet ajánlatát versenyezteti az Ön kedvéért, ráadásul DÍJMENTESEN.
- Egyedi, bankfiókban nem elérhető kamat- és díjkedvezmények
- Hitelképesség vizsgálat
- Idő, energia és pénz megtakarítás
- Teljes hivatali ügyintézés
Amennyiben hirdetésem felkeltette az érdeklődését vagy egyéb információra van szüksége hívjon bizalommal! FIX 3% lakáshitelre megvehető

