Eladó új építésű ház - Tápiószecső
- INGYENES HIRDETÉS FELADÁS
Ingatlan adatai
- Eladó vagy kiadó:Eladó
- Település:Tápiószecső
- Kategória:Ház
- Alkategória:Ikerház
- Alapterület:95 m2
- Telekterület:1550 m2
- Csere is:Nem
- Hirdető:Cég
- Élő videón megtekinthető:Nem
- Építés éve:2025
- Szobaszám:4
- Állapot:Új építésű
- Hány szintes az ingatlan:Földszintes
- Tetőtér:nincs megadva
- Komfortosság:nincs megadva
- Pince:nincs megadva
- Parkolási lehetőség:Beállóban
- Fűtés:nincs megadva
- Bútorozottság:nincs megadva
- Fényviszony:nincs megadva
- Tájolás:nincs megadva
- Kilátás:nincs megadva
- Internet:nincs megadva
- Klíma:nincs megadva
- Akadálymentesített:nincs megadva
- Energiatanúsítvány:nincs megadva
- Villany:Telken belül
- Víz:Telken belül
- Gáz:Utcában
- Csatorna:Telken belül
- Kapcsolatfelvétel

Horváth Péter
+36-(70)-606-2990
Mondd meg a hirdetőnek, hogy a megveszLAK-on találtad a hirdetést.
Hitel ajánlatok
Ingatlan hirdetés leírása
Új építésű ikerházak eladók Tápiószecsőn! Tápiószecsőn, a Dóz...
Új építésű ikerházak eladók Tápiószecsőn!
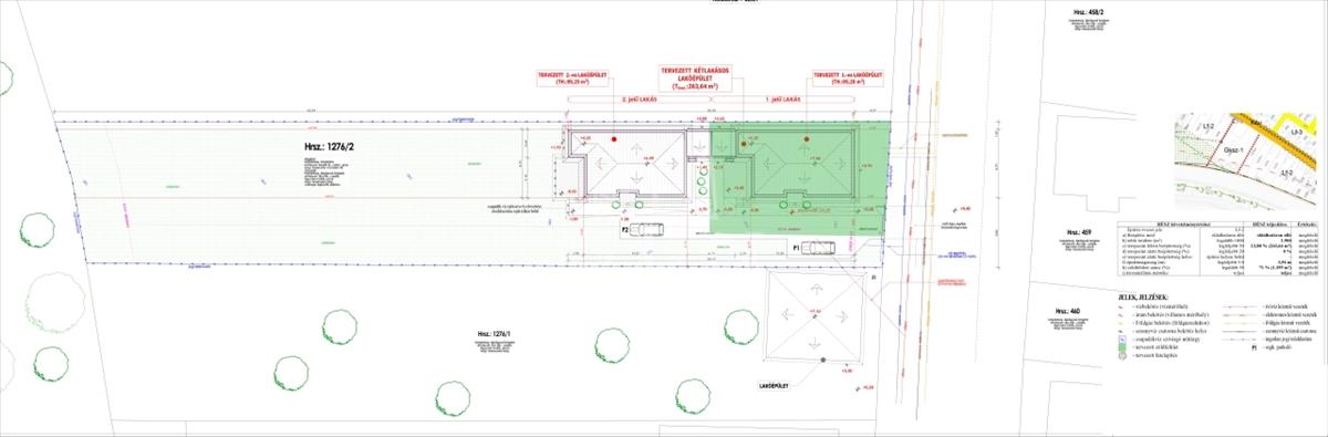
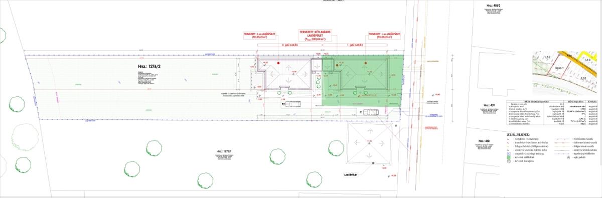
Tápiószecsőn, a Dózsa György út 49/a szám alatt, 1900 m²-es telken két külön bejáratú, új építésű ikerházfél kerül értékesítésre.
Utcafronti lakás: 350 m²-es telekkel – 59. 900. 000 Ft elkelt
Hátsó lakás: 1550 m²-es telekkel – 64. 900. 000 Ft
A tartószerkezeti falak Porotherm p30n+f téglából, betonkoszorúval, fa födémes tetőszerkezettel készülnek. a lábazat 10 cm polisztirol lépésálló, a homlokzatok 15cm-es eps, a vízszintes födém 25 cm ásványgyapot szigeteléssel lesz ellátva.
Három rétegű üvegekkel szerelt, hat légkamrás műanyag thermo nyílászárók kerülnek beépítésre.
A minimális energiaigényt a megfelelő szigetelésen kívül a megújuló energiát használó gépészet is biztosítja. a fűtést levegő-víz hőszivattyús rendszer fogja végezni.
Burkolatok és felszereltség (alapárban választható):
-Hidegburkolat: 3. 000 Ft/m²
-Melegburkolat: 3. 000 Ft/m²
-Beltéri ajtók: 30. 000 Ft/db
-Fürdőkád: 40. 000 Ft
-Csaptelepek: 15. 000 Ft/db
A megadott értékhatáron túli választás esetén a különbözet fizetendő.
Referenciák:
A kivitelező korábban Sülysápon is épített hasonló ingatlanokat, melyeket komoly érdeklődés esetén szívesen bemutatunk.
Tervezett átadás: 2026. Első negyedév
A közelben megtalálható:
-Élelmiszer bolt 500m
-Vasútállomás 600m
-Általános Iskola 800m
-Orvosi rendelő, gyógyszertár 1000m
Érdeklődő ügyfeleinknek a tervdokumetációt és a műszaki tartalmat készséggel rendelkezésre bocsájtjuk.
INGYENES hitel tanácsadás, CSOK Plusz ügyintézés!
BANKFÜGGETLEN hitelcentrumunk az összes elérhető bank és hitelintézet ajánlatát versenyezteti az Ön kedvéért, ráadásul DÍJMENTESEN.
- Egyedi, bankfiókban nem elérhető kamat- és díjkedvezmények
- Hitelképesség vizsgálat
- Idő, energia és pénz megtakarítás
- Teljes hivatali ügyintézés
Amennyiben hirdetésem felkeltette az érdeklődését vagy egyéb információra van szüksége hívjon bizalommal! FIX 3% lakáshitelre megvehető
Tetszett ez az eladó Tápiószecsői új építésű 4 szobás ikerház? Hívd fel a hirdetőt most, és tudj meg mindent erről az eladó ikerházról! Ha gondolod nézelődj tovább az eladó ház Tápiószecső oldal hirdetései között. Ennek az eladó háznak az ára 59900000 Ft és mivel az alapterülete 95 négyzetméter, ezért az átlagos négyzetméterára 630526 HUF/m2.
Az eladó házak menüpontban további hirdetések között is böngészhetsz. Ha van kedved, akkor böngészhetsz a Horváth Péter összes hirdetése között, vagy akár a/az GDN Ingatlanhálózat összes hirdetése között is.

