Eladó új építésű ház - Tápiószecső
- INGYENES HIRDETÉS FELADÁS
Ingatlan adatai
- Eladó vagy kiadó:Eladó
- Település:Tápiószecső
- Kategória:Ház
- Alkategória:Ikerház
- Alapterület:95 m2
- Telekterület:1900 m2
- Csere is:Nem
- Hirdető:Cég
- Élő videón megtekinthető:Nem
- Építés éve:2025
- Szobaszám:4
- Állapot:Új építésű
- Hány szintes az ingatlan:Földszintes
- Tetőtér:nincs megadva
- Komfortosság:nincs megadva
- Pince:nincs megadva
- Parkolási lehetőség:nincs megadva
- Fűtés:Hőszivattyús
- Bútorozottság:nincs megadva
- Fényviszony:Napfényes
- Tájolás:DK
- Kilátás:nincs megadva
- Internet:nincs megadva
- Klíma:nincs megadva
- Akadálymentesített:nincs megadva
- Energiatanúsítvány:nincs megadva
- Villany:Van
- Víz:Van
- Gáz:Utcában
- Csatorna:Van
- Kapcsolatfelvétel

Plachy Zsuzsa
+36-(30)-869-5401
Mondd meg a hirdetőnek, hogy a megveszLAK-on találtad a hirdetést.
Referencia szám: HZ047301
Hitel ajánlatok
Ingatlan hirdetés leírása
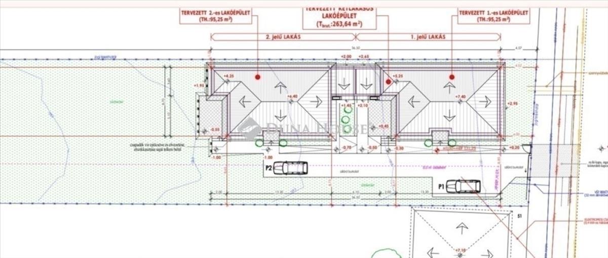
Eladó új építésű ház, Tápiószecső
Tápiószecsőn a vasút állomástól nem messze nappali+3 szobás új építésű ikerház fél, csak a tárolónál ér ÖSSZE! ! !
Tápiószecső központi részén, nagyon jó elosztású új építésű családi otthon! ! ! Saját 1250 m2-es telek!
HÁTSÓ Ingatlan!
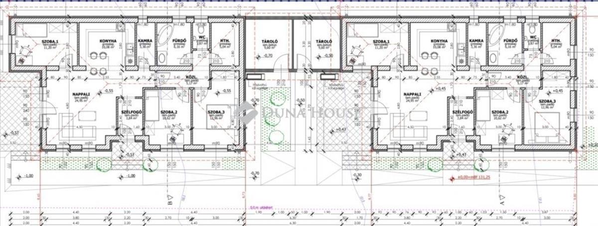
95, 25 Nm2 a hasznos fűthető területe.
1240 Nm2-es Telek.
Az ingatlannak főbb jellemzői:
- 3 kényelmes méretű szoba.
- Amerikai konyha -Nappali amely 35nm2
- Külön Fürdő és külön wc
- Egy praktikus Háztartási Helyiség
- Egy ideális nagyságú Tároló.
- És egy saját használatú 1240 nm2-es Telek
A fűtési rendszer hőszivattyúval működik, így az energiaköltségek rendkívül alacsonyak.
Műszaki leírás:
P30N+F téglafal
10 cm homlokzati szigetelés
25 cm födém szigetelés
Hat légkamrás, háromrétegű műanyag thermo nyílászárók
Antracit színű cserép
Elektromos kapu előkészítése
A burkolatok és a beltéri ajtók a vállalkozó által biztosított összeghatárig választhatók:
Hidegburkolat: 3. 000 Ft/m²
Melegburkolat: 3. 000 Ft/m²
Beltéri ajtók: 30. 000 Ft/db
Fürdőkád: 50. 000 Ft
Csaptelepek: 15. 000 Ft/db
Természetesen választható egyéni igények és ár ügyében is az alábbi belső kialakításért szükséges burkolatok, szaniterek, ajtók.
Ezzel kapcsolatban a kivitelezővel egyeztetve feleár ellenében lehetséges.
Referencia munkát is szívesen mutatok, Sülysápon komoly érdeklődés esetén!
Várom megtisztelő hívását, hitel ügyintézésben is rendelkezésére állok, bank független hitelügyintézőnkkel.
Amennyiben az ingatlan megfelelne az elvárásainak de nem rendelkezik a teljes vételárral? Ebben az esetben a credipass munkatársai kötelezettség- és díjmentes tanácsadással állnak Ügyfeleink rendelkezésére.
Használja ki a jelenleg még érvényben lévő kedvező kamatozású hiteleket, CSOK-ot, illetékkedvezményt!
Hétvégén is várom megtisztelő hívását, abban az esetben is ha csak hitelre lenne szüksége,
Várom hívását, ha még el kell adnia ahhoz, hogy vásárolni tudjon!
Várom megtisztelő hívását: Plachy Zsuzsa 30-8695401
Referencia szám: hz047301 FIX 3% lakáshitelre megvehető

