Eladó új építésű ház Tápiószecső
| Kedvencbe | Megosztás | Árfigyelő |
| FIX 3% lakáshitelre megvehető | ||
| 69 900 000 HUF | ||
Ingatlan adatai
- Eladó vagy kiadó:Eladó
- Település:Tápiószecső
- Kategória:Ház
- Alkategória:Ikerház
- Alapterület:95 m2
- Telekterület:1900 m2
- Csere is:Nem
- Hirdető:Cég
- Élő videón megtekinthető:Nem
- Építés éve:2025
- Szobaszám:4
- Állapot:Új építésű
- Hány szintes az ingatlan:Földszintes
- Tetőtér:nincs megadva
- Komfortosság:nincs megadva
- Parkolási lehetőség:nincs megadva
- Fűtés:Hőszivattyús
- Bútorozottság:nincs megadva
- Fényviszony:Napfényes
- Tájolás:DK
- Kilátás:nincs megadva
- Internet:nincs megadva
- Akadálymentesített:nincs megadva
- Energiatanúsítvány:nincs megadva
- Villany:nincs megadva
- Víz:nincs megadva
- Gáz:nincs megadva
- Csatorna:nincs megadva
- Üzenetküldés
- Hívás

Referencia szám: HZ047301

Hitel ajánlat
Ingatlan hirdetés leírása
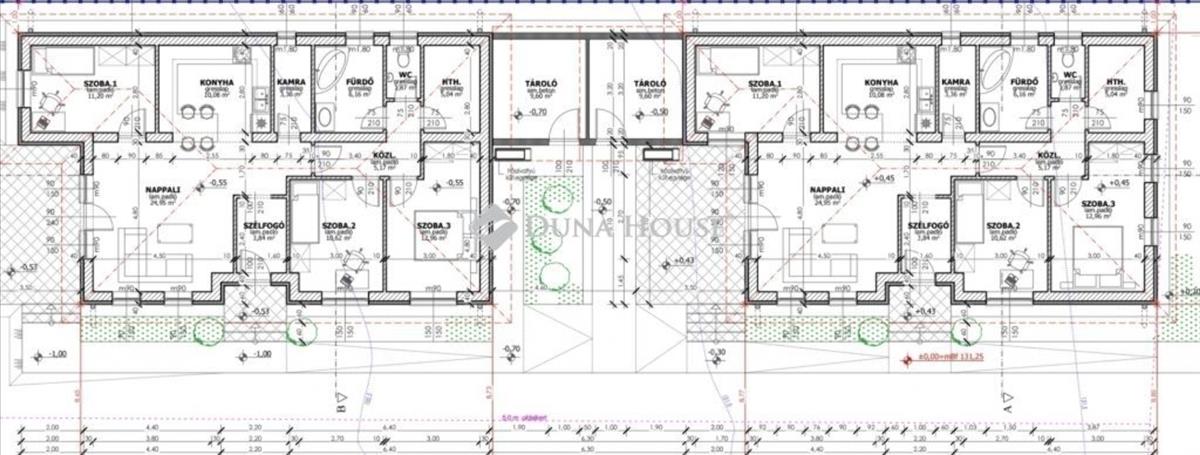
Eladó ház, Tápiószecső
Tápiószecsőn a vasút állomástól nem messze új építésű ikerház fél, csak a tárolónál ér ÖSSZE! ! !Tápiószecső központi részén, nagyon jó elosztású új építésű családi OTTHON! ! !
HÁTSÓ Ingatlan!
95, 25 Nm2 a hasznos fűthető területe.
1240 Nm2-es Telek.
Az ingatlannak főbb jellemzői:
- 3 kényelmes méretű szoba.
- Amerikai konyha -Nappali amely 35nm2
- Külön Fürdő és külön wc
- Egy praktikus Háztartási Helyiség
- Egy ideális nagyságú Tároló.
- És egy saját használatú 1240 nm2-es Telek
A fűtési rendszer hőszivattyúval működik, így az energiaköltségek rendkívül alacsonyak.
Műszaki leírás:
P30N+F téglafal
10 cm homlokzati szigetelés
25 cm födém szigetelés
Hat légkamrás, háromrétegű műanyag thermo nyílászárók
Antracit színű cserép
Elektromos kapu előkészítése
A burkolatok és a beltéri ajtók a vállalkozó által biztosított összeghatárig választhatók:
Hidegburkolat: 3. 000 Ft/m²
Melegburkolat: 3. 000 Ft/m²
Beltéri ajtók: 30. 000 Ft/db
Fürdőkád: 50. 000 Ft
Csaptelepek: 15. 000 Ft/db
Természetesen választható egyéni igények és ár ügyében is az alábbi belső kialakításért szükséges burkolatok, szaniterek, ajtók.
Ezzel kapcsolatban a kivitelezővel egyeztetve feleár ellenében lehetséges.
Referencia munkát is szívesen mutatok, Sülysápon komoly érdeklődés esetén!
Várom megtisztelő hívását, hitel ügyintézésben is rendelkezésére állok, bank független hitelügyintézőnkkel.
Érd. : Hegedűs Tamás tel. : +36/30-416-7090 Email: tamas. Hegedus@dh. Hu
Referencia szám: hz047301 FIX 3% lakáshitelre megvehető

