Eladó új építésű ház - Tápiószecső
- INGYENES HIRDETÉS FELADÁS
Ingatlan adatai
- Eladó vagy kiadó:Eladó
- Település:Tápiószecső
- Kategória:Ház
- Alkategória:Ikerház
- Alapterület:95 m2
- Telekterület:1900 m2
- Csere is:Nem
- Hirdető:Cég
- Élő videón megtekinthető:Nem
- Építés éve:2026
- Szobaszám:4
- Állapot:Új építésű
- Hány szintes az ingatlan:Földszintes
- Tetőtér:nincs megadva
- Komfortosság:nincs megadva
- Pince:nincs megadva
- Parkolási lehetőség:nincs megadva
- Fűtés:Hőszivattyús
- Bútorozottság:nincs megadva
- Fényviszony:Napfényes
- Tájolás:DK
- Kilátás:nincs megadva
- Internet:nincs megadva
- Klíma:nincs megadva
- Akadálymentesített:nincs megadva
- Energiatanúsítvány:nincs megadva
- Villany:Van
- Víz:Van
- Gáz:Utcában
- Csatorna:Van
- Kapcsolatfelvétel

Rizmayer Mária
+36-(20)-211-4504
Mondd meg a hirdetőnek, hogy a megveszLAK-on találtad a hirdetést.
Referencia szám: HZ041560
Hitel ajánlatok
Ingatlan hirdetés leírása
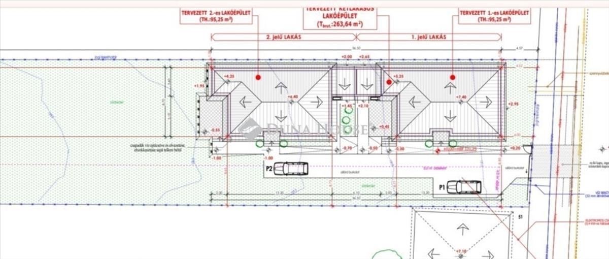
Eladó ház, Tápiószecső
Tápiószecsőn új építésű ikerház csak a tárolónál ér ÖSSZE!
VASÚTÁLLOMÁS közelében saját 640 m² TELEKKEL!
Tápiószecső központi részén, kiváló elhelyezkedéssel kínálok megvételre egy modern kialakítású, új építésű ikerházfelet, amely csak a tárolónál kapcsolódik, így szinte önálló családi ház érzetét nyújtja!
Utcafronti elhelyezkedés
Átgondolt alaprajz
Energiatakarékos műszaki tartalom
Ideális otthon családok számára
Főbb adatok
95, 25 m² hasznos fűthető alapterület
640 m² saját használatú telek
Világos, élhető terek
Praktikus elrendezés
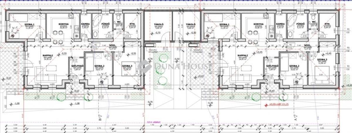
Helyiségek
3 kényelmes méretű hálószoba
35 m²-es amerikai konyhás nappali a családi élet központja
Külön fürdőszoba és külön WC
Praktikus háztartási helyiség
Saját tároló
Nagy, jól használható kert
Modern, energiatakarékos műszaki tartalom
Hőszivattyús fűtési rendszer alacsony rezsiköltség
P30 n+f tégla falazat
10 cm homlokzati szigetelés
25 cm födémszigetelés
6 légkamrás, 3 rétegű thermo nyílászárók
Antracit tetőcserép
Elektromos kapu előkészítés
Személyre szabható belső kialakítás
A burkolatok és beltéri ajtók választhatók a műszaki tartalom részeként:
Hidegburkolat: 3. 000 Ft/m²
Melegburkolat: 3. 000 Ft/m²
Beltéri ajtók: 30. 000 Ft/db
Fürdőkád: 50. 000 Ft
Csaptelepek: 15. 000 Ft/db
Egyedi igények is megvalósíthatók a kivitelezővel történő egyeztetés alapján.
Extra bizalom
Referencia munka megtekinthető Sülysápon komoly érdeklődés esetén.
Hívjon bizalommal!
Teljes körű ügyintézés az első megtekintéstől a birtokbaadásig.
Bankfüggetlen hitelügyintéző partnerünk díjmentesen segít a finanszírozásban is.
Érd. : Rizmayer Mária +36202114504 email: rizmayer. Maria@dh. Hu
Referencia szám: hz041560 FIX 3% lakáshitelre megvehető
Tetszett ez az eladó Tápiószecsői új építésű 4 szobás ikerház? Hívd fel a hirdetőt most, és tudj meg mindent erről az eladó ikerházról! Ha gondolod nézelődj tovább az eladó ház Tápiószecső oldal hirdetései között. Ennek az eladó háznak az ára 59900000 Ft és mivel az alapterülete 95 négyzetméter, ezért az átlagos négyzetméterára 630526 HUF/m2.
Az eladó házak menüpontban további hirdetések között is böngészhetsz. Ha van kedved, akkor böngészhetsz a Rizmayer Mária összes hirdetése között, vagy akár a/az Duna House Villa Gyömrő összes hirdetése között is.

