- >>
- eladó ingatlanok
- >>
- eladó ház
- >>
- eladó ház Telki
- >>
Eladó újszerű állapotú ház - Telki
| | |||
| Kedvencnek jelölöm | Elküldöm emailben | Megosztás | Szavazás |
| Kedvezményes lakáshitel ajánlatok | |||
| 159 000 000 HUF | |||
Ingatlan adatai
- Eladó vagy kiadó:Eladó
- Település:Telki
- Kategória:Ház
- Alkategória:Ikerház
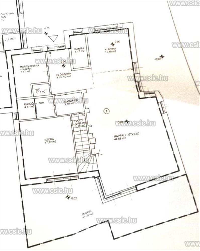
- Alapterület:172 m2
- Telekterület:600 m2
- Csere is:Nem
- Hirdető:Cég
- Élő videón megtekinthető:Nem
- Szobaszám:6
- Állapot:Újszerű, kitűnő
- Hány szintes az ingatlan:nincs megadva
- Tetőtér:nincs megadva
- Komfortosság:nincs megadva
- Parkolási lehetőség:Beállóban
- Fűtés:Egyéb
- Bútorozottság:nincs megadva
- Fényviszony:nincs megadva
- Tájolás:nincs megadva
- Kilátás:Panorámás
- Internet:nincs megadva
- Akadálymentesített:nincs megadva
- Energiatanúsítvány:nincs megadva
- Villany:Van
- Víz:Van
- Gáz:Van
- Csatorna:Van
- Üzenetküldés
- Hívás

Keresztesy Gabriella
Mondd meg a hirdetőnek, hogy a megveszLAK-on találtad a hirdetést.

Hitel ajánlat
Ingatlan hirdetés leírása
ELADÓ IKERHÁZ TELKI PANORÁMA
Kizárólag a Családi Ingatlan kínálatában!Panorámás ikerház Telkiben – ahol a természet a mindennapok része. Csendes zsákutcában, a kilátópont közelében.
Képzelje el, hogy reggel madárcsicsergésre ébred, a gyerekek biztonságos, zöld környezetben játszanak, délután pedig egy közös séta vagy kirándulás várja Önöket a természetben. Ez az 172 m²-es, panorámás ikerház Telkiben pontosan ezt az életérzést kínálja.
Az ingatlan ideális választás családoknak, akik nyugodt, természetközeli otthont keresnek, mégis értékelik a tágas tereket és az átgondolt elrendezést.
Főbb jellemzők:
•Lakótér: 172 m²
•Telek: 600 m² – füvesített és térkövezett részekkel
•Szobák: 4 hálószoba
•Fürdőszobák: 2 fürdőszoba WC-vel
•Nappali: ~50 m²-es, amerikai konyhás, világos és napfényes
•Belmagasság: közel 6 méter – különleges térélmény
•Fűtés: gázkazán + kandalló a meghitt téli estékhez
Praktikus megoldások és extrák:
•nagy háztartási helyiség
•galéria, amely tökéletes dolgozószobának vagy olvasósaroknak
•vendégszoba saját fürdővel
•tágas kamra
•külön gardrób helyiség
•a ház bútorzata a vételár részét képezi
A ház két szinten, jó állapotban, átgondolt elrendezéssel várja új lakóit. a kert kiválóan alkalmas gyermekek számára, de ideális pihenéshez, kertészkedéshez vagy baráti, családi összejövetelekhez is. a panoráma és a csend garantált – itt valóban lelassul az idő.
Ez az otthon nem csupán egy ház, hanem egy életstílus: nyugalom, tér és természet harmóniája Telki egyik kedvelt, zöldövezeti részén.
Ne maradjon le róla! Hívjon bizalommal – akár hétvégén is – és tekintse meg személyesen! Hitelre van szüksége? Bankfüggetlen hiteltanácsadóink készséggel segítenek. Hitel.hu - Hasonlítsa össze a bankok lakáshitel ajánlatait

