Eladó új építésű ház - Törökbálint
- INGYENES HIRDETÉS FELADÁS
Ingatlan adatai
- Feladva:20 napja a megveszLAK-on
- Eladó vagy kiadó:Eladó
- Település:Törökbálint
- Kategória:Ház
- Alkategória:Ikerház
- Alapterület:115 m2
- Telekterület:591 m2
- Csere is:Nem
- Hirdető:Cég
- Élő videón megtekinthető:Nem
- Építés éve:2026
- Szobaszám:5
- Állapot:Új építésű
- Hány szintes az ingatlan:nincs megadva
- Tetőtér:nincs megadva
- Komfortosság:nincs megadva
- Pince:nincs megadva
- Parkolási lehetőség:nincs megadva
- Fűtés:nincs megadva
- Bútorozottság:nincs megadva
- Fényviszony:nincs megadva
- Tájolás:DK
- Kilátás:nincs megadva
- Internet:nincs megadva
- Klíma:nincs megadva
- Akadálymentesített:nincs megadva
- Energiatanúsítvány:nincs megadva
- Villany:Van
- Víz:Van
- Gáz:Van
- Csatorna:Van
- Kapcsolatfelvétel

Juhász Gyula
+36-(70)-716-8891
Mondd meg a hirdetőnek, hogy a megveszLAK-on találtad a hirdetést.
Hitel ajánlatok
Ingatlan hirdetés leírása
Törökbálint népszerű részén, a közkedvelt Újtelepen épülő iker...
Törökbálint népszerű részén, a közkedvelt Újtelepen épülő ikerházat kínálunk nyugalomra és biztonságra vágyó családoknak, pároknak.
Ez az új építésű ikerház egy igazán különleges lehetőséget kínál azoknak, akik szeretnék élvezni a városi élet előnyeit, miközben a csendes környezetet is értékelik.
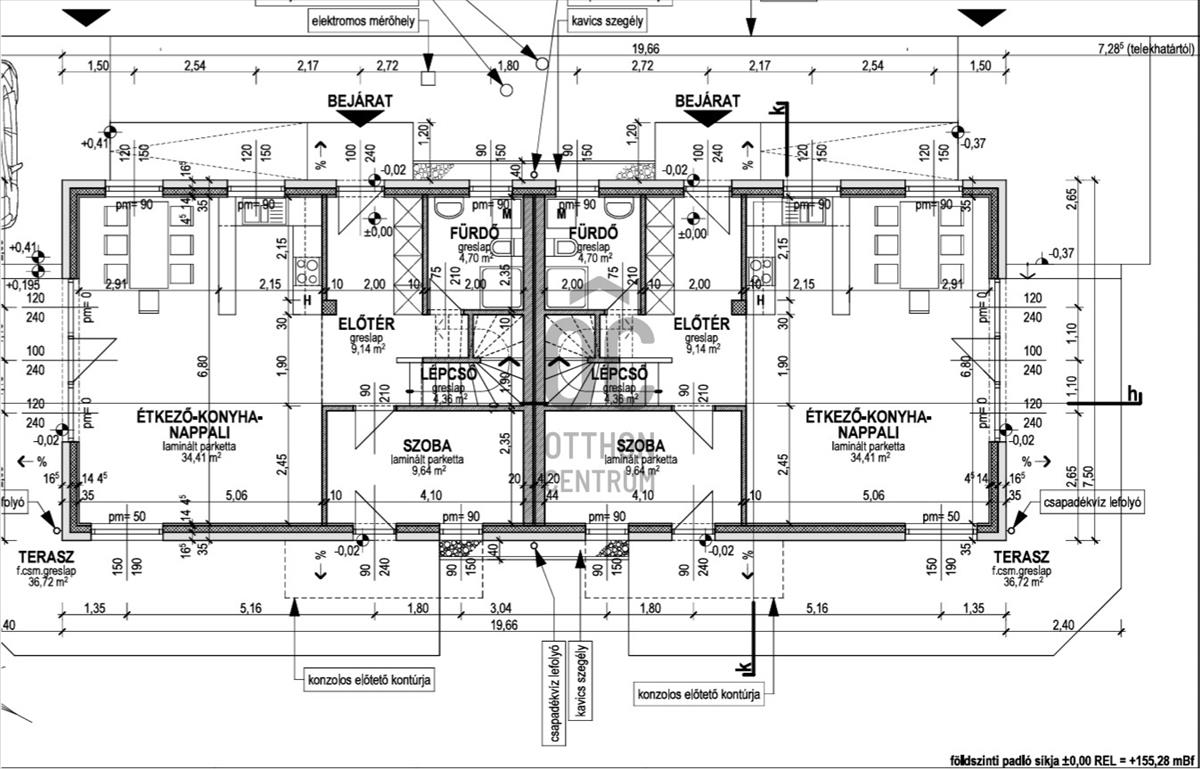
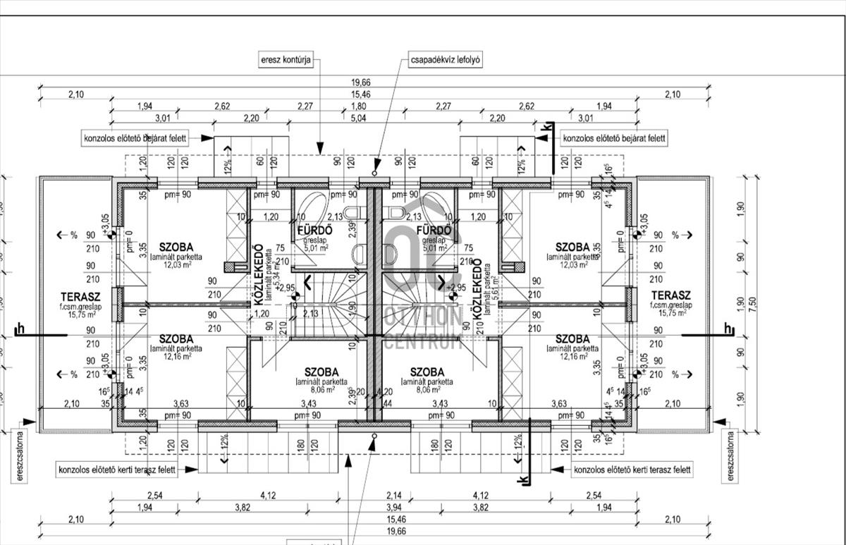
Az ingatlan alapterülete 100 nm , amely 4 lakó szobát, egy tágas amerikai konyhás nappalit és két fürdőszobát foglal magában, így ideális választás a családok, közös fészket építő párok számára.
A ház amerikai konyhás nappalija az ingatlan szíve, amelyhez kertkapcsolatos terasz is csatlakozik.
A 36 nm -es terasz lehetőséget ad arra, hogy a szabadban töltsön időt, akár egy kis kertészkedéssel.
A környék kiváló, hiszen a bevásárlóközpontok, iskolák és egészségügyi intézmények mindössze pár percnyi távolságra találhatók.
A közlekedés is kitűnő, hiszen az Etele téri csomópont könnyen megközelíthető autóval és tömegközlekedéssel egyaránt.
A csendes utcák és a biztonságos környezet ideális hely a kisgyermekes családok számára, akik a város zajától távolabb, de annak közelségében szeretnének élni.
A ház hibrid hőszivattyús fűtése és klímás hűtése garantálja a kellemes hőmérsékletet az év minden szakában.
A 15 cm-es grafitos hőszigetelés és a speciális, 3 rétegű nyílászárók a modern fűtési-hűtési rendszerrel együtt biztosítják a rendkívül kedvező rezsiköltségeket.
Törökbálint felkapott környék, nemcsak a fiatalok, hanem idősek, sőt a befektetők számára is vonzó, hiszen a folyamatosan növekvő kereslet és a fejlődő infrastruktúra biztosítja az ingatlan értékének megőrzését és növekedését.
Természetesen biztosítjuk az alapterveket tartalmazó műszaki ismertetőket, de nagyon fontos információ, hogy a szerződéskötés előtt, 20% foglaló fizetése mellett minden további kivitelezési igény egyeztethető és megvalósítható. a kivitelező készséggel áll rendelkezésre a tervek véglegesítésében. a hirdetett ár felső teraszt nem tartalmaz.
Ismerje meg a Csok Plusz program és az Otthon Centrum egyedi piaci kamatozású hiteleinek páratlan lehetőségeit!
Teljes körű hitel és jogi tanácsadással és lebonyolítással állunk ügyfeleink rendelkezésére.
Csak mutasson rá az ingatlanra, a többit intézzük!
Minden további kérdésben állok rendelkezésre telefonon (a szám sms-t nem fogad), email-en és természetesen személyesen! FIX 3% lakáshitelre megvehető
Tetszett ez az eladó Törökbálinti új építésű 5 szobás ikerház? Hívd fel a hirdetőt most, és tudj meg mindent erről az eladó ikerházról! Ha gondolod nézelődj tovább az eladó ház Törökbálint oldal hirdetései között. Ennek az eladó háznak az ára 148000000 Ft és mivel az alapterülete 115 négyzetméter, ezért az átlagos négyzetméterára 1286957 HUF/m2.
Az eladó házak menüpontban további hirdetések között is böngészhetsz. Ha van kedved, akkor böngészhetsz a Juhász Gyula összes hirdetése között, vagy akár a/az Otthon Centrum Törökbálint összes hirdetése között is.

