Eladó új építésű ház Törökbálint
| Kedvencbe | Megosztás | Árfigyelő |
| Kedvezményes lakáshitel ajánlatok | ||
| 239 900 000 HUF | ||
Ingatlan adatai
- Eladó vagy kiadó:Eladó
- Település:Törökbálint
- Kategória:Ház
- Alkategória:Ikerház
- Alapterület:175 m2
- Telekterület:400 m2
- Csere is:Nem
- Hirdető:Cég
- Élő videón megtekinthető:Nem
- Szobaszám:5
- Állapot:Új építésű
- Hány szintes az ingatlan:nincs megadva
- Tetőtér:nincs megadva
- Komfortosság:nincs megadva
- Parkolási lehetőség:Beállóban
- Fűtés:nincs megadva
- Bútorozottság:nincs megadva
- Fényviszony:nincs megadva
- Tájolás:nincs megadva
- Kilátás:nincs megadva
- Internet:nincs megadva
- Akadálymentesített:nincs megadva
- Energiatanúsítvány:nincs megadva
- Villany:Van
- Víz:Van
- Gáz:Van
- Csatorna:Van
- Üzenetküldés
- Hívás

Jeneyné Salamon Rita
Mondd meg a hirdetőnek, hogy a megveszLAK-on találtad a hirdetést.

Hitel ajánlat
Ingatlan hirdetés leírása
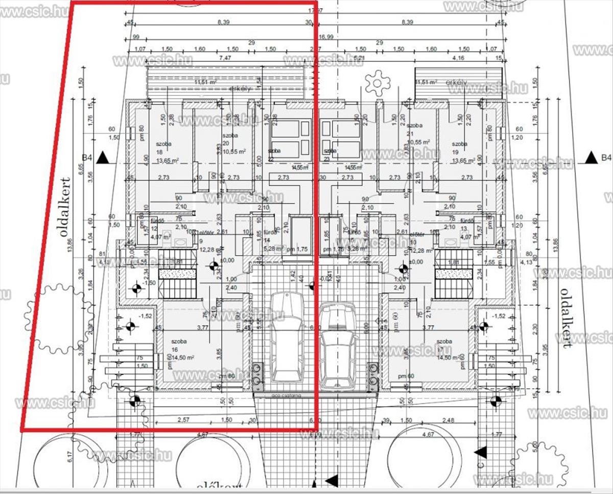
TÖRÖKBÁLINT-TÜKÖRHEGY LUXUS IKERHÁZ
Törökbálint-tükörhegy: ahol a természet, a tér és a nyugalom TALÁLKOZIKTÖRÖKBÁLINT legnépszerűbb részén a tükörhegyen már teljesen kiépült, ősfás környezetben, 175 nm-es, kiváló tulajdonságokkal bíró, új építésű nappali + 4 szobás, 420 nm saját telekrésszel rendelkező a++ ikerház fél eladó.
Modern design, kimagasló műszaki tartalom és a természet közelsége – mindez egyben. Egymás szomszédságában kettő ikerház épül, a négy lakás kerül kialakításra. Prémium minőségű anyagok és kivitelezés.
LIMITÁLT induló AJÁNLAT!
Az első értékesített otthon most akciós áron 20 millió forint kedvezménnyel vásárolható meg!
Ráadásul az új tulajdonos még ajándékba kap:
• 500 000 Ft értékű lakberendezési csomagot
• bioklimatikus lamellás pergolát a kocsibeálló fölé!
Az első eladott otthon 259, 9MFt helyett most 239, 9MFT!
Főbb jellemzők:
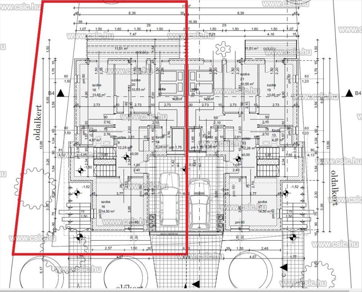
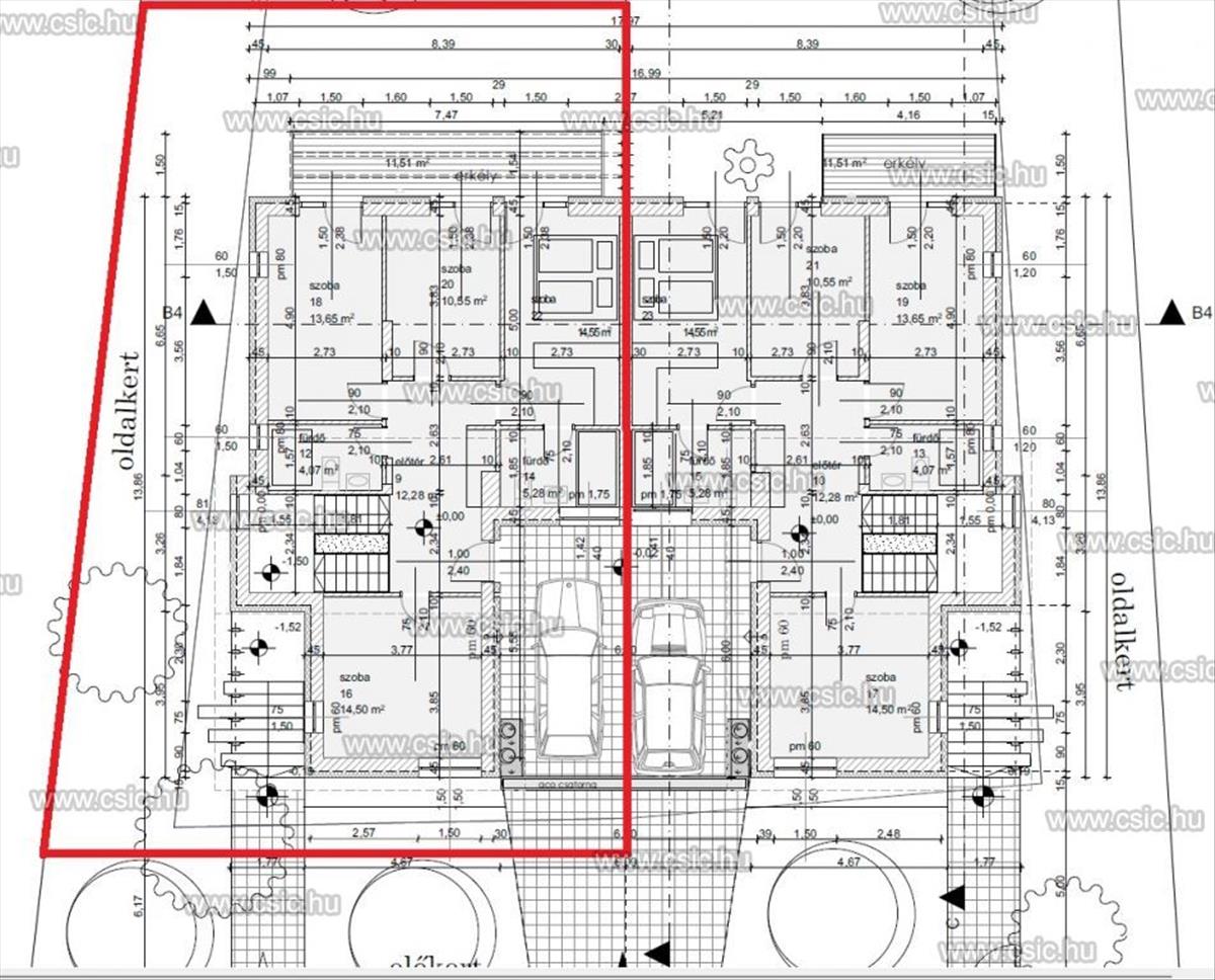
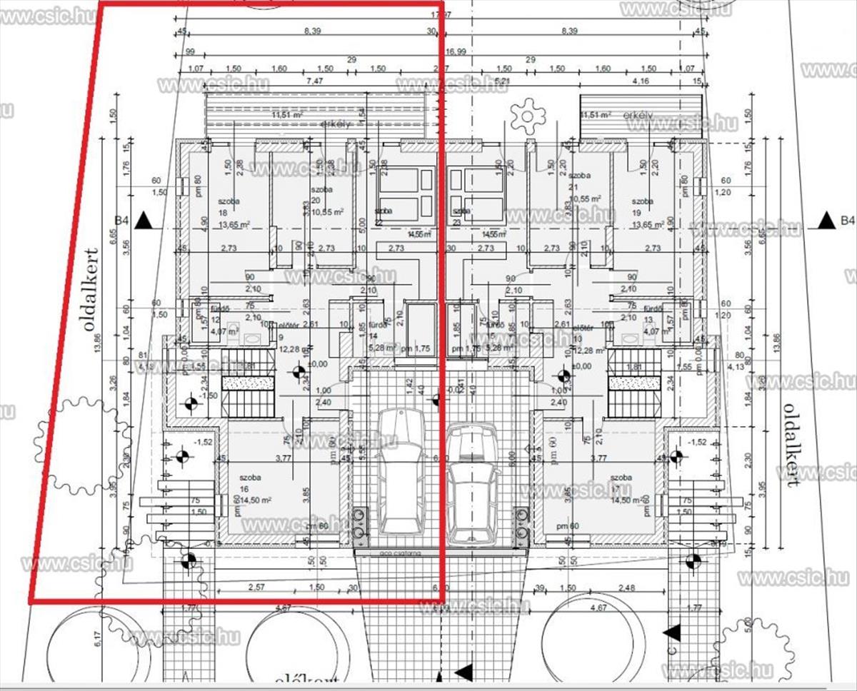
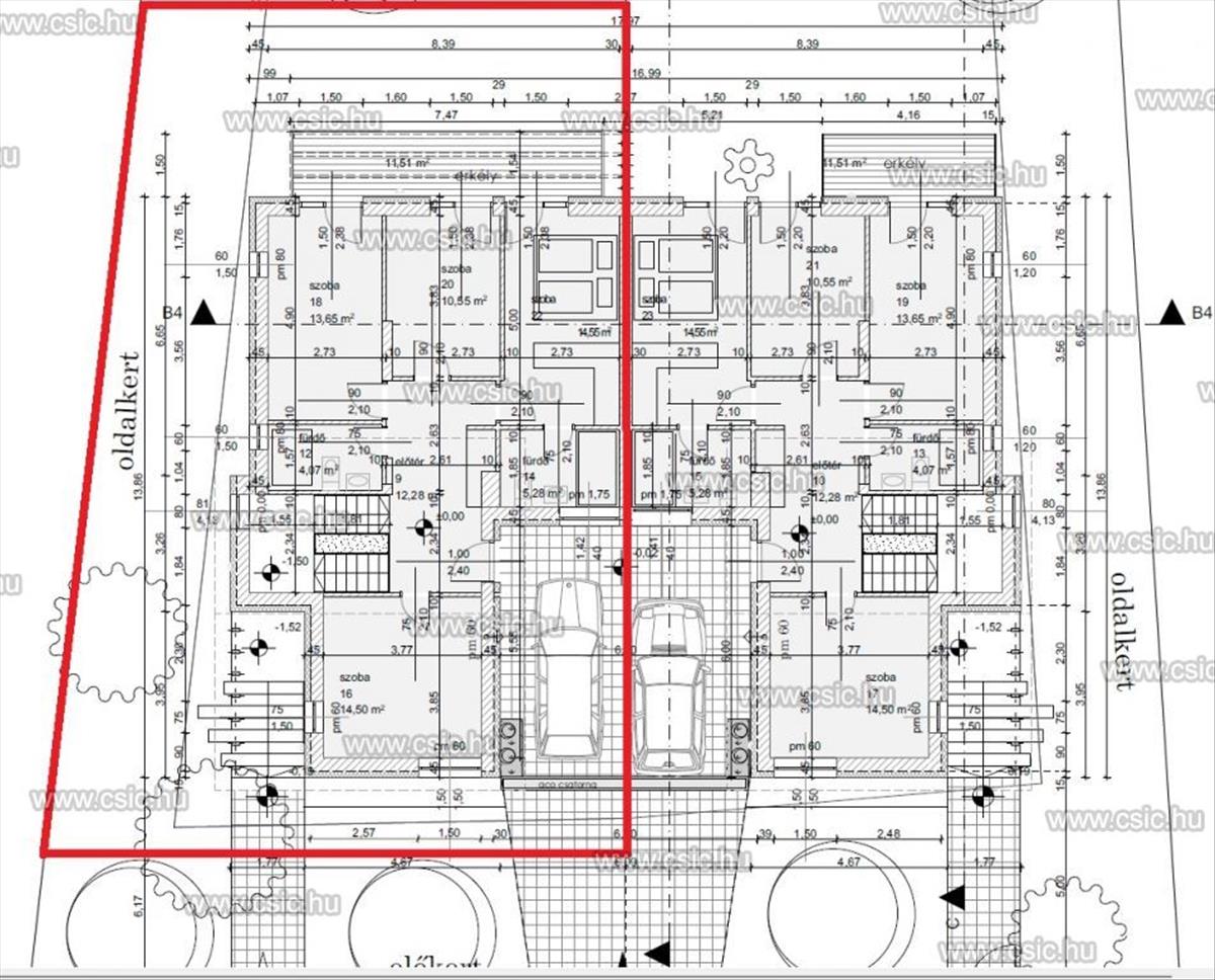
•Alapterület: kb. 175 M² -két szintes épület
•Telek: kb. 420 M²
•4 szoba+ nappali, nagy háztartási helyiség, tágas, napfényes terek
•Duplakomfortos
•Nagy üvegfelületek, gyönyörű kilátással
•2 gépkocsi részére kocsibeálló bioklimatikus lamellás pergolával, saját kerttel
•2026 nyári átadás
RÖVID műszaki tartalom:
•Modern levegő–víz hőszivattyús rendszer padlófűtéssel
•3 rétegű prémium nyílászárók, elektromos aluminium redőnnyel
•Elegáns burkolatok, választható színek és anyagok
•A++ energetikai besorolású
•15 cm-es grafitos szigeteléssel
Megbízhat, többéves tapasztalattal és referenciával rendelkező kivitelező. a referencia házak megtekinthetők több helyszínen, előzetes egyeztetéssel!
-
AZ ingatlan KÖRNYEZETE:
Az ingatlan Törökbálint különlegesen szép, már kialakult ősfás, ligetes részén, csendes aszfaltos utcában, kertvárosi környezetben helyezkedik el. a környék infrastruktúrája mégis kiváló, 10 perc séta a buszmegálló, ahonnét a Kelenföldi Pályaudvarra a 172, 173, 272-es bkk buszok közlekednek. Rövid séta után található a helyijáratos iskolabusz megállója is. Autóval pár perc m1, m7 autópályák miután a város több felhajtóval is rendelkezik.
Bevásárlási lehetőségek, éttermek 2 km-en belül, oktatási intézmények 10 percen belül elérhetők, több önkormányzati és magán bölcsőde, óvoda, iskola található a környéken.
Kinek ajánlom?
- Családoknak, akik szeretik a természetközeli nyugalmat, de fontos a városi közelség
- Tudatos vásárlóknak, akik értékelik az energiatakarékos megoldásokat
- Befektetőknek, akik egy értékálló ingatlant keresnek kiváló lokációban.
Várható átadás 2026. Harmadik negyedév
Nemcsak egy házat, hanem életstílust vásárolhatsz!
Az elkészült ház képek a kivitelező referencia ingatlanjai.
Amennyiben a családi ingatlan által kínált ingatlan, vagy bármely a kínálatunkban található ingatlan felkeltette érdeklődését, hívjon bármikor a megadott telefonszámon. Hitel.hu - Hasonlítsa össze a bankok lakáshitel ajánlatait

