Eladó ház Vácrátót
| Kedvencbe | Megosztás | Árfigyelő |
| FIX 3% lakáshitelre megvehető | ||
| 99 500 000 HUF | ||
Ingatlan adatai
- Eladó vagy kiadó:Eladó
- Település:Vácrátót
- Kategória:Ház
- Alkategória:Ikerház
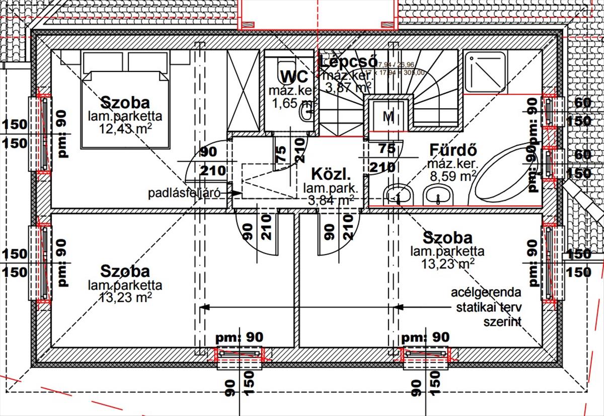
- Alapterület:88 m2
- Telekterület:363 m2
- Csere is:Nem
- Hirdető:Cég
- Élő videón megtekinthető:Nem
- Szobaszám:4
- Állapot:nincs megadva
- Hány szintes az ingatlan:nincs megadva
- Tetőtér:nincs megadva
- Komfortosság:nincs megadva
- Pince:Nincs
- Parkolási lehetőség:nincs megadva
- Fűtés:nincs megadva
- Bútorozottság:nincs megadva
- Fényviszony:nincs megadva
- Tájolás:nincs megadva
- Kilátás:nincs megadva
- Internet:nincs megadva
- Akadálymentesített:nincs megadva
- Energiatanúsítvány:nincs megadva
- Villany:nincs megadva
- Víz:nincs megadva
- Gáz:nincs megadva
- Csatorna:nincs megadva
- Üzenetküldés
- Hívás


Hitel ajánlat
Ingatlan hirdetés leírása
ÚJ ÉPÍTÉSŰ IKERHÁZ eladó Vácrátóton a lakóparkban a természeth...
Új építésű ikerház eladó Vácrátóton a lakóparkban a természethez közel!A földszintes ikerház több méretben, amerikai konyhás nappali+3 vagy 4 hálószoba, fürdőszoba, háztartási helyiség, kamra, előszoba, külön mellékhelyiséggel épül meg.
A ház a mai energetikai elvárásoknak megfelelően épül: hőszivattyús fűtésrendszer padlófűtéssel mindenhol,
Burkolatok, szaniterek, belső ajtók igény szerint választhatók.
Redőny előkészítés, elektromos kiállással, napelem előkészítés az árban. H taifás villany óra szintén a vételárban. Pakolható terhelhető betonfödém.
Referenciákkal rendelkező, nagy múltú kivitelezőtől! Családi otthonteremtési kedvezmény (csok) és az illetékkedvezmények igénybe vehetők, hitelügyintézésben díjtalanul segítséget nyújtunk.
Megtekinthető telefonos időpont-egyeztetés alapján: Czirják Mihály 20/220-9995 FIX 3% lakáshitelre megvehető

