Eladó új építésű ház - Vácrátót
- INGYENES HIRDETÉS FELADÁS
Ingatlan adatai
- Eladó vagy kiadó:Eladó
- Település:Vácrátót
- Kategória:Ház
- Alkategória:Ikerház
- Alapterület:96 m2
- Telekterület:240 m2
- Csere is:Nem
- Hirdető:Cég
- Élő videón megtekinthető:Nem
- Építés éve:2026
- Szobaszám:4
- Állapot:Új építésű
- Hány szintes az ingatlan:nincs megadva
- Tetőtér:nincs megadva
- Komfortosság:nincs megadva
- Pince:Nincs
- Parkolási lehetőség:nincs megadva
- Fűtés:nincs megadva
- Bútorozottság:Bútorozatlan
- Fényviszony:nincs megadva
- Tájolás:nincs megadva
- Kilátás:nincs megadva
- Internet:nincs megadva
- Klíma:nincs megadva
- Akadálymentesített:nincs megadva
- Energiatanúsítvány:nincs megadva
- Villany:Van
- Víz:Van
- Gáz:nincs megadva
- Csatorna:Van
- Kapcsolatfelvétel

Kovács Péter
+36-(70)-418-1960
Mondd meg a hirdetőnek, hogy a megveszLAK-on találtad a hirdetést.
Hitel ajánlatok
Ingatlan hirdetés leírása
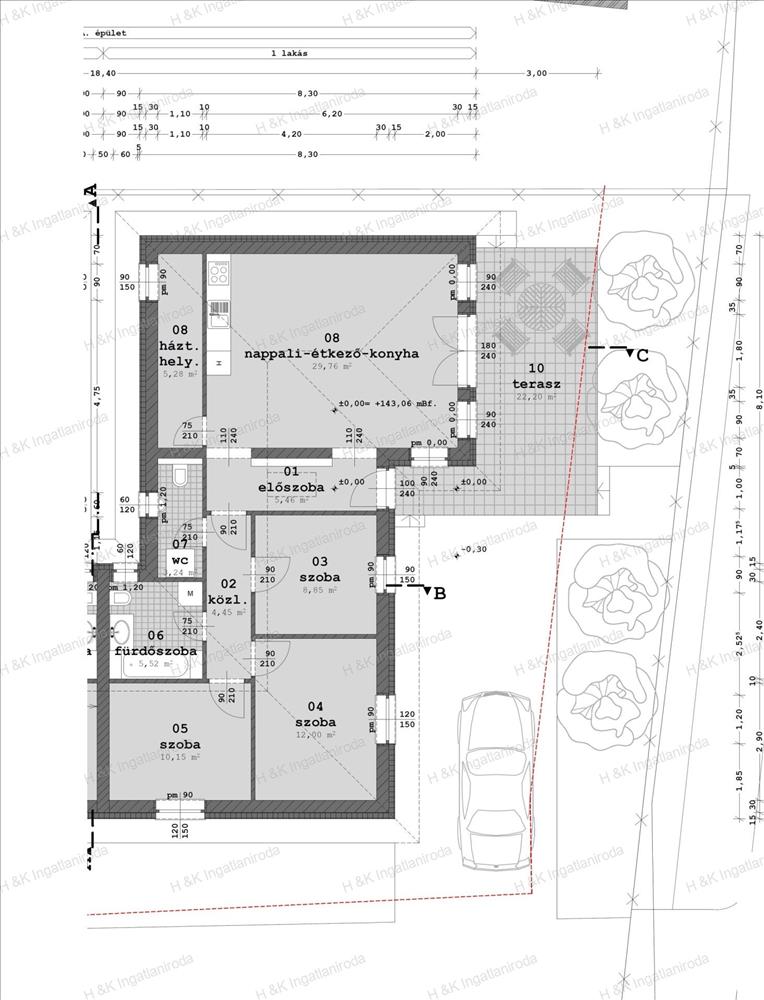
4634/1: Földszintes ikerház mindkét fele eladó Vácrátóton!
Földszintes ikerház mindkét fele eladó Vácrátóton!
A 2024-től aktuális állami támogatások valamint kedvezményes, kamattámogatott hitelek felvehetőek – akár a 3%-os otthon start hitel, CSOK plus, babaváró is igényelhető, az ügyintézésben díjmentesen segítünk!
Az építő munkájára jellemző a megbízhatóság és igényesség, leinformálható, referencia házai megtekinthetők.
Az ikerház 1-es lakása, 84, 71 nm nettó lakóterületű + 22, 2 nm terasz, amerikai-konyhás nappali + 3 hálószobás, 240 nm -es telekrésszel.
Rövid műszaki tartalom:
A ház falai 30-as Porotherm téglából épülnek, 15 cm-es külső szigeteléssel, betonfödémmel.
A tető barna színű, nagy szilárdságú, anyagában színezett betoncserép fedést kap.
Műanyag szerkezetű, gondozásmentes 3 rétegű nyílászárók kerülnek beépítésre.
A fűtést és használati meleg víz ellátását levegő - víz hőszivattyú biztosítja, a hőleadás padlófűtéssel történik.
A vételár tartalmazza: napelem- és riasztó előkészítést, kaputelefont, zárt udvari gépkocsi-beálló kialakítását, biztonsági bejárati ajtót.
Az ingatlan kulcsrakész állapotban kerül átadásra, konyhabútor nélkül. Belső nyílászárók és a burkolatok választhatók, a belső műszaki tartalomban megjelölt összegig a vételár részét képezve.
Az ikerház másik lakásának belső elrendezése megegyezik az 1-es lakáséval, saját kertje 324 nm - ára: 92 M Ft
Kulcsrakész ár: 84. 900. 000. - Ft
Azonosító: 4634/1-es lakás FIX 3% lakáshitelre megvehető
Tetszett ez az eladó Vácrátóti új építésű 4 szobás ikerház? Hívd fel a hirdetőt most, és tudj meg mindent erről az eladó ikerházról! Ha gondolod nézelődj tovább az eladó ház Vácrátót oldal hirdetései között. Ennek az eladó háznak az ára 84900000 Ft és mivel az alapterülete 96 négyzetméter, ezért az átlagos négyzetméterára 884375 HUF/m2.
Az eladó házak menüpontban további hirdetések között is böngészhetsz. Ha van kedved, akkor böngészhetsz a Kovács Péter összes hirdetése között, vagy akár a/az H &K Ingatlaniroda összes hirdetése között is.

