Eladó új építésű ház Vácrátót
| Kedvencbe | Megosztás | Árfigyelő |
| FIX 3% lakáshitelre megvehető | ||
| 82 500 000 HUF | ||
Ingatlan adatai
- Eladó vagy kiadó:Eladó
- Település:Vácrátót
- Kategória:Ház
- Alkategória:Ikerház
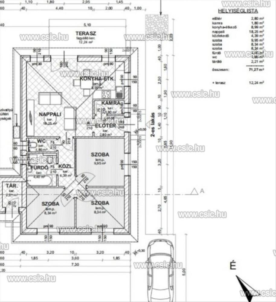
- Alapterület:79 m2
- Telekterület:750 m2
- Csere is:Nem
- Hirdető:Cég
- Élő videón megtekinthető:Nem
- Építés éve:2025
- Szobaszám:4
- Állapot:Új építésű
- Hány szintes az ingatlan:nincs megadva
- Tetőtér:nincs megadva
- Komfortosság:Összkomfortos
- Parkolási lehetőség:Beállóban
- Fűtés:nincs megadva
- Bútorozottság:nincs megadva
- Fényviszony:nincs megadva
- Tájolás:nincs megadva
- Kilátás:nincs megadva
- Internet:nincs megadva
- Akadálymentesített:nincs megadva
- Energiatanúsítvány:nincs megadva
- Villany:Van
- Víz:Van
- Gáz:Van
- Csatorna:Van
- Üzenetküldés
- Hívás


Hitel ajánlat
Ingatlan hirdetés leírása
ELADÓ HÁZ VÁCRÁTÓT ÚJÉPÍTÉSŰ
Egyszintes tárólóknál érintkező ház VÁCRÁTÓTON!BELSŐ elrendezése még igény szerint VÁLTOZTATHATÓ!
HŐSZIVATTYÚS FŰTÉS!
3%-Os start plusz - CS. O. K+
Vácrátóton a Szent István lakóparkban épülő, földszintes nappali + 3 hálószobás, csak tárólóknál érintkező házat kínálunk eladásra 750 nm TELKEN! !
Az ikerház fél alapterülete 79 nm, 1+3szobás, kert és teraszkapcsolatos 28 nm amerikai konyhás nappalival, három világos hálószobával, egy kádas fürdőszobával, külön wc- vel, előszobával, közlekedővel egy 2, 21 nm tárólóval és egy 12. 24 Nm terasszal rendelkezik
- Modern külső megjelenés
- Magas műszaki tartalom épül 30-as téglából +
- 12 dryvit szigeteléssel.
- Hőszivattyús, fűtés padlófűtéssel.
- Napelem – előkészítés (igény szerint )
- Műanyag gondozásmentes 3 rétegű nyílászárók
- Biztonsági bejárati ajtó
- Riasztó előkészítés
- Gépkocsibeálló
- Kaputelefon
- Padlásfeljáró
Várható átadás: 2026 nyara
Ha ingatlan vásárláshoz még el kell adnia ingatlanát, családi ingatlannál kedvezményesen vállaljuk annak értékesítését!
Ha vásárláshoz hitelre van szüksége, hitel ügyintézőnk ingyenesen segít Önnek megtalálni a piacon fellelhető legkedvezőbb hitelkonstrukciót.
Várom megtisztelő hívását a hét minden napján! FIX 3% lakáshitelre megvehető

