Eladó új építésű ház Vácrátót
| Kedvencbe | Megosztás | Árfigyelő |
| FIX 3% lakáshitelre megvehető | ||
| 82 500 000 HUF | ||
Ingatlan adatai
- Eladó vagy kiadó:Eladó
- Település:Vácrátót
- Kategória:Ház
- Alkategória:Ikerház
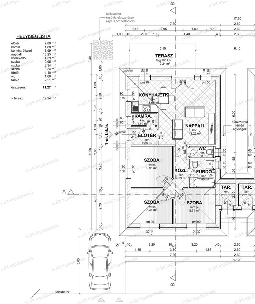
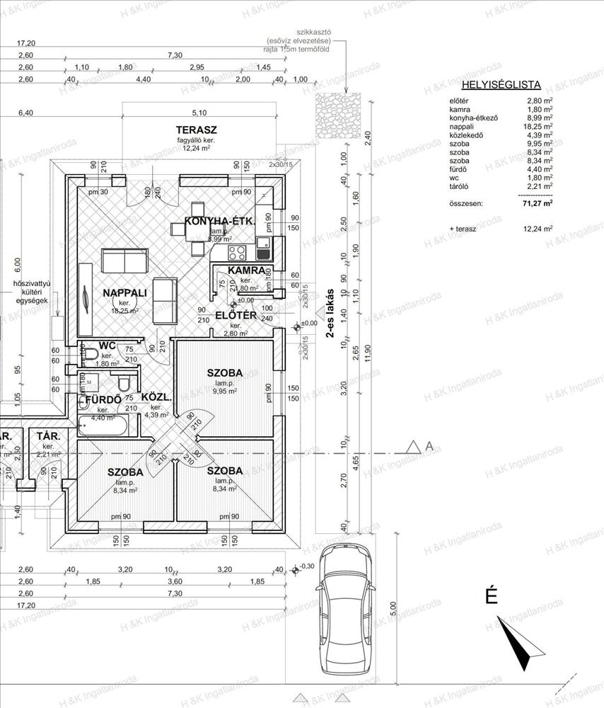
- Alapterület:78 m2
- Telekterület:413 m2
- Csere is:Nem
- Hirdető:Cég
- Élő videón megtekinthető:Nem
- Építés éve:2026
- Szobaszám:4
- Állapot:Új építésű
- Hány szintes az ingatlan:nincs megadva
- Tetőtér:nincs megadva
- Komfortosság:nincs megadva
- Pince:Nincs
- Parkolási lehetőség:nincs megadva
- Fűtés:nincs megadva
- Bútorozottság:Bútorozatlan
- Fényviszony:nincs megadva
- Tájolás:nincs megadva
- Kilátás:nincs megadva
- Internet:nincs megadva
- Akadálymentesített:nincs megadva
- Energiatanúsítvány:nincs megadva
- Villany:Van
- Víz:Van
- Gáz:nincs megadva
- Csatorna:Van
- Üzenetküldés
- Hívás


Hitel ajánlat
Ingatlan hirdetés leírása
4641: ÚJ ÉPÍTÉSŰ, ENERGIATAKARÉKOS, csak a tárolókkal érintkez...
Új építésű, energiatakarékos, csak a tárolókkal érintkező ikerház mindkét fele eladó Vácrátóton!CÉGES építkezés, a 2024-től aktuális állami támogatások valamint kedvezményes, kamattámogatott hitelek felvehetőek – akár a 3%-os otthon start hitel, CSOK plus, babaváró is igényelhető, az ügyintézésben díjmentesen segítünk!
Az építő munkájára jellemző a megbízhatóság és igényesség, leinformálható, referencia házai megtekinthetők.
A belső kialakítás jelenleg még a vevő igényei szerint módosítható!
A lakások nettó területe 71, 27 nm + terasz, amerikai konyhás nappali + 3 szobás, zárt gépkocsi beállóval, 413 nm-es telekrészekkel.
A ház a mai kor igényeinek megfelelően, minőségi anyagokból energiatakarékos technológiával készül.
Rövid műszaki tartalom: a főfalak 30-as Porotherm téglából, 12 cm-es hőszigeteléssel épülnek, beton födémmel. a tető antracit színű beton cserépfedést kap.
3 Rétegű, hőszigetelt üvegezésű, fehér színű nyílászárók, melyek igény esetén – értékegyeztetéssel – redőnnyel, szúnyoghálóval felszerelhetők.
A lakások fűtése és meleg víz ellátása hőszivattyúval történik, padlófűtéses hő leadással.
A nappaliban klíma is elhelyezésre kerül.
Az ingatlan kulcsrakész állapotban kerül átadásra, konyhabútor nélkül.
Belső nyílászárók és a burkolatok választhatók, a belső műszaki tartalomban megjelölt összegig a vételár részét képezik.
A képek látványtervek, melyek a lehetséges kialakítást és hangulatot szemléltetik. a tényleges megvalósítás az alaprajz és műszaki tartalom szerint történik, az ingatlan a valóságban bútorozatlan.
Ára: 82. 500. 000. - Ft/lakás
Azonosító: 4641 FIX 3% lakáshitelre megvehető

