Eladó új építésű ház - Vasad (15332197)
ELADÓ INGATLANOK
KIADÓ INGATLANOK
CSERE INGATLANOK
KÜLFÖLDI INGATLANOK
RÉSZLETES KERESÉS
INGATLAN HÍREK
HIRDETÉS FELADÁS
BELÉPÉS
REGISZTRÁCIÓ

Ingatlan adatai

  • Eladó vagy kiadó:Eladó
  • Település:Vasad
  • Kategória:Ház
  • Alkategória:Ikerház
  • Alapterület:89 m2
  • Telekterület:500 m2
  • Csere is:Nem
  • Hirdető:Cég
  • Élő videón megtekinthető:Nem
  • Építés éve:2026
  • Szobaszám:4
  • Állapot:Új építésű
  • Hány szintes az ingatlan:Földszintes
  • Tetőtér:nincs megadva
  • Komfortosság:nincs megadva
  • Pince:nincs megadva
  • Parkolási lehetőség:nincs megadva
  • Fűtés:Hőszivattyús
  • Bútorozottság:nincs megadva
  • Fényviszony:Napfényes
  • Tájolás:DK
  • Kilátás:nincs megadva
  • Internet:nincs megadva
  • Klíma:nincs megadva
  • Akadálymentesített:nincs megadva
  • Energiatanúsítvány:nincs megadva
  • Villany:nincs megadva
  • Víz:nincs megadva
  • Gáz:nincs megadva
  • Csatorna:nincs megadva
  • Kapcsolatfelvétel
Rávai Dominika
Rávai Dominika
+36-(70)-322-9090
Mondd meg a hirdetőnek, hogy a megveszLAK-on találtad a hirdetést.
Referencia szám: HZ069435
Érdekel kedvezményes lakáshitel ajánlat is
Az ASZF-et és az Adatkezelési tájékoztatót elfogadom

Hitel ajánlatok

 

Ingatlan hirdetés leírása

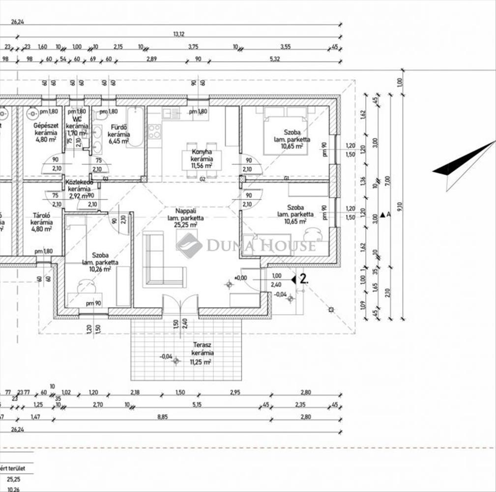
Eladó ház, Vasad, Eladó új építésű ház - Vasad


Új építésű ikerházfél vasadon saját telekkel, modern műszaki TARTALOMMALVasad dinamikusan fejlődő, új építésű részén kínálunk megvételre egy nettó 89 m²-es, nappali + 3 hálószobás ikerházfelet. Az ingatlan praktikus elrendezésű, világos terekkel és jól kihasználható helyiségekkel rendelkezik. Tágas, amerikai konyhás nappali3 külön nyíló hálószobaFürdőszobaKülön WCTárolóKülön gépészeti helyiségSaját, kb. 700 M²-es privát telek! ! Az ikerházfelek teljesen elszeparáltak, csak a tárolóknál kapcsolódnak, így nincs közös lakótéri fal. a két ingatlan külön kerítéssel leválasztva épül, így valóban önálló otthon érzetét nyújtja. Az ingatlanhoz saját, murvával tömörített gépkocsi-beálló tartozik. Műszaki tartalom:Hőszivattyús fűtési rendszerPadlófűtés a helyiségekbenFürdőszobában törölközőszárítós radiátorSplit klíma30 cm Porotherm főfalazat, rajta 15 cm grafitos hőszigetelés10 cm válaszfalakHagyományos fa tetőszerkezet, cserépfedéssel (kakaóbarna)Horganyzott bádogos szerkezetek, ereszcsatornák3 rétegű, hőszigetelt üvegezésű műanyag nyílászárókVálasztható burkolatok és belső elemek:A vételár az alábbi értékhatárig tartalmazza a burkolatokatHidegburkolat: 5. 500 Ft/m²-igMelegburkolat: 6. 000 Ft/m²-igBeltéri ajtók: 70. 000 Ft/db-igÍgy új otthonát részben még saját ízlésére formálhatja. Ne maradjon le róla! Keressen bizalommal, akár hétvégén is! Várható átadás: 2027 első negyedév. Amennyiben hitelre lenne szüksége, kiváló, szakmailag felkészült kollégánkkal a Credipasstól ingyenes és bankfüggetlen szaktanácsadás keretén belül biztosan megtalálják a lehető legkedvezőbb, személyre szabott konstrukciót. További kérdés esetén állok szíves rendelkezésükre hétvégén is, a megadott elérhetőségek bármelyikén.
Érd. : Rávai Dominika 06-70-322-9090

Referencia szám: hz069435 FIX 3% lakáshitelre megvehető

Tetszett ez az eladó Vasadi új építésű 4 szobás ikerház? Hívd fel a hirdetőt most, és tudj meg mindent erről az eladó ikerházról! Ha gondolod nézelődj tovább az eladó ház Vasad oldal hirdetései között. Ennek az eladó háznak az ára 74900000 Ft és mivel az alapterülete 89 négyzetméter, ezért az átlagos négyzetméterára 841573 HUF/m2.

Az eladó házak menüpontban további hirdetések között is böngészhetsz. Ha van kedved, akkor böngészhetsz a Rávai Dominika összes hirdetése között, vagy akár a/az Duna House Dabas összes hirdetése között is.

 
 
© megveszLAK.hu - Az egyszerűen jó ingatlan hirdetési oldal