- >>
- eladó ingatlanok
- >>
- eladó ház
- >>
- eladó ház Vecsés
- >>
Eladó új építésű ház - Vecsés
| | |||
| Kedvencnek jelölöm | Elküldöm emailben | Megosztás | Szavazás |
| FIX 3% lakáshitelre megvehető | |||
| 140 000 000 HUF | |||
Ingatlan adatai
- Eladó vagy kiadó:Eladó
- Település:Vecsés
- Kategória:Ház
- Alkategória:Ikerház
- Alapterület:149 m2
- Telekterület:505 m2
- Csere is:Nem
- Hirdető:Cég
- Élő videón megtekinthető:Nem
- Építés éve:2025
- Szobaszám:5
- Állapot:Új építésű
- Hány szintes az ingatlan:Földszintes
- Tetőtér:nincs megadva
- Komfortosság:nincs megadva
- Parkolási lehetőség:nincs megadva
- Fűtés:Hőszivattyús
- Bútorozottság:nincs megadva
- Fényviszony:Napfényes
- Tájolás:DNY
- Kilátás:nincs megadva
- Internet:nincs megadva
- Akadálymentesített:nincs megadva
- Energiatanúsítvány:nincs megadva
- Villany:nincs megadva
- Víz:nincs megadva
- Gáz:nincs megadva
- Csatorna:nincs megadva
- Üzenetküldés
- Hívás

Szabó-Sári Boglárka
Mondd meg a hirdetőnek, hogy a megveszLAK-on találtad a hirdetést.
Referencia szám: HZ016595

Ingatlan hirdetés leírása
Eladó ház, Vecsés, Eladó új építésű ház - Vecsés
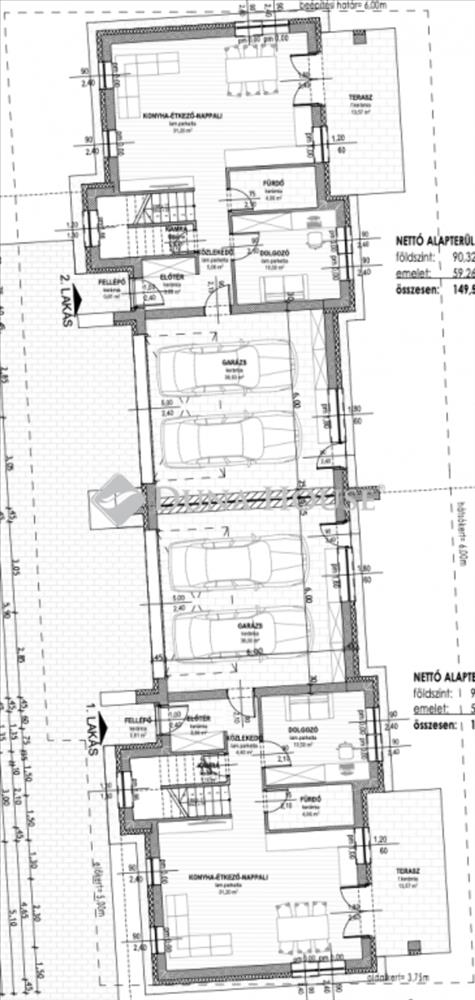
Vecsés legmodernebb fiatalos, családias részénVecsésen modern környezetben eladó új építésű családi házak. a kivitelező sok éves múlttal és rengeteg elégedett ügyféllel rendelkezik, referenciák akár itt a lakóparkban is megtekinthetőek. Az ikerház mindkét feléhez egy kétállásos garázs tartozik (36nm), a két ingatlan kizárólag itt érintkezik! Nappali+4hálószoba+gardrób található az otthokban melyből egy szülőihálószobaként funkcionál, mely 16, 10nm. a földszinten van egy nagy 13. 57 Nm-es részben fedett terasz, az emeleten pedig egy 6, 12nm-es erkély mely szintén a szülői hálószobához tartozik. Az otthonok 149, 58 négyzetméteresek mellyekhez saját, privát önálló 505 négyzetméter kertrész tartozik. Műszaki adatok:-30as Prototherm tégla falazat-15cm-es homlokzati szigetelés-18-cm-es szigetelés az aljzat felől-8cm-es szigetelés a födém felől-3 rétegű műanyag nyílászárók kívülről antracit belülről fehér színűek-elektromos garázskapu antracit színnel-Hőszivattyús fűtés/hűtés (fan coil)-2 fürdőszoba-mosókonyha-elektromos redőny-riasztó és kaputelefon kiállás-térkövezett autóbeállóBurkolatok/beltéri ajtók/szaniterek még választhatóak. a lakópark teljesen új modern környezet, játszótérrel, fákkal. Közlekedést tekintve autóval a Gyorsforgalmi út, Üllői út, Gyömrői út az M0ás és a 4-es út 3perc alatt megközelíthető. Tömegközlekedés 3perc sétára Volánbusz Kőbánya Kispest vasútállomásig közlekedik, 10perc sétára Vecsési vonatállomás, melyről a Nyugati pályaudvarig közlekednek a vonatok. Felkeltette érdeklődését keressen bizalommal a hét bármely napján! Átadás: 2026. IV. Negyedév.Hívjon bizalommal, hétvégén is - +3620 4066872
Referencia szám: hz016595 FIX 3% lakáshitelre megvehető


