Eladó új építésű ház - Vecsés
- INGYENES HIRDETÉS FELADÁS
Ingatlan adatai
- Eladó vagy kiadó:Eladó
- Település:Vecsés
- Kategória:Ház
- Alkategória:Ikerház
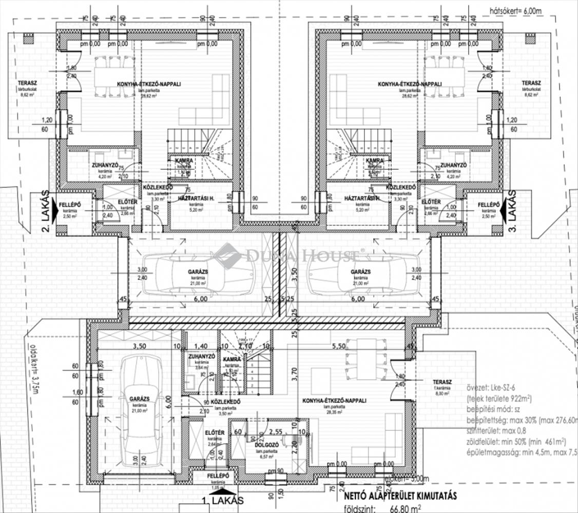
- Alapterület:126 m2
- Telekterület:307 m2
- Csere is:Nem
- Hirdető:Cég
- Élő videón megtekinthető:Nem
- Építés éve:2025
- Szobaszám:4 + 1 fél
- Állapot:Új építésű
- Hány szintes az ingatlan:Földszintes
- Tetőtér:nincs megadva
- Komfortosság:nincs megadva
- Pince:nincs megadva
- Parkolási lehetőség:nincs megadva
- Fűtés:Hőszivattyús
- Bútorozottság:nincs megadva
- Fényviszony:Napfényes
- Tájolás:DNY
- Kilátás:nincs megadva
- Internet:nincs megadva
- Klíma:nincs megadva
- Akadálymentesített:nincs megadva
- Energiatanúsítvány:A
- Villany:nincs megadva
- Víz:nincs megadva
- Gáz:nincs megadva
- Csatorna:nincs megadva
- Kapcsolatfelvétel

Molnár Nikoletta
+36-(30)-856-3188
Mondd meg a hirdetőnek, hogy a megveszLAK-on találtad a hirdetést.
Referencia szám: HZ097995
Ingatlan hirdetés leírása
Eladó ház, Vecsés, Eladó új építésű ház - Vecsés
Vecsés legmodernebb fiatalos, családias részénVecsésen modern környezetben eladó új építésű családi házak.
A kivitelező sok éves múlttal és rengeteg elégedett ügyféllel rendelkezik, referenciák akár itt a lakóparkban is megtekinthetőek. 1-Es ház127 négyzetméter hasznos lakótérrel rendelkezik, mely egy 307 négyzetméteres telken fekszik. a földszinten a nappaliból egy 8 négyzetméteres teraszon keresztül juthatunk ki a saját privát kertünkbe, továbbá az emeleten egy 8, 19 négyzetméteres tetőterasz is tartozik hozzá.
Nappali+4 hálószoba+ gardrób, 21nm garázs, szülőiháló. 22 Méter saját utcafront! 2-Es ház117, 03 négyzetméter hasznos lakótérrel rendelkezik, mely egy 307 négyzetméteres telken fekszik. a földszinten a nappaliból egy 8, 62 négyzetméteres teraszon keresztül juthatunk ki a saját privát kertünkbe, továbbá az emeleten egy 6, 20 négyzetméteres erkély is tartozik hozzá.
Nappali+3hálószoba+gardrób, 21nm garázs, szülőiháló. 3-As ház117, 03 négyzetméter hasznos lakótérrel rendelkezik, mely egy 307 négyzetméteres telken fekszik. a földszinten a nappaliból egy 8, 62 négyzetméteres teraszon keresztül juthatunk ki a saját privát kertünkbe, továbbá az emeleten egy 6, 20 négyzetméteres erkély is tartozik hozzá. Nappali+3hálószoba+gardrób, 21nm garázs, szülői háló. Műszaki adatok:-30as Prototherm tégla falazat-15cm-es homlokzati szigetelés-18-cm-es szigetelés az aljzat felől-8cm-es szigetelés a födém felől-3 rétegű műanyag nyílászárók kívülről antracit belülről fehér színűek-elektromos garázskapu antracit színnel-Hőszivattyús fűtés/hűtés (fan coil)-2 fürdőszoba-mosókonyha-riasztó és kaputelefon kiállás-térkövezett autóbeállóBurkolatok/beltéri ajtók/szaniterek még választhatóak.
A lakópark teljesen új modern környezet, játszótérrel, fákkal. Közlekedést tekintve autóval a Gyorsforgalmi út, Üllői út, Gyömrői út az M0ás és a 4-es út 3perc alatt megközelíthető.
Tömegközlekedés 3perc sétára Volánbusz Kőbánya Kispest vasútállomásig közlekedik, 10perc sétára Vecsési vonatállomás, melyről a Nyugati pályaudvarig közlekednek a vonatok.
Felkeltette érdeklődését keressen bizalommal a hét bármely napján! Átadás: 2026. Iv. Negyedév
Referencia szám: hz097995-ml FIX 3% lakáshitelre megvehető


