Eladó új építésű ház - Vecsés
- INGYENES HIRDETÉS FELADÁS
Ingatlan adatai
- Eladó vagy kiadó:Eladó
- Település:Vecsés
- Kategória:Ház
- Alkategória:Ikerház
- Alapterület:117 m2
- Telekterület:307 m2
- Csere is:Nem
- Hirdető:Cég
- Élő videón megtekinthető:Nem
- Építés éve:2025
- Szobaszám:4
- Állapot:Új építésű
- Hány szintes az ingatlan:Földszintes
- Tetőtér:nincs megadva
- Komfortosság:nincs megadva
- Pince:nincs megadva
- Parkolási lehetőség:Garázsban
- Fűtés:Hőszivattyús
- Bútorozottság:nincs megadva
- Fényviszony:Napfényes
- Tájolás:DNY
- Kilátás:nincs megadva
- Internet:nincs megadva
- Klíma:Van
- Akadálymentesített:nincs megadva
- Energiatanúsítvány:A+
- Villany:Van
- Víz:Van
- Gáz:nincs megadva
- Csatorna:Van
- Kapcsolatfelvétel

Zöldi Norbert
+36-(70)-945-0148
Mondd meg a hirdetőnek, hogy a megveszLAK-on találtad a hirdetést.
Referencia szám: HZ051663
Ingatlan hirdetés leírása
Eladó ház, Vecsés, Eladó új építésű ház - Vecsés
Vecsés legmodernebb fiatalos, családias részén
Vecsésen modern környezetben eladó új építésű családi házak.
A kivitelező sok éves múlttal és rengeteg elégedett ügyféllel rendelkezik, referenciák akár itt a lakóparkban is megtekinthetőek.
1-Es ház:
127 négyzetméter hasznos lakótérrel rendelkezik, mely egy 307 négyzetméteres telken fekszik. a földszinten a nappaliból egy 8 négyzetméteres teraszon keresztül juthatunk ki a saját privát kertünkbe, továbbá az emeleten egy 8, 19 négyzetméteres tetőterasz is tartozik hozzá.
Nappali + 4 hálószoba + gardrób, 21nm garázs, szülőiháló.
22 Méter saját utcafront!
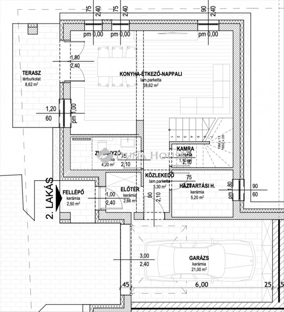
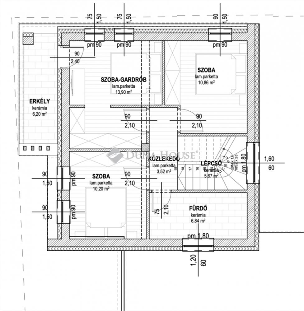
2-Es ház
117, 03 négyzetméter hasznos lakótérrel rendelkezik, mely egy 307 négyzetméteres telken fekszik. a földszinten a nappaliból egy 8, 62 négyzetméteres teraszon keresztül juthatunk ki a saját privát kertünkbe, továbbá az emeleten egy 6, 20 négyzetméteres erkély is tartozik hozzá.
Nappali + 3 hálószoba + gardrób, 21 nm garázs, szülőiháló.
3-As ház.
117, 03 Négyzetméter hasznos lakótérrel rendelkezik, mely egy 307 négyzetméteres telken fekszik. a földszinten a nappaliból egy 8, 62 négyzetméteres teraszon keresztül juthatunk ki a saját privát kertünkbe, továbbá az emeleten egy 6, 20 négyzetméteres erkély is tartozik hozzá.
Nappali + 3 hálószoba + gardrób, 21nm garázs, szülői háló.
Műszaki adatok:
- 30-as Prototherm tégla falazat
- 15 cm-es homlokzati szigetelés
- 18 cm-es szigetelés az aljzat felől
- 8 cm-es szigetelés a födém felől
- 3 rétegű műanyag nyílászárók kívülről antracit belülről fehér színűek
- elektromos garázskapu antracit színnel
- Hőszivattyús fűtés/hűtés (fan coil)
- 2 fürdőszoba
- mosókonyha
- riasztó és kaputelefon kiállás
- térkövezett autóbeálló
Burkolatok/beltéri ajtók/szaniterek még választhatóak.
A lakópark teljesen új modern környezet, játszótérrel, fákkal. Közlekedést tekintve autóval a Gyorsforgalmi út, Üllői út, Gyömrői út az M0-ás és a 4-es út 3 perc alatt megközelíthető.
Tömegközlekedés 3 perc sétára Volánbusz Kőbánya Kispest vasútállomásig közlekedik, 10 perc sétára Vecsési vonatállomás, melyről a Nyugati pályaudvarig közlekednek a vonatok.
Felkeltette érdeklődését keressen bizalommal a hét bármely napján!
Átadás: 2026. Iv. Negyedév
Zöldi Norbert +36709450148
Referencia szám: hz051663 FIX 3% lakáshitelre megvehető


