- >>
- eladó ingatlanok
- >>
- eladó ház
- >>
- eladó ház Veresegyház
- >>
Eladó új építésű ház - Veresegyház
| | |||
| Kedvencnek jelölöm | Elküldöm emailben | Megosztás | Szavazás |
| FIX 3% lakáshitelre megvehető | |||
| 146 800 000 HUF | |||
Ingatlan adatai
- Eladó vagy kiadó:Eladó
- Település:Veresegyház
- Kategória:Ház
- Alkategória:Ikerház
- Alapterület:118 m2
- Telekterület:570 m2
- Csere is:Nem
- Hirdető:Cég
- Élő videón megtekinthető:Nem
- Építés éve:2025
- Szobaszám:5
- Állapot:Új építésű
- Hány szintes az ingatlan:Földszintes
- Tetőtér:nincs megadva
- Komfortosság:nincs megadva
- Parkolási lehetőség:nincs megadva
- Fűtés:Hőszivattyús
- Bútorozottság:nincs megadva
- Fényviszony:Napfényes
- Tájolás:DNY
- Kilátás:nincs megadva
- Internet:nincs megadva
- Akadálymentesített:nincs megadva
- Energiatanúsítvány:nincs megadva
- Villany:nincs megadva
- Víz:nincs megadva
- Gáz:nincs megadva
- Csatorna:nincs megadva
- Üzenetküldés
- Hívás

Miczán-Magyar Georgina
Mondd meg a hirdetőnek, hogy a megveszLAK-on találtad a hirdetést.
Referencia szám: HZ094769

Hitel ajánlat
Ingatlan hirdetés leírása
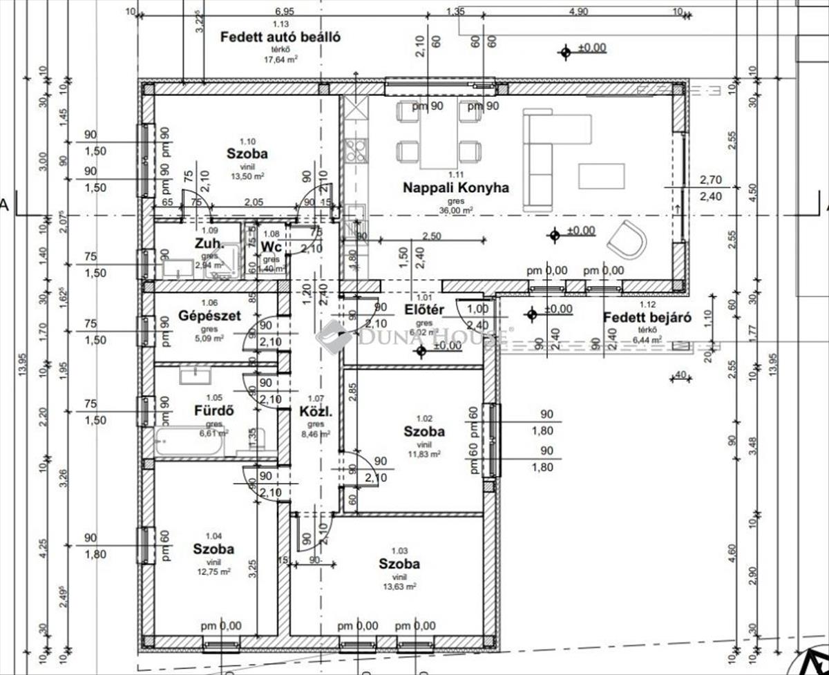
Eladó ház, Veresegyház
Veresegyház, Hegyek városrészben 118, 23 m2 hasznos alapterületű, 4 szoba + nappalis ikerházfél, amely 30-60 napon belül költözhetőAz ingatlanról:
- Nem érnek össze a házak! a fedett gépkocsibeálló találkozik csupán, így jól elszeparálható!
- 4 Szoba (11, 83; 13, 63; 12, 75, 13, 50) a szülői hálóhoz saját zuhanyzós fürdőszoba tartozik!
- Nappali, konyha egyben 36 m2
- Fürdőszoba (kádas) közlekedő, gépészeti helyiség, külön wc,
Műszaki tartalom:
- Schüco 3 rétegű nyílászárók és hatalmas csúsztatható teraszajtó, elektromos alumínium redőny aranytölgy színben.
- Porotherm 30 x-therm rapid klímatégla + 10cm grafitos szigetelés.
- 10Kw-os hőszivattyű sinclair yukon all in one, padlófűtéssel, kedvezményes kw/h díjelszámolással + 190l hmv kombi tartály.
- Hővisszanyerős szellőzőrendszer a nappaliban.
- Klíma kiépítés minden szobában
- Prémium alumínium ereszcsatornák.
- Terrán Zenit Max Elegant tetőcserép
- Esővíz szikkasztó
- Beton födémmel és 280cm-es belmagassággal! !
- Padló szigetelése 12cm, lábazati szigetelés 10cm, tetőszigetelés 25cm. .
- Nyílászárók 240cm magasságúak.
- Riasztórendszer kiépítését is tartalmazza a vételár.
- 3X16 Amper nappali áram kiépítve
- H kedvezményezett óra kiépítve
- Telek 590 négyzetméter/Ház
Megtekintési szándékával kapcsolatban keressen a hét bármely napján. Ha nem tudom felvenni a telefont, visszahívom!
A Duna House teljes kínálatával kapcsolatban fordulhat hozzám. Teljeskörű hitelügyintézés, Energetikai Tanúsítvány, Értékbecslés egy helyen!
Referencia szám: hz094769 FIX 3% lakáshitelre megvehető

