Eladó újszerű állapotú ház - Zamárdi
- INGYENES HIRDETÉS FELADÁS
Ingatlan adatai
- Feladva:42 napja a megveszLAK-on
- Eladó vagy kiadó:Eladó
- Település:Zamárdi
- Kategória:Ház
- Alkategória:Ikerház
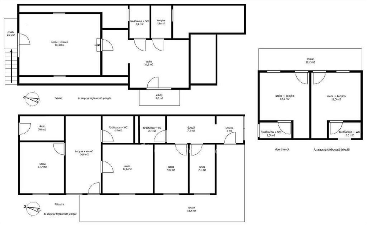
- Alapterület:193 m2
- Telekterület:530 m2
- Csere is:Nem
- Hirdető:Cég
- Élő videón megtekinthető:Nem
- Építés éve:1991
- Szobaszám:7 + 1 fél
- Állapot:Újszerű, kitűnő
- Hány szintes az ingatlan:2 szintes
- Tetőtér:nincs megadva
- Komfortosság:nincs megadva
- Pince:nincs megadva
- Parkolási lehetőség:Udvaron
- Fűtés:Gáz (konvektor)
- Bútorozottság:nincs megadva
- Fényviszony:Jó
- Tájolás:nincs megadva
- Kilátás:nincs megadva
- Internet:nincs megadva
- Klíma:nincs megadva
- Akadálymentesített:nincs megadva
- Energiatanúsítvány:nincs megadva
- Villany:nincs megadva
- Víz:nincs megadva
- Gáz:nincs megadva
- Csatorna:nincs megadva
- Kapcsolatfelvétel

Hitel ajánlatok
Ingatlan hirdetés leírása
Eladó Ház, Zamárdi, Eladó újszerű állapotú ház - Zamárdi
Balaton déli part, Zamárdi, vízpart közeli 193 m2 családi ház és apartman, 530 m2 telek eladó. Az ingatlan a közkedvelt település üdülőövezetében helyezkedik el, 300 méterre, gyalog 4 percre a Balaton-parttól, szabadstrandtól. Az évek óta jól működő apartmanház működtetése már erre a szezonra is átvehető, de kisebb átalakítással tökéletes családi házzá alakítható állandó lakhatásra vagy nyaralásra. Jelenlegi állapotában az egy, illetve kétszobás apartmanok összesen 20 fő befogadására alkalmasak. Az összesen 169 m2 lakóteret 49 m2 terasz és erkély növeli. Az áramellátást napelem biztosítja, így a havi rezsiköltség csak 8 ezer Ft. Az egyes lakrészek különböző komfortfokozattal rendelkeznek, van köztük gázkonvektorral fűtött és klimatizált is. a zárt, térköves udvaron 5 autó elhelyezésére van lehetőség, a füves udvarrész pedig tökéletes hely a pihenésre, családi és baráti összejövetelekre, a gyerekeknek játszótérre. Az ingatlan azonnal használatba vehető, nagycsaládoknak, több generációs családoknak, baráti társaságoknak, vagy befektetési céllal részben vagy egészben kiadásra, nyaraltatásra, üzleti vállalkozásra is kiválóan alkalmas. a szabadstrand mellett kikötő, éttermek, bolt, fagyizó, vasútállomás párszáz méteren belül elérhető, állandó lakhatáshoz pedig óvoda és iskola is biztosított. Ritka, egyedi lehetőség sokféle elképzelés, terv megvalósítására. Bővebb információért keressen telefonon! M326765
217000000 Ft
Referencia szám: m326765 Hitel.hu - Hasonlítsa össze a bankok lakáshitel ajánlatait
Tetszett ez az eladó Zamárdi újszerű állapotú 7 egész és 1 fél szobás ikerház? Hívd fel a hirdetőt most, és tudj meg mindent erről az eladó ikerházról! Ha gondolod nézelődj tovább az eladó ház Zamárdi oldal hirdetései között. Ennek az eladó háznak az ára 217000000 Ft és mivel az alapterülete 193 négyzetméter, ezért az átlagos négyzetméterára 1124352 HUF/m2.
Az eladó házak menüpontban további hirdetések között is böngészhetsz. Ha van kedved, akkor böngészhetsz a Vincze László György összes hirdetése között, vagy akár a/az OTPip Pécs Király utca 75 - OTP Ingatlanpont Iroda összes hirdetése között is.
További hirdetéseket találsz az eladó Balaton déli parti nyaralók között. Ha a teljes régió kínálata érdekel, nézd meg az eladó Balatoni nyaralók oldalt.

