Eladó új építésű ház - Zsámbék
- INGYENES HIRDETÉS FELADÁS
Ingatlan adatai
- Eladó vagy kiadó:Eladó
- Település:Zsámbék
- Kategória:Ház
- Alkategória:Ikerház
- Alapterület:104 m2
- Telekterület:502 m2
- Csere is:Nem
- Hirdető:Cég
- Élő videón megtekinthető:Nem
- Építés éve:2026
- Szobaszám:1
- Állapot:Új építésű
- Hány szintes az ingatlan:Földszintes
- Tetőtér:nincs megadva
- Komfortosság:nincs megadva
- Pince:nincs megadva
- Parkolási lehetőség:nincs megadva
- Fűtés:Hőszivattyús
- Bútorozottság:nincs megadva
- Fényviszony:Napfényes
- Tájolás:DK
- Kilátás:nincs megadva
- Internet:nincs megadva
- Klíma:nincs megadva
- Akadálymentesített:nincs megadva
- Energiatanúsítvány:nincs megadva
- Villany:nincs megadva
- Víz:nincs megadva
- Gáz:nincs megadva
- Csatorna:nincs megadva
- Kapcsolatfelvétel

Herkely Dominika Zsuzs...
+36-(30)-966-6538
Mondd meg a hirdetőnek, hogy a megveszLAK-on találtad a hirdetést.
Referencia szám: HZ049906
Hitel ajánlatok
Ingatlan hirdetés leírása
Eladó ház, Zsámbék, Eladó új építésű ház - Zsámbék
Hihetetlen ár-érték arány! !
Új építésű ikerházak induló áron, milliós m2 ár alatt, hőszivattyúval és mennyezet hűtés-fűtéssel, garázzsal! !
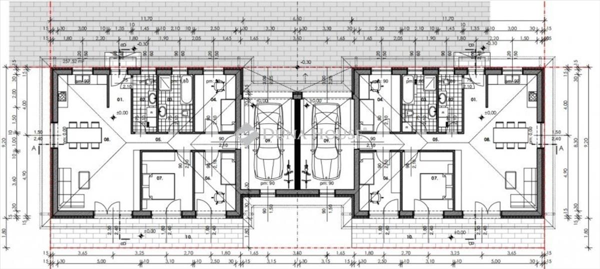
Zsámbék új építésű csendes részén, újonnan parcellázott telkeken kínálunk megvételre nagyon jó elosztású, egyszintes, Nappali+ 3 szobás, garázsos ikerházi lakásokat, a hozzájuk tartozó 430 m2-es telekkel.
Az ikerfeleket hangszigetelő téglafal, és a garázsok is szeparálják egymástól, minden a legújabb energetikai elvárásoknak megfelelően kerül kivitelezésre.
A porotherm téglából épülő házak minőségi nyílászárói 3 rétegű üveggel készülnek, a födém 30 cm, a homlokzat 15 cm szigetelést kap, és a legmagasabb minőségű Daikin hőszivattyú biztosítja majd a fűtést, melegvizet, ill. a mennyezet hűtés-fűtést is.
A burkolatokat a vevő választja ki, most még a belső kialakítás is némileg egyénre szabható. a műszaki tartalomról részletes felvilágosítást adunk.
Lehetőség van nappali+2 illetve nappali+3 szobás beosztásra, de igény szerint a garázs helyén egy 4. Hálószoba kialakítására is.
Olyan konstrukcióval szerződünk, hogy nem lesz illetékfizetési kötelezettsége a vevőnek, (ez 4 M Ft megtakarítást jelent! ).
Ha a vevő hitellel vásárolna, akkor építési hitellel épül, igénybe vehető a 3%-os Otthon Start hitel, illetve CSOK + is, melyhez ingyenes szolgáltatásunkkal, profi hiteltanácsadónk a legmegfelelőbb ajánlatot, és bankot fogja megtalálni Önnek.
Ha felkeltette érdeklődését, további felvilágosításra van szüksége, vagy megtekintené, hívjon bizalommal a hét bármely napján!
Ha nem érne el, visszahívom! FIX 3% lakáshitelre megvehető
Tetszett ez az eladó Zsámbéki új építésű 1 szobás ikerház? Hívd fel a hirdetőt most, és tudj meg mindent erről az eladó ikerházról! Ha gondolod nézelődj tovább az eladó ház Zsámbék oldal hirdetései között. Ennek az eladó háznak az ára 102000000 Ft és mivel az alapterülete 104 négyzetméter, ezért az átlagos négyzetméterára 980769 HUF/m2.
Az eladó házak menüpontban további hirdetések között is böngészhetsz. Ha van kedved, akkor böngészhetsz a Herkely Dominika Zsuzsanna összes hirdetése között, vagy akár a/az Duna House Dunaharaszti összes hirdetése között is.

