- >>
- eladó ingatlanok
- >>
- eladó ipari ingatlan
- >>
- eladó ipari ingatlan Felsőpakony
- >>
Eladó ipari ingatlan - Felsőpakony
| | |||
| Kedvencnek jelölöm | Elküldöm emailben | Megosztás | Szavazás |
| Kedvezményes lakáshitel ajánlatok | |||
| 770 000 000 HUF | |||
Ingatlan adatai
- Eladó vagy kiadó:Eladó
- Település:Felsőpakony
- Kategória:Ipari ingatlan
- Alkategória:Egyéb
- Alapterület:2700 m2
- Telekterület:5090 m2
- Csere is:Nem
- Hirdető:Cég
- Élő videón megtekinthető:Nem
- Hány szintes az ingatlan:nincs megadva
- Hányadik emeleti:nincs megadva
- Parkolási lehetőség:nincs megadva
- Energiatanúsítvány:nincs megadva
- Villany:nincs megadva
- Víz:nincs megadva
- Gáz:nincs megadva
- Csatorna:nincs megadva
- Üzenetküldés
- Hívás


Hitel ajánlat
Ingatlan hirdetés leírása
Eladó ipari csarnok Felsőpakonyon
Felsőpakonyon, az ipari parkban eladó 5090 m2-es ipari területen egy 2400 m2-es és egy 300 m2-es csarnok. (Gépesítve vagy a nélkül)Téglaépítésű, lemezborítású homlokzatfallal épült.
2001 Óta és jelenleg is bútorlap szabászati és raktározási célra használják. Igény szerint folytatható a mostani tevékenység, a faipari gépekkel együtt vételi megállapodással.
DE: egyéb tevékenységre is használható.
Besorolása: gksz – 1.
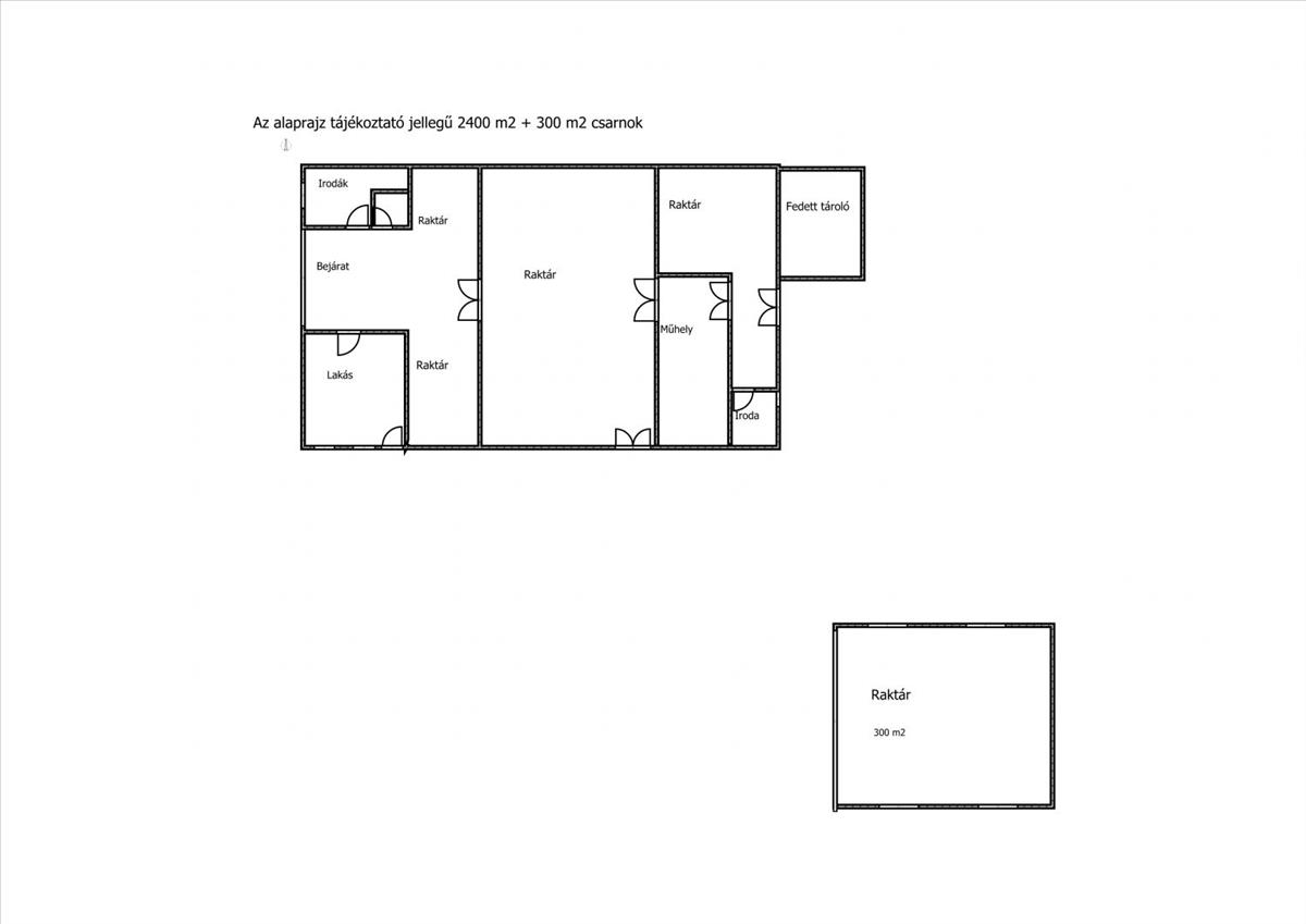
Az épület több részlegből (átvételi, előkészítési, üzemi, raktározási) áll.
Ezen kívül még megtalálható egy iroda helyiség, öltöző és egy 100 m2-es, galériázott, gyönyörűen berendezett lakás. Ez 2400 m2-t foglal el.
Mögötte fedett tároló látható.
A többi 300 m2-en különálló raktár helyezkedik el.
A csarnok fűtése egy vegyes tüzelésű kazánnal működtetett hőlégbefúvós rendszer.
A lakás külön központi fűtéssel, vízteres kandallóval, radiátor hő leadókkal rendelkezik.
Elosztása: amerikai konyhás nappali, fürdőszoba, hálószoba és a galéria.
A mellékelt alaprajzon az épületek, helyiségek felosztása jól látható!
Saját vízellátási rendszer van kiépítve és egy épített emésztő.
Az udvara aszfaltozott, épített betonelemes kerítéssel körbekerítve. a területre való bejutás elektromos nagykapun keresztül lehetséges. Az épület mellett egy fedett parkoló áll rendelkezésre, több autó számára.
A biztonságról épületen belül és kívül is kamerarendszer gondoskodik.
Az ipari park területére biztonsági sorompón keresztül lehet bejutni, 24 órás biztonsági szolgálat mellett.
Megközelíthetősége: az M5-ös, M0-s utaktól pár km-re végig aszfaltozott úton.
Tehermentes!
Bármi kérdés esetén keressen az elérhetőségeim bármelyikén!
(Hivatkozási szám: m102519) Hitel.hu - Hasonlítsa össze a bankok lakáshitel ajánlatait

