- >>
- eladó ingatlanok
- >>
- eladó ipari ingatlan
- >>
- eladó ipari ingatlan Győr
- >>
Eladó ipari ingatlan - Győr
| | |||
| Kedvencnek jelölöm | Elküldöm emailben | Megosztás | Szavazás |
| Kedvezményes lakáshitel ajánlatok | |||
| 639 000 000 HUF | |||
Ingatlan adatai
- Eladó vagy kiadó:Eladó
- Település:Győr
- Kategória:Ipari ingatlan
- Alkategória:Egyéb
- Alapterület:2845 m2
- Telekterület:6299 m2
- Csere is:Nem
- Hirdető:Cég
- Élő videón megtekinthető:Nem
- Építés éve:2011
- Hány szintes az ingatlan:nincs megadva
- Hányadik emeleti:nincs megadva
- Parkolási lehetőség:nincs megadva
- Energiatanúsítvány:nincs megadva
- Villany:nincs megadva
- Víz:nincs megadva
- Gáz:nincs megadva
- Csatorna:nincs megadva
- Üzenetküldés
- Hívás


Hitel ajánlat
Ingatlan hirdetés leírása
10 ÉV ALATTI MEGTÉRÜLÉS!!! GYŐRI IPARI PARKBAN MODERN, 2845 m2...
A Győri Ipari Park, jól megközelíthető részén, 6 299 m2-es teleken elhelyezkedő, 2012-ben épült, 2845 m2-es (2637 m2-es fűthető gyártó/raktár csarnok, 208 m2-es iroda/szociális felület), gyártó/raktár csarnok eladó. (Az ingatlan 980 m2-es része már bérbeadott a fennmaradó 1865m2-es részre előrehaladott egyeztetések folynak. )Ár: 639 000 000, -Ft+ÁFA
Érd. : 06-20/9-966-669
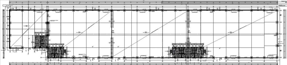
A 2012-ben épült épület négy egymással összefüggő részre tagolódik (286m2; 648m2; 780m2; 923m2). Mindegyik egységben iroda és szociális egység megtalálható. Így az ingatlan befektetési célú vásárlás esetén különböző méret igények kielégítésére rugalmasan alkalmas.
A tagolódása ellenére az épület egyben is, egy felhasználó igényeit is tökéletesen kielégíti, mivel a négy egység nagyméretű (4, 75m x 4, 5m) ipari szekcionált kapukkal egybe nyitható, amiken keresztül zavartalan a belső közlekedés.
Amennyiben nagyobb felületű iroda/szociális igény mutatkozik, ennek kielégítésére az épület 286m2-es fejépületében nyílik erre lehetőség. Jelenleg ez a terület is, mint az épület többi része műhely/raktár funkciót tölt be.
(A fotók közötti utolsó képen látható az eladásra kínált ingatlan közelében található 5. 000 m2-es, 50%-ban beépíthető építési telek. )
INGATLAN összefoglaló:
- Telekméret: 6. 299 m2
- Épület összterület: 2. 845 m2
- Gyártó/raktár csarnok: 2. 636 m2
- Iroda és szociális részek: 208 m2
TECHNIKAI információk:
- Padló: 20 cm vastag felület keményített acélhajbeton lemez
- Szerkezeti elemek: vasbeton oszlopok és gerendák
- Vasbeton lábazat
- Szendvicspanel falak 10 cm-es szigeteléssel
- Gipszkarton falak az irodákban, valamint a szociális helyiségekben
- Tető: szigetelt acél trapézlemez, bevilágító ablakokkal
- Hőszigetelt nyílászárók
- 4 db szintbeli dokkoló kapu (1 db 4, 75 m x 3, 75 m; 3db 4, 75 m x 4, 5 m)
RÉSZLETEK:
- Padló terhelhetősége: 5 tonna/m2
- Magasság
o 2. 560 m2-es terület tiszta magassága: 6, 5 m
o 286 m2-es terület tiszta magassága: 4 m (ebben a részben lehet igény szerint nagyobb iroda/szociális felületet kialakítani)
KÖZMŰ:
- Elektromos áram
- Víz (házi vízmű), vezetékes víz a telek előtt
- Saját szennyvíz kezelés (10m3-es zárt rendszer)
- Kiépített tűzi víz tározó
- Telekommunikáció
- Gáz az épületben nincs, de a telek előtt megtalálható
ELHELYEZKEDÉS:
- m1 autópálya: 6 km, (112-es és a 115-ös csatlakozás 6 km-re található)
- audi: 2 km
- Győr központ: 6 km
- Budapest: 116 km
- Bécs: 135 km
- Pozsony: 93 km
Az ingatlan a Győri Ipari Parkban, a város keleti oldalán, tömegközlekedéssel jól ellátott, súlykorlátozás nélkül megközelíthető részén található. Győr a hatodik legnagyobb magyar város közel 130. 000 Fős lakossággal. Az ipari park a térség ipari súlypontjaként több mint 200 hektáros területen ad otthont 100-nál is több cégnek. Az itt foglalkoztatottak száma meghaladja a 7. 000 Főt. Széles spektrumon helyezkedik el a jelen lévő gyártó cégek tevékenysége, melyekből az autóipar a kiemelkedő. a kategória legnagyobb és legfontosabb szereplője az audi.
Érd. : 06-20/9-966-669
Csörnyei Tamás Okleveles ingatlanszakértő / MSc in Real Estate ingatlan 4 you Kft.
For sale production or store hall, with offices in the Industrial Park of Győr.
Size of the site: 6. 299Sqm
Size of the whole building: 2. 845Sqm
Production hall or warehouse: 2. 636Sqm (heatable; clear height: 8m)
Admistration and social area: 208sqm
Number of gates: 4 pcs,
Size of the gattes: 3 pcs: 4, 75m x 4, 5m; 1 pcs: 4, 75m x 3, 75m
Floor load bearing capacity: 5t/sqm
Price: 639. 000. 000Huf+vat
Mobil: 00-36-20/9-966-669 (hivatkozási szám: m114887) Hitel.hu - Hasonlítsa össze a bankok lakáshitel ajánlatait

