- >>
- eladó ingatlanok
- >>
- eladó ipari ingatlan
- >>
- eladó ipari ingatlan Helvécia
- >>
Eladó ipari ingatlan - Helvécia
| | |||
| Kedvencnek jelölöm | Elküldöm emailben | Megosztás | Szavazás |
| Kedvezményes lakáshitel ajánlatok | |||
| 900 000 000 HUF | |||
Ingatlan adatai
- Eladó vagy kiadó:Eladó
- Település:Helvécia
- Kategória:Ipari ingatlan
- Alkategória:Egyéb
- Alapterület:3800 m2
- Telekterület:nincs megadva
- Csere is:Nem
- Hirdető:Cég
- Élő videón megtekinthető:Nem
- Építés éve:2020
- Hány szintes az ingatlan:nincs megadva
- Hányadik emeleti:nincs megadva
- Parkolási lehetőség:Udvaron
- Energiatanúsítvány:nincs megadva
- Villany:nincs megadva
- Víz:nincs megadva
- Gáz:nincs megadva
- Csatorna:nincs megadva
- Üzenetküldés
- Hívás

Berényiné Annus Krisztina
Mondd meg a hirdetőnek, hogy a megveszLAK-on találtad a hirdetést.
Referencia szám: M306182

Hitel ajánlat
Ingatlan hirdetés leírása
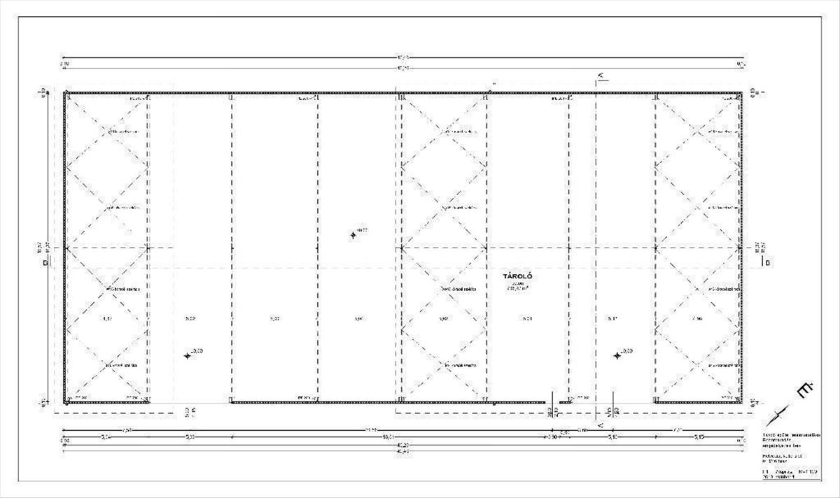
Eladó Üzem, Helvécia
Kecskemét-Helvécia dinamikusan fejlődő ipari övezetében eladásra kínálunk egy újépítésű, 3800 nm-es telephelyet, amely négy korszerű csarnok épületből áll. a telek mérete 17500 nm, melynek beépítettsége bővíthető. Az ingatlan kiváló elhelyezkedése és felszereltsége miatt ideális raktározási, logisztikai vagy ipari tevékenységre.Főbb jellemzők:
- összesen 3800 nm beépített terület (4 különálló csarnok épület)
- Hitelesített hídmérleg a pontos nyomon követéséhez
- 10 kw teljesítményű napelemrendszer a gazdaságos üzemeltetéshez
- Acélváz szerkezet, 12 cm vastag hőszigetelt fal- és tetőpanelek
- Belmagasság 7, 5 méter-ideális magasraktár használatra is
- irodai és szociális blokk hűtő-fűtő klímával.
- a telephelyhez térburkolattal kiépített parkoló is tartozik
Elhelyezkedés:
Kiváló megközelíthetőség: M5-ös autópálya, valamint a 44- es52-es 54-es és 441-es főutak közelsége biztosítja a gyors áruszállítást és elérhetőséget.
Az OTP Pénzügyi Pont segítségével rugalmas díjmentes hitel ügyintézéssel segítjük ügyfeleinket. Hívjon bizalommal!
Referencia szám: m306182-ml Hitel.hu - Hasonlítsa össze a bankok lakáshitel ajánlatait

