Eladó felújítandó ipari ingatlan - Szigetszentmiklós
- INGYENES HIRDETÉS FELADÁS
Ingatlan adatai
- Eladó vagy kiadó:Eladó
- Település:Szigetszentmiklós
- Kategória:Ipari ingatlan
- Alkategória:Egyéb
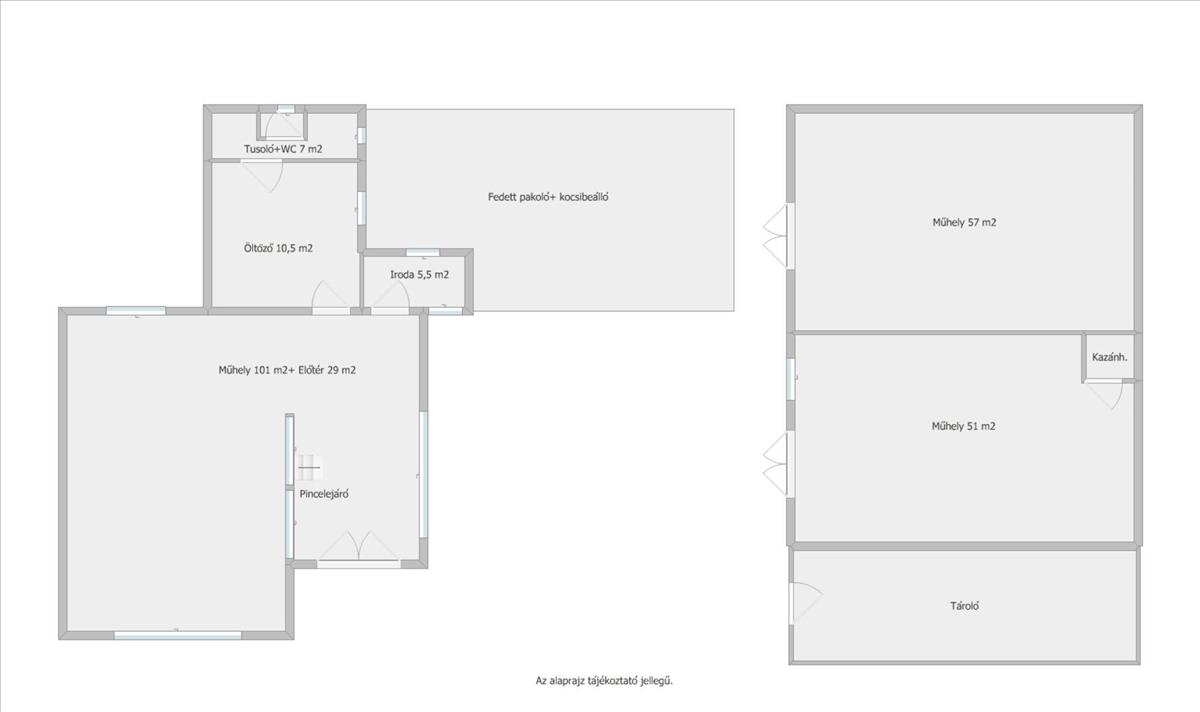
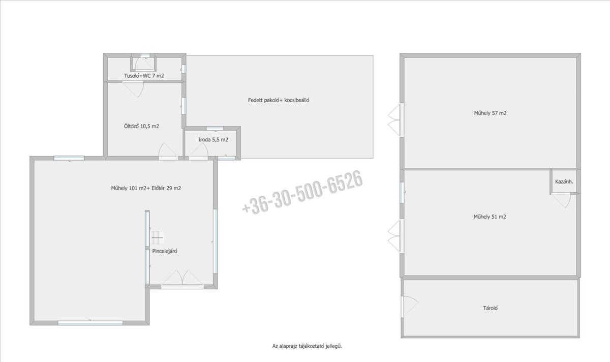
- Alapterület:261 m2
- Telekterület:7250 m2
- Csere is:Nem
- Hirdető:Cég
- Élő videón megtekinthető:Nem
- Építés éve:1996
- Hány szintes az ingatlan:nincs megadva
- Hányadik emeleti:nincs megadva
- Parkolási lehetőség:Beállóban
- Energiatanúsítvány:nincs megadva
- Villany:nincs megadva
- Víz:nincs megadva
- Gáz:nincs megadva
- Csatorna:nincs megadva
- Kapcsolatfelvétel

Pandur Nikolett
+36-(30)-500-6526
Mondd meg a hirdetőnek, hogy a megveszLAK-on találtad a hirdetést.
Hitel ajánlatok
Ingatlan hirdetés leírása
Eladó Egyéb kereskedelmi-, vagy ipari ingatlan, Szigetszentmik...
Eladó azonnali bevételt termelő asztalos műhely gépekkel, raktárakkal Szigetszentmiklós kertvárosi övezetében!
Irányár 84, 9 millió Ft!
Szigetszentmiklós nyugodt, kertvárosias részén kínálunk megvételre egy teljesen felszerelt asztalos műhelyt raktárakkal, irodával és kiszolgáló helyiségekkel.
Ez a sokoldalúan hasznosítható ipari-üzleti ingatlan Szigetszentmiklós egyik keresett, kertvárosias lakóövezetében helyezkedik el, ahol a családi házas környezet és a vállalkozásbarát infrastruktúra ritkán találkozik ilyen kedvező formában. Az ingatlan jelenlegi besorolása kivett asztalos műhely és udvar, amely az lke-7 övezeti szabályozásnak köszönhetően hosszú távon is komoly potenciált rejt magában.
A 725 m²-es belterületi telek rendezett, jól megközelíthető, további fedett pakoló résszel és fedett autóbeállóval rendelkezik, amely jelentősen megkönnyíti a mindennapi üzemszerű működést, az áruszállítást és a parkolást.
A telken található főépület összesen 153 m² alapterületű, földszintes kialakítású, tégla falazattal épült. Az épület központi része a 101 m²-es műhely, amely ideális faipari, kézműves vagy egyéb termelő tevékenység folytatására. a műhelyhez előtér, külön iroda, öltöző, valamint fürdőszoba kapcsolódik, biztosítva a professzionális munkakörnyezetet. Az épület alatt pince található, amely további tárolási vagy technikai funkciót tölthet be.
A vételár tartalmazza az ott lévő Zimmerman márkájú gépeket is:
-abrikter (egyenletes gyalu)
-vastagsági gyalu
-kisebb és nagyobb körfűrész
-kisebb és nagyobb csiszológép
-hengercsiszoló
-marógép
-2 db esztergagép.
Az ingatlan összkomfortos, fűtéséről gázkazán gondoskodik radiátoros hőleadással, így a fenntartás egész évben kiszámítható. Az ipari áram a gépek zavartalan működését biztosítja.
A földszintes elrendezés nemcsak praktikus, hanem logisztikai szempontból is előnyös, legyen szó műhelymunkáról, raktározásról vagy bérbeadásról.
A főépület mellett két különálló raktárépület található, 57 m² és 51 m² alapterülettel. Kiemelten fontos előny, hogy az 51 m²-es raktár jelenleg is bérbe van adva, és a jelenlegi bérlő eladás után is szívesen folytatná a bérlést, amennyiben erre lehetőség nyílik. Ez azonnali, kiszámítható bevételt jelenthet az új tulajdonos számára, így az ingatlan befektetési célra is különösen vonzó.
Az lke-7 kertvárosias lakóövezeti besorolás további értéket ad az ingatlannak. a hatályos helyi építési szabályzat alapján – a pontos előírások figyelembevételével – a telken önálló családi ház, lakófunkcióval kombinált vállalkozás, iroda, műhely, illetve a lakókörnyezetet nem zavaró szolgáltató tevékenység is elhelyezhető. Ez a rugalmasság ideálissá teszi azok számára, akik vásárlásban, fejlesztésben vagy bérbeadásban gondolkodnak.
Az ingatlan elhelyezkedése és adottságai miatt eladásra, vásárlásra és bérbeadásra egyaránt keresett kategóriába tartozik.
A közelben elérhetők helyi és helyközi buszjáratok, amelyek gyors összeköttetést biztosítanak a városközponttal és Budapest irányába is. Autóval a főbb közlekedési útvonalak rövid időn belül elérhetők, így a napi munkavégzés és az áruszállítás is gördülékenyen megoldható.
Amennyiben személyesen is megtekintené keressen bizalommal a hét bármely napján! Hitel.hu - Hasonlítsa össze a bankok lakáshitel ajánlatait
Tetszett ez az eladó Szigetszentmiklósi felújítandó ipari ingatlan? Hívd fel a hirdetőt most, és tudj meg mindent erről az eladó ipari ingatlanról! Ha gondolod nézelődj tovább az eladó ipari ingatlan Szigetszentmiklós oldal hirdetései között.
Az eladó ipari ingatlanok menüpontban további hirdetések között is böngészhetsz. Ha van kedved, akkor böngészhetsz a Pandur Nikolett összes hirdetése között, vagy akár a/az CLD Home Invest Kft. összes hirdetése között is.

