Eladó jó állapotú ipari ingatlan - Tata
- INGYENES HIRDETÉS FELADÁS
Ingatlan adatai
- Eladó vagy kiadó:Eladó
- Település:Tata
- Kategória:Ipari ingatlan
- Alkategória:Egyéb
- Alapterület:662 m2
- Telekterület:2900 m2
- Csere is:Nem
- Hirdető:Cég
- Élő videón megtekinthető:Nem
- Hány szintes az ingatlan:nincs megadva
- Hányadik emeleti:nincs megadva
- Parkolási lehetőség:Nincs
- Energiatanúsítvány:nincs megadva
- Villany:nincs megadva
- Víz:nincs megadva
- Gáz:nincs megadva
- Csatorna:nincs megadva
- Kapcsolatfelvétel

Szabó Szilvia
+36-(70)-367-7636
Mondd meg a hirdetőnek, hogy a megveszLAK-on találtad a hirdetést.
Hitel ajánlatok
Ingatlan hirdetés leírása
Eladó Egyéb kereskedelmi-, vagy ipari ingatlan, Tata, 662nm, 6...
Tatától 3km-re, Baj központi részén (belterület) kínálunk eladásra egy többcélú tevékenységre alkalmas ipari/gazdasági ingatlant.
Megfelelő lehet raktározásra, ipari, logisztikai, irodai vagy akár szociális és turisztikai hasznosításra, apartmanszerű kialakítással.
Az ingatlan nagyon jól megközelíthető helyen található.
Az 1950-es években parancsnoki épületnek épült kétszintes (338 és 323nm ) épület felújítandó, tulajdonképpen szerkezet kész állapotúnak tekinthető, mégis a belső szakipari munkák elvégzése után kiváló lehetőséget biztosít egy nagy léptékű vállalkozás elindításához vagy bővítéséhez.
Az épület maga téglából épült fa nyílászárókkal, tágas belső kialakítással kényelmes lépcsőházzal.
2006-Ban az eredeti lapostető felújítása helyett egy teljesen új magastetőt kapott. Így ha nem lenne elelegendő a két meglévő szint, úgy az új fedélszintet is használhatják a bővítésre.
A közművek tekintetében, minden pár méterről könnyedén beköthető. Sőt az ingatlanhoz van egy már befizetett hálózat fejlesztés is. (2 Áramvételi lehetőséggel, 2 trafóállomással rendelkezik.
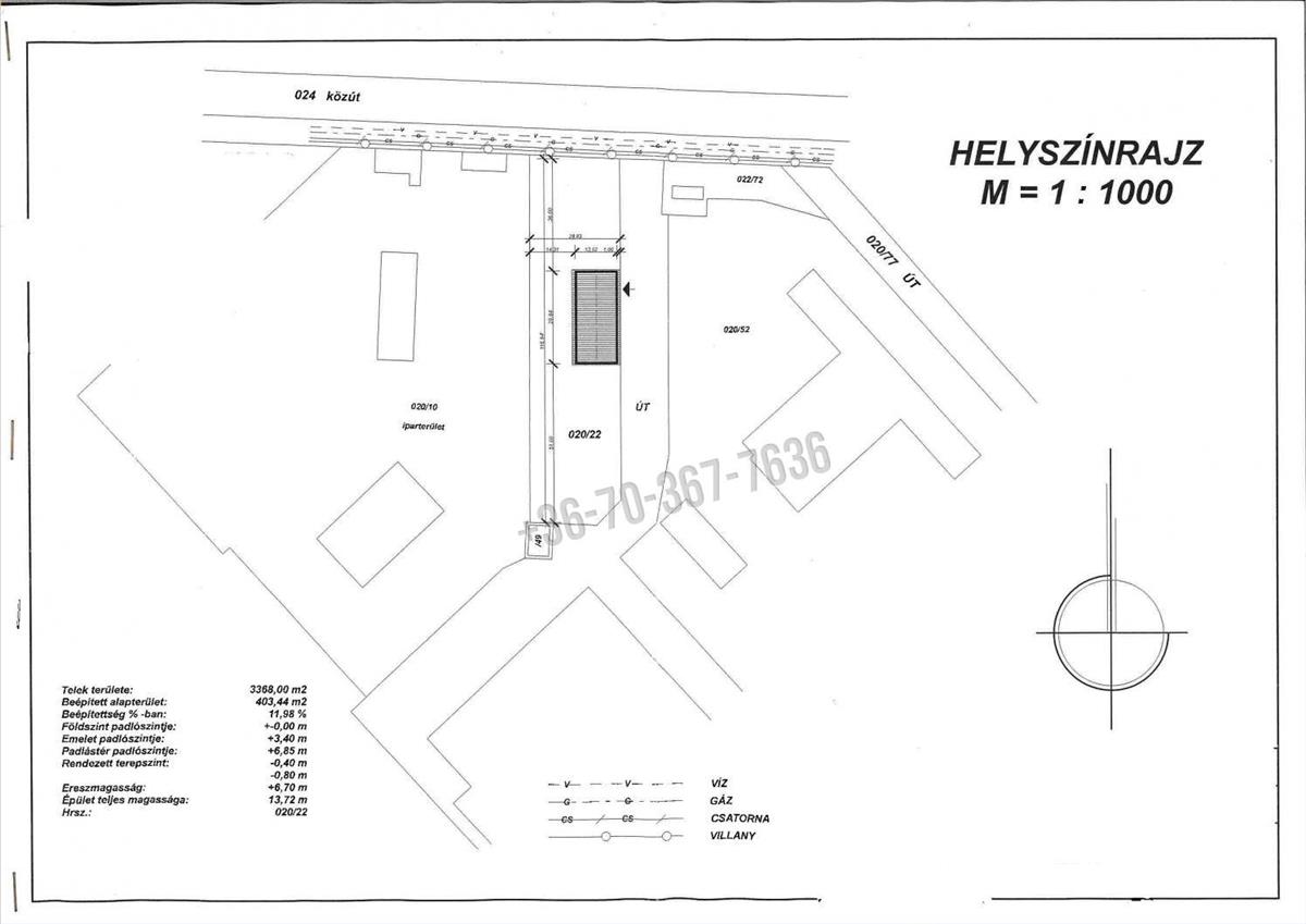
A hozzá tartozó telek területe 2900nm , mely szilárd útburkolaton közelíthető meg.
Műszaki adatok:
Alapozás: beton sávalap.
Teherhordó falak: 38 cm vtg. Kisméretű tömör téglából.
Válaszfalak: 15 cm vtg. Nagyméretű tömör téglából.
Födémszerkezet. 15 Cm vtg. Téglabetétes vb. Horcsikfödém, 22 cm magas „g” jelű vb. Gerendák között, salakfeltöltéssel.
Nyílászárók: kapcsolt gerébtokos ablakok és bejárati ajtó.
Oromfalak: 38 cm vtg. Porotherm n+f falazóblokkokból.
Koszorú: monolit vasbeton, c. 16-16/Kk betonnal, b. 60. 40 Min. Betonvasakkal.
Héjazat:Csornai hornyolt cserépfedés
övezeti besorolás: GKSZ/1
Beépített alapterület 403, 44m2 (11%-os beépítettség)
Vétel ár:79. 000. 000Ft + Áfa
Az ingatlan az M1-es autópálya Tatai lehajtójától 8 km-re, Tatabányától 12 km-re, Budapesttől 69 km-re található.
Ha Ön is valami nagyban gondolkodik, jöjjön és itt megvalósíthatja.
Érd. :Szabó Szilvia
Tel. :06 70 367 76 36 Hitel.hu - Hasonlítsa össze a bankok lakáshitel ajánlatait
Tetszett ez az eladó Tatai jó állapotú ipari ingatlan? Hívd fel a hirdetőt most, és tudj meg mindent erről az eladó ipari ingatlanról! Ha gondolod nézelődj tovább az eladó ipari ingatlan Tata oldal hirdetései között.
Az eladó ipari ingatlanok menüpontban további hirdetések között is böngészhetsz. Ha van kedved, akkor böngészhetsz a Szabó Szilvia összes hirdetése között, vagy akár a/az Dot-Ing 2001 Ingatlanirodák Kft. összes hirdetése között is.

