Eladó ipari ingatlan - Tolna
- INGYENES HIRDETÉS FELADÁS
Ingatlan adatai
- Feladva:61 napja a megveszLAK-on
- Eladó vagy kiadó:Eladó
- Település:Tolna
- Kategória:Ipari ingatlan
- Alkategória:Egyéb
- Alapterület:526 m2
- Telekterület:3512 m2
- Csere is:Nem
- Hirdető:Cég
- Élő videón megtekinthető:Nem
- Hány szintes az ingatlan:nincs megadva
- Hányadik emeleti:nincs megadva
- Parkolási lehetőség:nincs megadva
- Energiatanúsítvány:nincs megadva
- Villany:nincs megadva
- Víz:nincs megadva
- Gáz:nincs megadva
- Csatorna:nincs megadva
- Kapcsolatfelvétel

Győri István
+36204441821
Mondd meg a hirdetőnek, hogy a megveszLAK-on találtad a hirdetést.
Hitel ajánlatok
Ingatlan hirdetés leírása
ELADÓ Tolna város határában, ipari övezetben található 3512 m2...
Eladó Tolna város határában, ipari övezetben található 3512 m2 terület, 526 m2 felújítandó épülettel
ELHELYEZKEDÉS:
- Tolna város északi határában
- ipari övezetben
- könnyen megközelíthető a 6-os főútról és az M6-os autópályáról
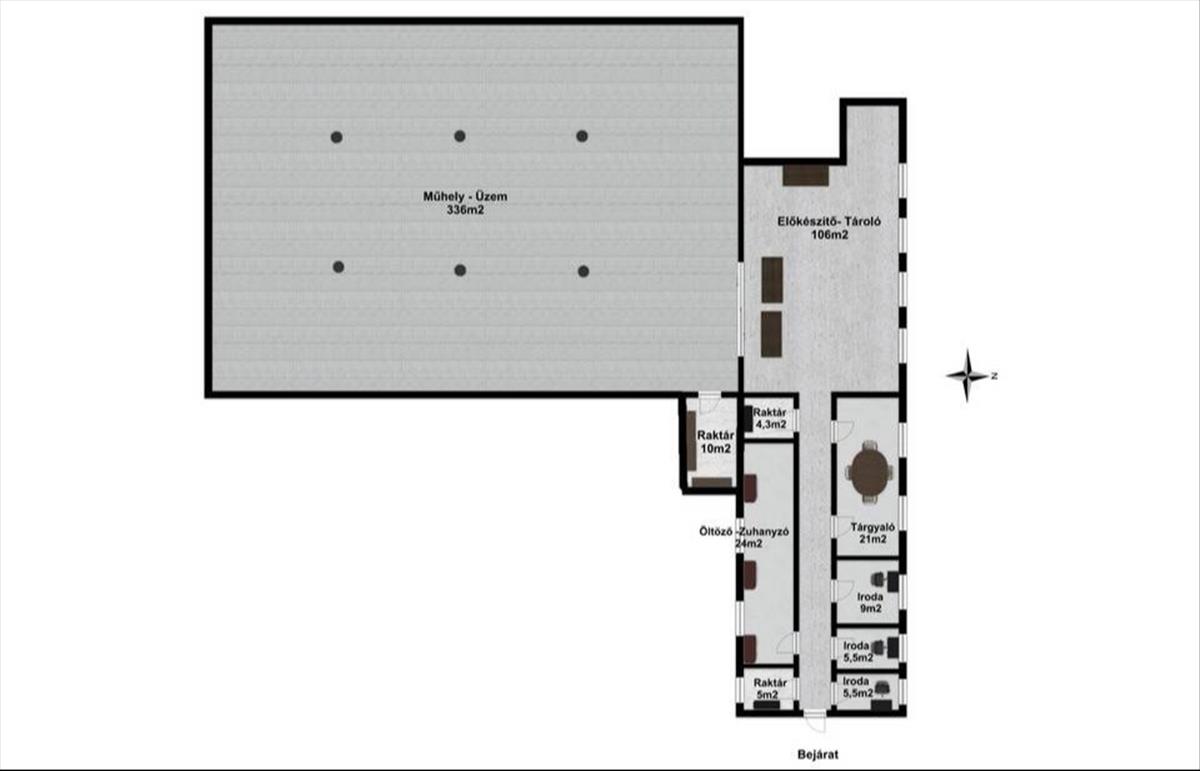
HELYISÉGEK:
- üzem/műhely: 336 m2
- irodák, raktárak és tárolók összesen: 190 m2
INGATLAN és műszaki ÁLLAPOT:
- ipari övezetben található
- besorolás szerint Gipa R övezet, vagyis egyéb ipari, mezőgazdasági, üzemi terület
- beépíthetősége 50%, 25% zöldterületi mutató mellett
- 10 méteres maximum építmény magasággal
- tulajdoni lap szerint kivett gazdasági épület és udvar
- szerkezete tégla és vasbeton
- elektromos hálózata 3*32 Amper (egyéb közmű nem áll rendelkezésre)
- vízszigeteléssel ellátott tető
Kiváló befektetési lehetőség!
Az épület általános állapota felújítandó. Ipari, mezőgazdasági tevékenységre, gyártásra, raktározásra is kiválóan alkalmas, kialakítható belőle feldolgozó vagy összeszerelő üzem, raktár.
Amennyiben hirdetésem felkeltette érdeklődését, keressen bizalommal! Hitel.hu - Hasonlítsa össze a bankok lakáshitel ajánlatait
Tetszett ez az eladó Tolnai ipari ingatlan? Hívd fel a hirdetőt most, és tudj meg mindent erről az eladó ipari ingatlanról! Ha gondolod nézelődj tovább az eladó ipari ingatlan Tolna oldal hirdetései között.
Az eladó ipari ingatlanok menüpontban további hirdetések között is böngészhetsz. Ha van kedved, akkor böngészhetsz a Győri István összes hirdetése között, vagy akár a/az Immo1 Szekszárd összes hirdetése között is.

