- >>
- eladó ingatlanok
- >>
- eladó iroda
- >>
- eladó iroda Budapest IX. kerület
- >>
Eladó iroda - Budapest IX. kerület
| | |||
| Kedvencnek jelölöm | Elküldöm emailben | Megosztás | Szavazás |
| Kedvezményes lakáshitel ajánlatok | |||
| 57 900 000 HUF | |||
Ingatlan adatai
- Eladó vagy kiadó:Eladó
- Település:Budapest IX. kerület
- Kategória:Iroda
- Alkategória:Egyéb
- Alapterület:62 m2
- Csere is:Nem
- Hirdető:Cég
- Élő videón megtekinthető:Nem
- Állapot:nincs megadva
- Hány szintes az ingatlan:5 szintes
- Hányadik emeleti:Földszint
- Parkolási lehetőség:nincs megadva
- Őrzött parkoló:nincs megadva
- Bútorozottság:nincs megadva
- Fényviszony:nincs megadva
- Tájolás:nincs megadva
- Kilátás:nincs megadva
- Internet:nincs megadva
- Akadálymentesített:Nem akadálymentesített
- Energiatanúsítvány:A
- Üzenetküldés
- Hívás


Hitel ajánlat
Ingatlan hirdetés leírása
A 9. kerületben, a Haller utca és a Telepy utca találkozásánál...
A 9. kerületben, a Haller utca és a Telepy utca találkozásánál, egy 2017-es építésű (de jogilag új építésű), 5 emeletes, szigetelt, liftes épületben eladó4 db utcafronti, üvegportálos IRODA/üzlethelyiség.
(Az ár 27% áfát tartalmaz).
Méretük 37-62 m2 közötti. Ezek m2 ára 945. 000 Ft + áfa.
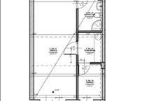
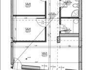
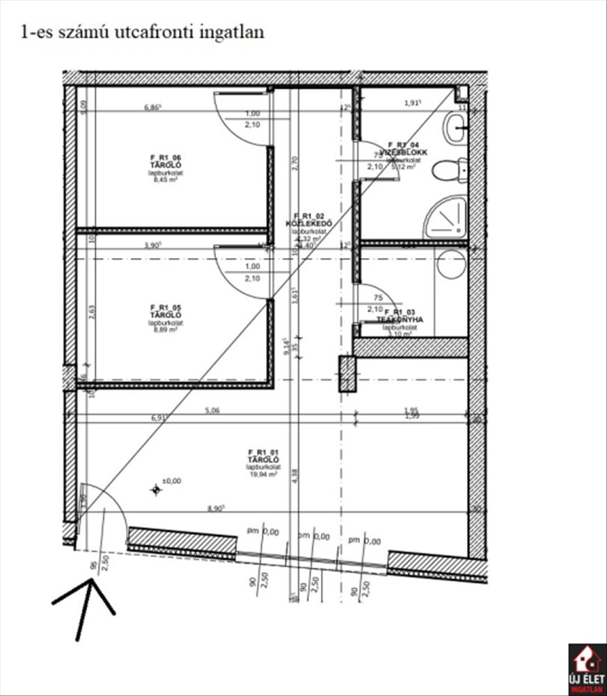
1. Számú, utcafronti, 52, 82 m2-es --- ára 49, 9 M Ft + áfa
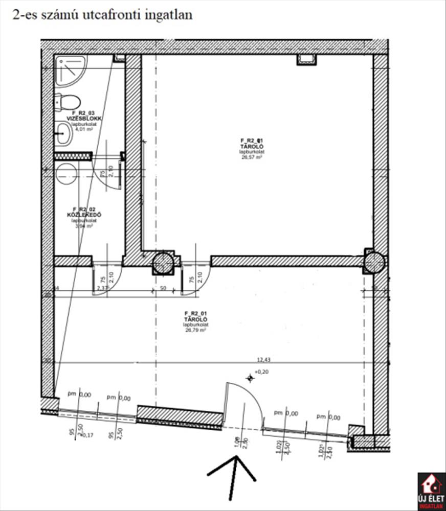
2. Számú, utcafronti, 61, 31 m2-es --- ára 57, 9 M Ft + áfa
3. Számú, utcafronti, 61. 98 m2-es --- ára 58, 6 M Ft + áfa
4. Számú, utcafronti, 37, 45 m2-es --- ára 35, 4 M Ft + áfa
Mind a 4 ingatlan tágas térre néz, a Telepy utca és a Haller utca találkozásánál lévő kis parkosított részre.
Az épületben eladó lakások is vannak. a 80 db lakásból még kb. 20 Db aktuális. (5 %-Os áfát tartalmaz).
A lakások túlnyomó többsége 24-27 m2 közötti belső méretű,
de van néhány extra kicsi is (22 m2-es, tetőtéri! ! ! ) És
vannak 1+1 szobás lakások is. (35-43 m2 közötti belső lakásterülettel)
A friss használatbavételi engedélyt most kapták meg az ingatlanok.
Mindegyik frissen felújítva vásárolható meg. Az ön ízlése szerint kerül felújításra.
(Az elmúlt 8 évben albérletbe voltak kiadva. )
A fűtés házközponti, radiátorokon keresztül ad meleget, és a vízmelegítést is a központi kazán végzi.
A közös költség 600 Ft/m2.
Az ingatlanok átadása - normál eseten - szeptember-október folyamán történik meg.
De sürgős esetben akár 1, 5 hónapon belül használni tudja.
A Nagyvárad téri metró 5-8 perc sétára van. Ugyanígy közel vannak az orvosi egyetem, a közszolgálati egyetem a Semmelweis kórház.
AZ ár a frissen felújított ingatlanra ÉRTENDŐ.
Ha érdekli, akkor hívjon akár az esti órákban, vagy akár hétvégén is! Hitel.hu - Hasonlítsa össze a bankok lakáshitel ajánlatait

