Eladó iroda Nyírmada
| Kedvencbe | Megosztás | Árfigyelő |
| Kedvezményes lakáshitel ajánlatok | ||
| 18 000 000 HUF | ||
Ingatlan adatai
- Eladó vagy kiadó:Eladó
- Település:Nyírmada
- Kategória:Iroda
- Alkategória:Családiházban
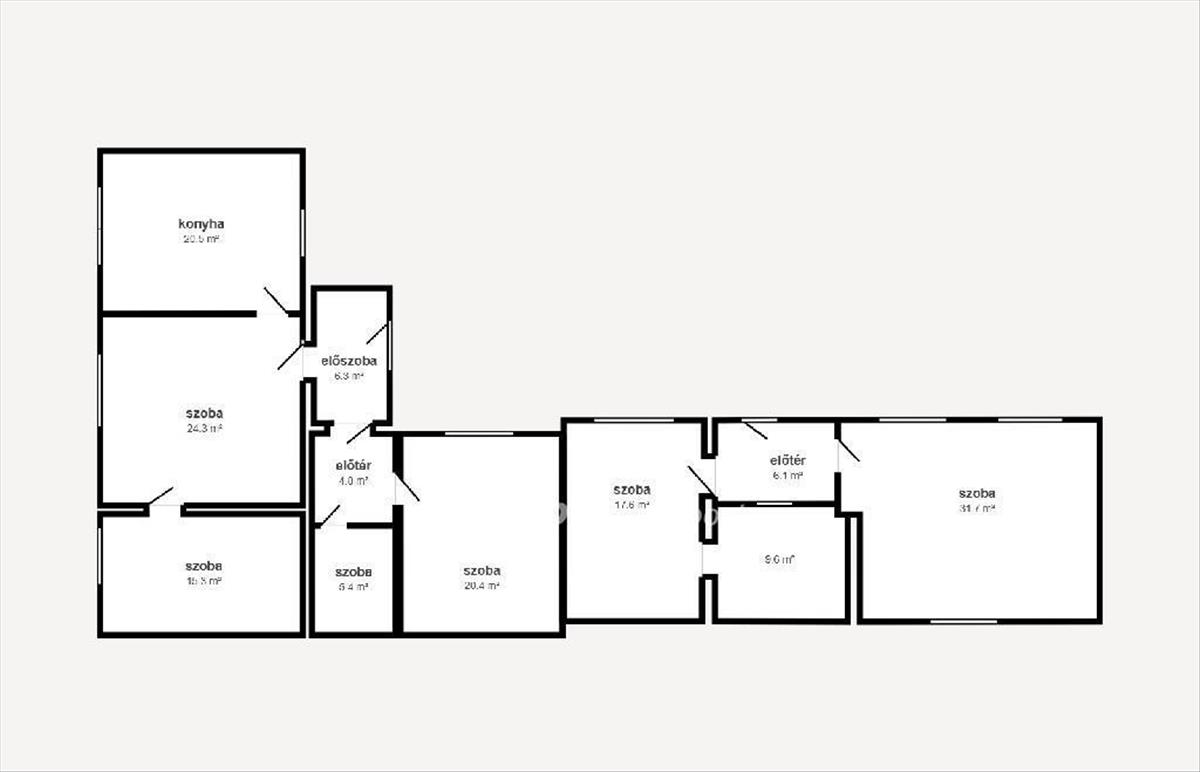
- Alapterület:170 m2
- Csere is:Nem
- Hirdető:Cég
- Élő videón megtekinthető:Nem
- Állapot:nincs megadva
- Hány szintes az ingatlan:nincs megadva
- Hányadik emeleti:Földszint
- Parkolási lehetőség:Udvaron
- Őrzött parkoló:nincs megadva
- Bútorozottság:nincs megadva
- Fényviszony:nincs megadva
- Tájolás:nincs megadva
- Kilátás:nincs megadva
- Internet:nincs megadva
- Akadálymentesített:nincs megadva
- Energiatanúsítvány:nincs megadva
- Üzenetküldés
- Hívás

Referencia szám: M305191

Hitel ajánlat
Ingatlan hirdetés leírása
Eladó Iroda, Nyírmada
Eladó üzlethelyiség - lakás Nyírmada központjában.Az ingatlan 1970-ben épült tégla falazattal, a tetőn cserép héjazat. Az épület egy része irodaként üzemelt, egy másik része lakásként funkcionált. Az ingatlan teljes mértékben közművesített (víz, gáz, villany, csatorna). a fűtést gánzkonvektor biztosítja több helyiségben. Valamint 3 fázisú hálózat is ki lett alakítva. a 313 m2-es telken az ingatlan alatt található két aknával ellátott garázs.
Az épület előtt egy kb. 40m2 területű fedett terasz lett kialakítva.
A környék viszonylag nyugodt, de frekventált része a településnek, így ideális lehet irodának, üzlethelyiségnek, vagy igény szerint lakásnak. a fedett terasz alatt stand vagy kirakodó pultok is elhelyezhetőek. Étterem esetében asztalok, székek, pultok. Befektetőknek, vállalkozóknak kifejezetten sok lehetőséget nyújthat némi felújítással.
Referencia szám: M305191
Pénzügyi tanácsadással, hitel ügyintézéssel (FalusiCSOK, CSOKPlusz, Babaváró, kedvezményes lakáshitel) segítjük ügyfeleinket, melyről részletes tájékoztatást adunk OTP Ingatlanpont, és OTP Pénzügyi Pont irodáinkban.
Érdeklődni:
Novák Norbert
Tel: 0670/408-6543
Email: norbert. Novak@otpip. Hu
De. 09:00 - Du. 16:00
Referencia szám: m305191 Hitel.hu - Hasonlítsa össze a bankok lakáshitel ajánlatait

