Eladó iroda - Győr
- INGYENES HIRDETÉS FELADÁS
Ingatlan adatai
- Eladó vagy kiadó:Eladó
- Település:Győr
- Kategória:Iroda
- Alkategória:Egyéb
- Alapterület:48 m2
- Csere is:Nem
- Hirdető:Cég
- Élő videón megtekinthető:Nem
- Állapot:nincs megadva
- Hány szintes az ingatlan:5 szintes
- Hányadik emeleti:Földszint
- Parkolási lehetőség:Teremgarázsban (fizetős)
- Őrzött parkoló:nincs megadva
- Bútorozottság:nincs megadva
- Fényviszony:nincs megadva
- Tájolás:DK
- Kilátás:nincs megadva
- Internet:Optikai
- Klíma:nincs megadva
- Akadálymentesített:Akadálymentesített
- Energiatanúsítvány:nincs megadva
- Kapcsolatfelvétel
Hartmann-né Ildikó Viki
+36-(20)-481-3369
Mondd meg a hirdetőnek, hogy a megveszLAK-on találtad a hirdetést.
Hitel ajánlatok
Ingatlan hirdetés leírása
Győr – Nádorváros | Új építésű iroda, azonnali befektetési leh...
Ne keresgélj tovább – ezt az ingatlant most érdemes lefoglalni.
A 3%-os Széchenyi hitellel is megvásárolható ingatlan, a belvároshoz közel, de mégis könnyen megközelíthető helyen.
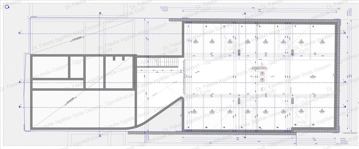
Győr egyik legkeresettebb városrészében, Nádorvárosban, egy modern, 15 lakásos társasház földszintjén kínálunk megvételre egy 48, 22 nm -es, DK-i tájolású, utcafronti irodát. a hatalmas üvegportálnak köszönhetően egész nap világos, így tökéletes választás saját célra, kiadásra vagy biztos, értékálló befektetésként.
Ami azonnal mellette szól:
2026. 05. 30-Ig: - 2 M Ft kedvezmény a garázs árából, minden ingatlan mellé!
– Alacsony rezsi, a / a+ energetika
– kiváló láthatóság és könnyű megközelítés
– ideális méret → gyors bérbeadhatóság, magas hozam
Műszaki tartalom – amire hosszú távon számíthatsz:
✔ 3 rétegű hőszigetelt nyílászárók
✔ masszív vasbeton szerkezet
✔ 20 cm kőzetgyapot szigetelés
✔ korszerű, több rétegű vízszigetelés
Modern gépészet:
✔ központi kazánrendszer
✔ padlófűtés
✔ klíma előkészítés-opcionális
Extra lehetőségek (korlátozott számban):
– Mélygarázsban gk beálló: Ár: 8, 5 M Ft / db
– Tároló: 1, 75 M Ft /db (2 nm -2, 59 nm )
Átadás: 2027- fűtéskész állapotban
Ár: nettó hirdetési ár (áfa + 27 %)
Miért most?
Az új építésű irodák Nádorvárosban gyorsan elfogynak. Korai foglalással jobb áron kapod.
Ne maradj le – ez egy tipikus „gyors döntés, jó üzlet” lehetőség.
A képek és látványterv az értékesítést szolgálják, illusztrációk. Hitel.hu - Hasonlítsa össze a bankok lakáshitel ajánlatait
Tetszett ez az eladó Győri iroda? Hívd fel a hirdetőt most, és tudj meg mindent erről az eladó irodáról! Ha gondolod nézelődj tovább az eladó iroda Győr oldal hirdetései között.
Az eladó irodák menüpontban további hirdetések között is böngészhetsz. Ha van kedved, akkor böngészhetsz a Hartmann-né Ildikó Viki összes hirdetése között.

